

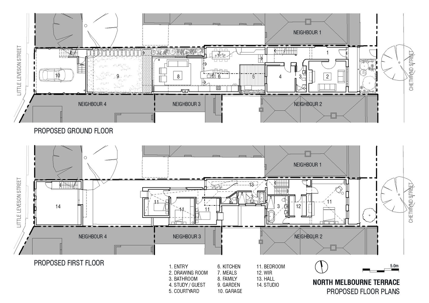
近一个半世纪以来,这栋特殊的房子(其中被列入遗产名录的一栋房子),位于中央商务区的角落并且需要专业的遗产咨询。作为我们自己的遗产调查的一部分,我们对这栋房子的历史进行了编目和研究,同时也对附近建筑结构和形式的演变和标志性进行了研究。我们希望确保原有的结构能够忠实于它的时代,讲述它过去的故事,但同时也希望任何新的改造工作都能从旧的故事中诞生,将住宅带入当代,以便在未来的岁月中讲述这个故事。最终的结果是通过在旧的范围内塑造一个新的程序框架来实现的,重新利用现有的房间,并在规划和遗产准则允许的情况下增加额外的家庭空间。

作为一个狭长的,毗邻几个不同的邻居的街区,围墙和平面布局主要是规划条件的结果。沿着场地的长度,进进出出的缺口被充分利用,以引入光线,并使 "通风道 "和侧面花园穿过房子的中心。通过切割和填充,在倾斜的场地上操纵水平面,以满足足够的天花板高度,并帮助设定和定义开放和自由流动的底层空间。

从遗产的角度来看,我们的方法是尽可能地阐释和恢复,而不是应用新的结构。在房子现有的部分,房间被巧妙地重新贴上了灰泥,并稍作调整。面临街道的前排画室遵守 "房子里最好的房间 "的设定,利用深色的富有情绪感染力的地板和天花板的油漆饰面来突出装饰性石膏制品的高度和细节--这让人想起1880年的房地产繁荣和黄金财富的景象。在楼上的主卧室也有类似的做法,内部的小改造将后面的房间重新利用起来,以满足一个新的步入式衣帽间和浴室套间的需要

地面的走廊经过修复,露出了原来)通往历史上的邻居的开口中暴露的砖块,为后面的新作品提供了暗示,也为家族收集的艺术和雕塑提供了陪衬。当人们穿过走廊进入新的环境时,一种视觉上的呼气感提供了一种直接的光、空气和空间感。现有的环境渗入新的环境中,一个无缝的白色漆面柜子从维多利亚式楼梯的脚下开始延伸,通过一个微妙的曲线和隐藏的L'dry储藏室延伸到新的空间深处。

为了遵守尽可能揭示遗产的规定,我们将现有建筑的后立面的油漆去除,露出原有的红砖。按照确保新建筑从旧建筑中脱颖而出的策略,所有从后翼底层改造中拆除的砖块都会在新工程中重新使用。同样,我们决定将所有原内墙表面的剩余硬灰泥拆除,而不是重新抹灰,这样做更有利于暴露和说明建筑和改建的历史。内部所使用的材料以其诚实和原始性而令人欣喜--涂油的澳大利亚当地木材、抛光混凝土和深色木皮橱柜描绘了一个轻松而又精心制作的内部环境。

调色板上叠加了现代的家具和物品,并与房子的前部产生联系,偏向于不过度的风格。Toss B的白色吊灯悬挂在二层的天花板上,不仅带来了垂直感,而且日光也从内部的空隙中照射下来,提供了规模上以及与上面儿童卧室的走廊的联系。天花板上部安装了玻璃,将日光冲刷在历史悠久的砖块裂缝上,并将光线带入底层室内

在现有房屋内的一些弯曲的 "Boom风格 "元素上,一个弯曲的木质栏杆和厨房细木工元素提供了贯穿房屋中心的雕塑感。后部生活区的开放性和非正式性显得像一个 "挖出来"的地下阁楼,使空间感达到房产边界的延伸部分,将景观带入室内。内部的提琴叶植物,簇绒羊毛地毯,以及赭色的Urquiola Husk椅子,体现了一种轻松和质感的现代澳大利亚生活的感觉。

从外观上看,这种添加的语言和形式是当代的,但在北墨尔本的后巷里,砖块背驮式结构和华丽的砖墙是多产的,这是一种简化的地区主义的戏剧。这里是原建筑的简化和抽象版本,其形式和围墙与邻居的关系非常密切。然而,去掉了楣板、模子和檐槽,再加上砖砌的屋顶,新的作品读起来就像一个简化的形式--墙壁和屋顶是一个形式,一种材料。侧面立面的钢筋和砖块的错落有致,带来了功能(隐私遮挡),并提供了深度和趣味。下面的形式是 "编辑出来的",允许透明和开放的生活空间,拥抱景观。







TAG标签关键词:Matt Gibson 别墅 露台 红砖 家 建筑































































































