

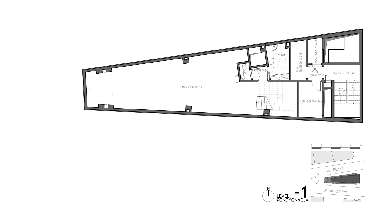
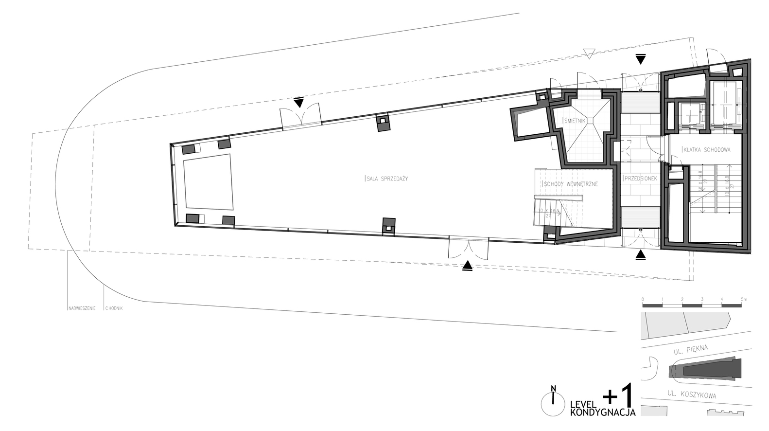
密集的基础设施在这块地区意味着一楼的外轮廓要从街上推到后面,稍微远离十字路口处。因此斜柱以及钢缆必须要安装在这里才能支持所需的悬挑天花结构,这一切都是为了把建筑前部7.5米的突出部分的重量均匀地通过结构向地面引导。在其底部,它的悬挑长度为4.40米。因需要保持垂直净空,以免妨碍街道交叉口的交通,所以悬突出部分被设计成了倾斜的。这幢建筑的特点是,突出的部分从路面的水平面向上计算的话仅仅是2.55米高。由此产生的结构自然的将建筑分为两部分。

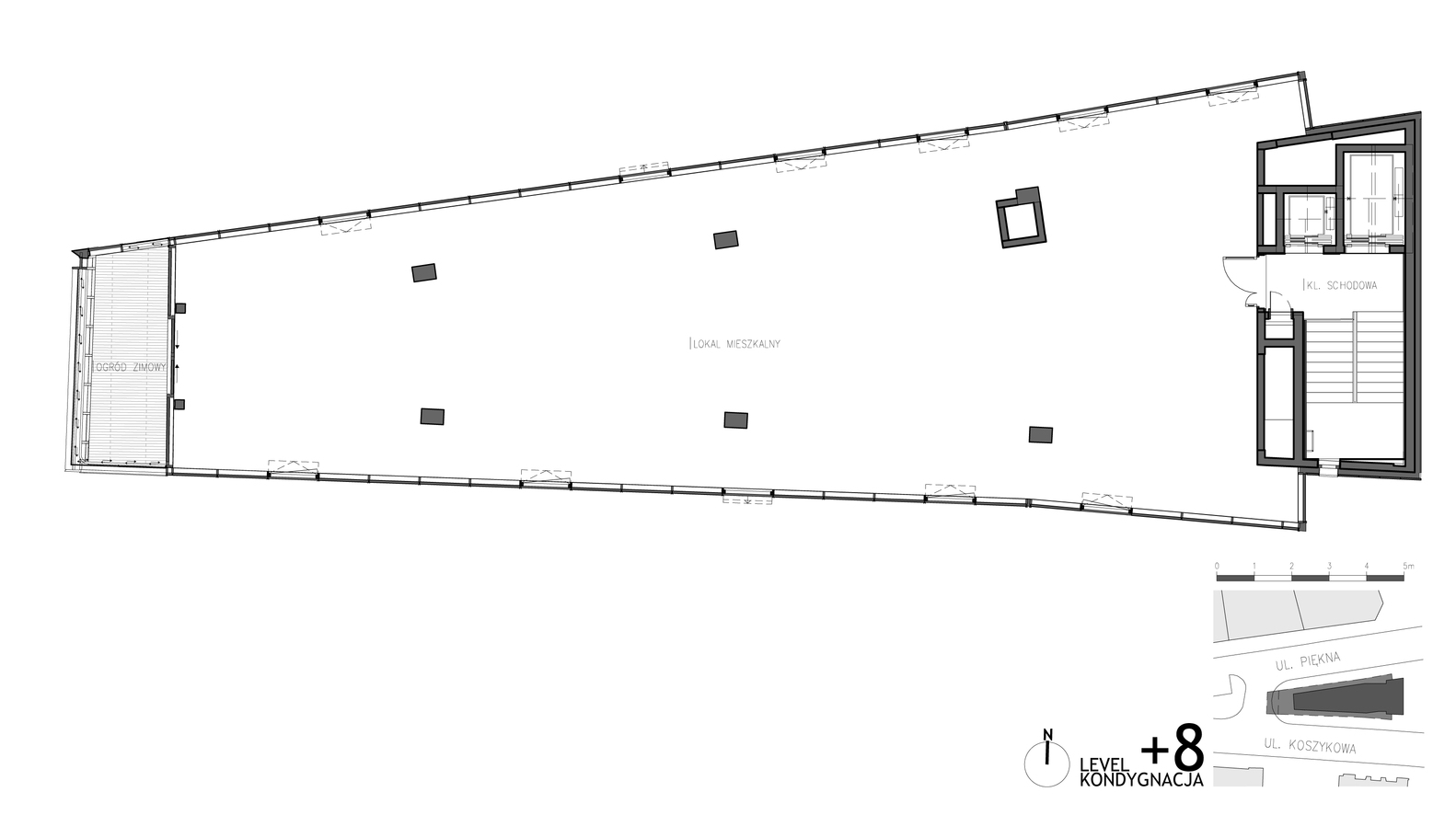
一个单片的,无光表面,黑色石头材料的楼梯核心筒从底层跨越整个建筑到达最高的屋顶。这个特殊的元素是封闭的并且是不透明的,它与建筑的第二部分――全玻璃悬挑部分,这两种结构上的不同形成了鲜明的对比,玻璃立面分别在二层和三层被分成3个部分。使其形成了一种轻盈、半透明的元素,一方面显露出了建筑的内部,另一方面也反映了周围的房屋和对面的 “Koszyki” 市场。该设计理念在周边的建筑和原有的地方城市布局中发挥出了最好的效果



























































































































