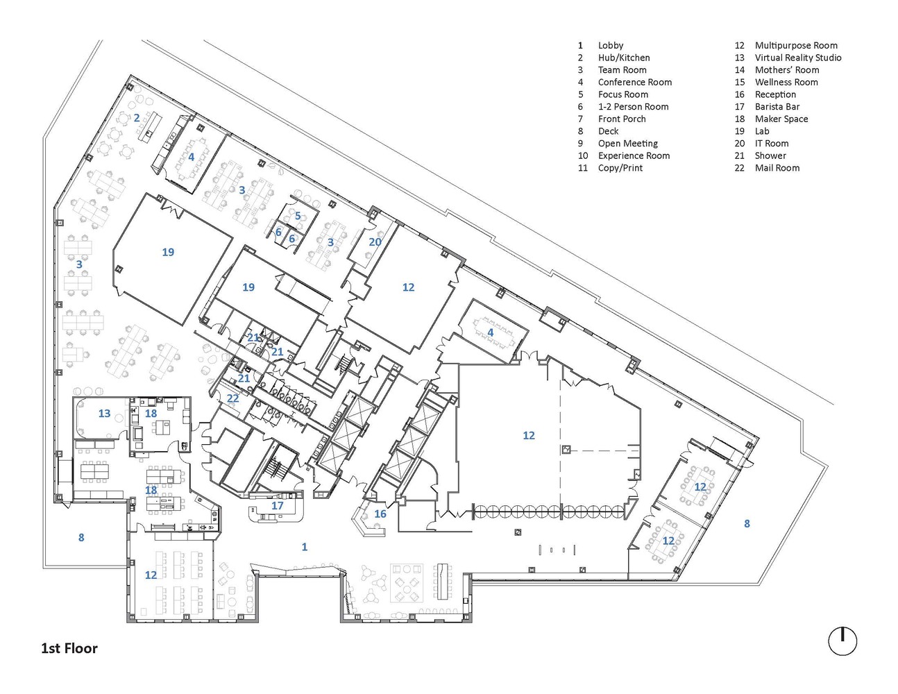
设计将关注到三个层面:一,重新想象雇员们工作方式,想象他们如何聚集在一起发明创造;二,全面重新考虑办公室环境应该如何支撑时常紧张的开发流程;三,向外界重新呈现微软的特质与价值观。一切改造都将在保证机构不搬迁并且持续运作的情况下进行。此前,NERD中心100%由个人办公室组成。办公环境中的一切要素都为了满足独立编程与工作。员工们相互之间极度孤立,使得团队们除了偶尔在正式的会议室中聚集以外难以碰面。而在全新的布局中,多层次的工作空间可以支持不同层面的群体交互以及个人工作。
在平面的外围,每个人都离开个人办公室。项目团队可以在容纳12-20人的团队套间中坐在一起。这些套间是被围合的,但办公桌相当开放,没有隔板分隔。同时家具又是可移动的,团队们可以按照自己的意愿自行布置他们的套间。第二个层次主要有两种空间类型,首先是一系列多样的开放会议区域,每一个套间外都有一个。这里提供了设备、白板以及不同的家具组合。这些会议区域并不由任何团队拥有,他们相当于沿着主流线的门廊。同时,一系列小型会议室和供个人使用的专注空间也被嵌入第二个层次。
这些空间都不被任何部门所占有,它们可以快速转换为一个安静的空间。第三个层次则是主流线,它将所有团队连接起来,联系一系列分散的大会议室并且最终到达跨两层楼主社交中心。微软的空间分布于整栋建筑,其中10-11以及14-15层容纳了绝大多数工程师。社交中心将作为工程师们集聚的主要活力空间,并成为社群的焦点。社交中心也同时彰显了微软对于工作环境的全新观点,创造一个弱企业化而更加热情舒适的场所。

整个室内选用了多种多样温暖的、有图案的材质,独特的照明设计。使用的家具让人联想到精品住宅或舒适好客的环境而非软件工程总部。这种氛围同样延伸至主要的客户和接待区域。这一层不仅仅是一个会议空间,亦彰显了微软对于探索和创新的追求。微软的“车库(Garage)”位于建筑底层,这里同时布置了代码原型研发空间,虚拟现实和绿屏室,实习生、社区联系的空间,以及诸如“代码女孩(Girls Who Code)等伙伴关系团体使用的空间。一个配置人员的咖啡吧为这些空间服务。一个大的多功能厅毗邻这些空间,可供内部全员会议和行业活动使用。
由于微软不打算临时迁移NERD中心,整个更新项目必须依照于极度复杂的工期和交付日程计划以保持中心的持续运转。最初,为了满足一系列特定的日程安排需求,有半层空间必须在最终功能策划之前必须交付。在两个楼层同时施工的时候,这半层空间又再次返工以更新饰面和家具。整个分阶段实施计划需要多个分包,与大楼业主及剑桥市共同进行的滚动审批流程,以及来自员工的持续反馈。通过这些机制来保证每一个阶段都可以吸纳上一阶段实施的经验教训。







TAG标签关键词:Sasaki 科技公司办公室 微软办公室 办公室 研发中心 研发组 公寓楼 办公楼 建筑






















































































