当前位置:网站首页 - 图库素材 - 家居建筑
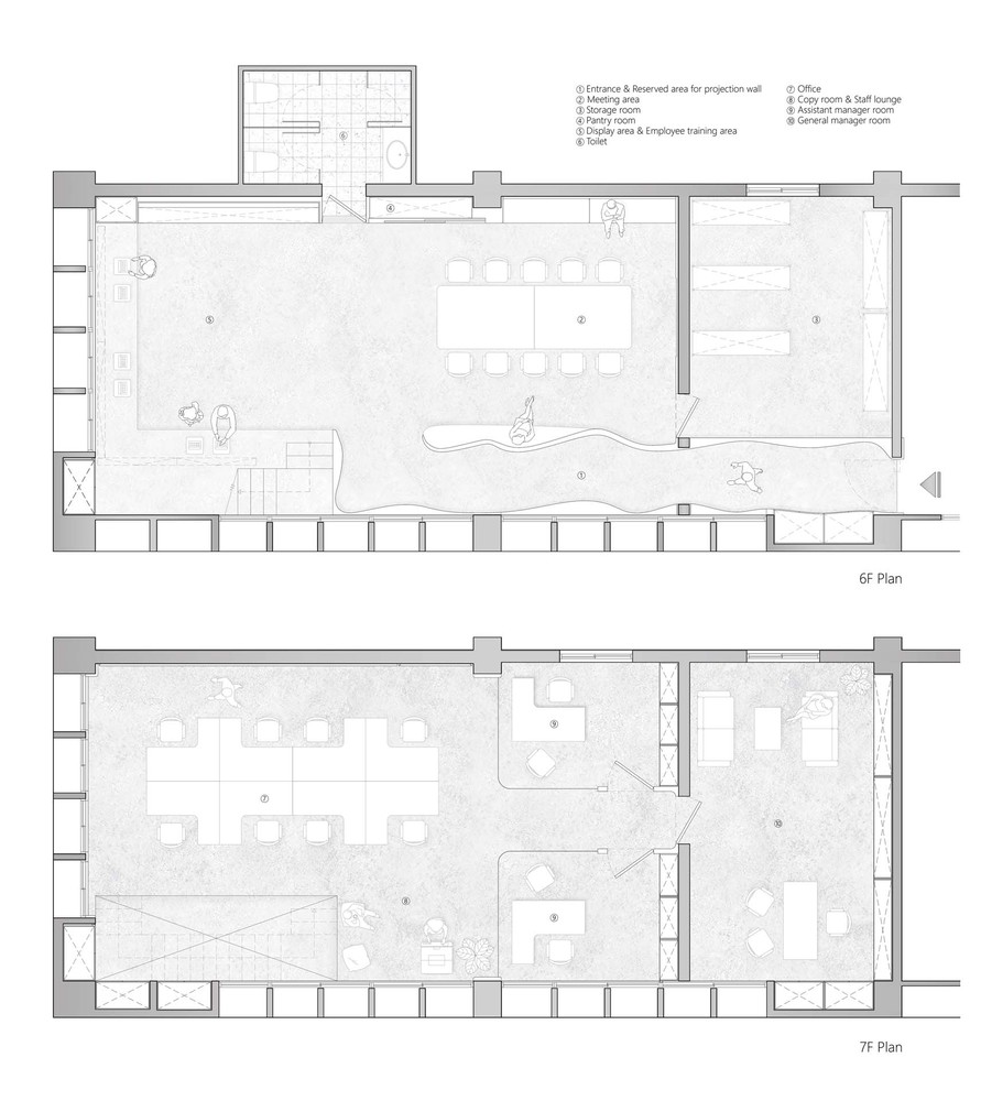
  • 因应空间需求是采取预约方式的展售空间,所以我们舍弃了接待区,尝试将入口过道内缩,让产品以渐进方式呈现,希望能带给来访者不同以往的展售体验。

  • 因应空间需求是采取预约方式的展售空间,所以我们舍弃了接待区,尝试将入口过道内缩,让产品以渐进方式呈现,希望能带给来访者不同以往的展售体验。
  • 通过动线规划将展售行为重新围塑,利用开放空间里采光的明暗对比,区划出办公空间并把会议及展示空间加以融合,借此打破会议和销售行为之间的藩篱,拉近产品与客户之间的沟通距离。并保留复层的过道梯间让展示行为融入其中,作为产品陈列时的展示延伸。

  • 通过动线规划将展售行为重新围塑,利用开放空间里采光的明暗对比,区划出办公空间并把会议及展示空间加以融合,借此打破会议和销售行为之间的藩篱,拉近产品与客户之间的沟通距离。并保留复层的过道梯间让展示行为融入其中,作为产品陈列时的展示延伸。
  • 透过机能的重整,空间内部随着形态变化而衍生不同的使用方式,进而让旧厂房有机会产生新的空间层次感。

  • 透过机能的重整,空间内部随着形态变化而衍生不同的使用方式,进而让旧厂房有机会产生新的空间层次感。
  • 使得会议空间通过开放动线,隐性地引导着销售流程,同时能提供产品说明以及员工教育训练的使用可能性,透过场域的留白让展示保有较多的使用弹性,吸引来访者有效的聚焦于微型开关产品。

  • 使得会议空间通过开放动线,隐性地引导着销售流程,同时能提供产品说明以及员工教育训练的使用可能性,透过场域的留白让展示保有较多的使用弹性,吸引来访者有效的聚焦于微型开关产品。
  • 中国台湾218平米的Freeform办公室---酷图编号1315335
  • 中国台湾218平米的Freeform办公室---酷图编号1315334
  • 中国台湾218平米的Freeform办公室---酷图编号1315333
  • 中国台湾218平米的Freeform办公室---酷图编号1315332
  • 中国台湾218平米的Freeform办公室---酷图编号1315331
  • 中国台湾218平米的Freeform办公室---酷图编号1315330
  • 中国台湾218平米的Freeform办公室---酷图编号1315329
  • 中国台湾218平米的Freeform办公室---酷图编号1315328
  • 中国台湾218平米的Freeform办公室---酷图编号1315327
  • 中国台湾218平米的Freeform办公室---酷图编号1315326
  • 中国台湾218平米的Freeform办公室---酷图编号1315325
  • 中国台湾218平米的Freeform办公室---酷图编号1315324
  • 中国台湾218平米的Freeform办公室---酷图编号1315323
  • 中国台湾218平米的Freeform办公室---酷图编号1315322
  • 中国台湾218平米的Freeform办公室---酷图编号1315321
  • 中国台湾218平米的Freeform办公室---酷图编号1315320
  • 中国台湾218平米的Freeform办公室---酷图编号1315319
  • 中国台湾218平米的Freeform办公室---酷图编号1315318
  • 中国台湾218平米的Freeform办公室---酷图编号1315317
  • 中国台湾218平米的Freeform办公室---酷图编号1315316
  • 中国台湾218平米的Freeform办公室---酷图编号1315315
  • 中国台湾218平米的Freeform办公室---酷图编号1315314

  • 图片信息简介:中国台湾218平米的Freeform办公室·图片编号为985797, zohome是此图片的作者,上传时间为2020-04-10 17:50:51,格式为JPG,颜色模式为RGB,分辨率为72 Dpi,浏览本次作品的朋友,猜您可能还对家居建筑类型的办公室,住宅设计,空间设计,建筑设计,办事处等领域感兴趣,注意:本站所有作品版权均属各自所有者,本站图片仅提供学习参考,要购买版权请自行联系作者,谢谢!
    TAG标签关键词:zohome    办公室    住宅设计    空间设计    建筑设计    办事处
  • 相关系列作品
  • 以下仅展现近期部分相关系列,要看全部相关作品,请逐个查看右上角的相关标签搜索
  • 中国台湾218平米的Freeform办公室

    27 张  中国台湾218平米的Freeform办公室  : 985797  

    ↗ 家居建筑 

      2020-04-10

    工作交流的卡通素材下载

    1 张  工作交流的卡通素材下载  : 993937  

    ↗ AI源文件 

      2021-01-26

    时尚的商务办公室素材下载

    1 张  时尚的商务办公室素材下载  : 993002  

    ↗ AI源文件 

      2020-12-24

    摸眼镜的身穿衬衫打领带的白领男子

    1 张  摸眼镜的身穿衬衫打领带的白领男子  : 990411  

    ↗ 艺术摄影 

      2020-10-21

    办公室和谐气氛的笔记本办公

    1 张  办公室和谐气氛的笔记本办公  : 988924  

    ↗ 艺术摄影 

      2020-08-26

    DIP办公室桌面整理盒

    6 张  DIP办公室桌面整理盒  : 984936  

    ↗ 工业设计 

      2020-03-13

    现代办公场所卡通素材图下载

    1 张  现代办公场所卡通素材图下载  : 984519  

    ↗ AI源文件 

      2020-03-05

    办公室工作的卡通白领

    1 张  办公室工作的卡通白领  : 981609  

    ↗ AI源文件 

      2020-01-09

    玮奕国际设计事务所

    64 张  玮奕国际设计事务所  : 976328  

    ↗ 家居建筑 

      2019-09-06

    Herman Miller新办公椅

    29 张  Herman Miller新办公椅  : 973684  

    ↗ 工业设计 

      2019-06-29

    Appodeal Office多彩办公楼

    5 张  Appodeal Office多彩办公楼  : 973362  

    ↗ 家居建筑 

      2019-06-21

    中国283平米的北京镜花园

    37 张  中国283平米的北京镜花园  : 973360  

    ↗ 家居建筑 

      2019-06-21

    Glass Office-玻璃全景办公室建设设计

    4 张  Glass Office-玻璃全景办公室建设设计  : 955498  

    ↗ 家居建筑 

      2017-03-19

    Exterior Render-豪华双层别墅住宅设计

    9 张  Exterior Render-豪华双层别墅住宅设计  : 994277  

    ↗ 家居建筑 

      2021-02-08

    日本119平米木质檐屋建筑

    29 张  日本119平米木质檐屋建筑  : 993908  

    ↗ 家居建筑 

      2021-01-25

    乌克兰第聂伯罗公寓室内设计

    12 张  乌克兰第聂伯罗公寓室内设计  : 992832  

    ↗ 家居建筑 

      2020-12-17

    橙色和蓝色装饰的俏皮公寓

    42 张  橙色和蓝色装饰的俏皮公寓  : 992516  

    ↗ 家居建筑 

      2020-12-04

    Daniel Hu-对话空间

    17 张  Daniel Hu-对话空间  : 986440  

    ↗ 家居建筑 

      2020-05-18

    洛杉矶带分层游泳池的住宅设计

    41 张  洛杉矶带分层游泳池的住宅设计  : 986397  

    ↗ 家居建筑 

      2020-05-16

    一个挪威山腰的家

    22 张  一个挪威山腰的家  : 984103  

    ↗ 家居建筑 

      2020-02-25

    三件空间小的公寓设计

    41 张  三件空间小的公寓设计  : 983345  

    ↗ 家居建筑 

      2020-02-11

    现代简约舒适的生活空间

    27 张  现代简约舒适的生活空间  : 981063  

    ↗ 家居建筑 

      2020-01-02

    阿根廷尼斯维加5924号网格式公寓

    20 张  阿根廷尼斯维加5924号网格式公寓  : 980147  

    ↗ 家居建筑 

      2019-12-20

    PAULINA温馨公寓住宅室内设计

    22 张  PAULINA温馨公寓住宅室内设计  : 979940  

    ↗ 家居建筑 

      2019-12-17

    Shake Shack为纽约总部翻新的印刷大楼

    13 张  Shake Shack为纽约总部翻新的印刷大楼  : 979414  

    ↗ 家居建筑 

      2019-12-05

    MINIMALISTIC-公寓住宅设计

    29 张  MINIMALISTIC-公寓住宅设计  : 978580  

    ↗ 家居建筑 

      2019-11-18

    黑天使

    20 张  黑天使  : 971981  

    ↗ 家居建筑 

      2019-05-15

    40平方米以下的三间现代公寓室内设计

    37 张  40平方米以下的三间现代公寓室内设计  : 971371  

    ↗ 家居建筑 

      2019-05-04

    双卧室L型住宅设计

    9 张  双卧室L型住宅设计  : 959399  

    ↗ 家居建筑 

      2017-11-21

    Milbrae 2-住宅商业楼设计

    5 张  Milbrae 2-住宅商业楼设计  : 955853  

    ↗ 家居建筑 

      2017-04-10

    熊之家-泰国玩具熊收藏家住宅设计

    21 张  熊之家-泰国玩具熊收藏家住宅设计  : 921930  

    ↗ 家居建筑 

      2013-04-01

    摩尔多瓦基希讷乌358.6米四层楼的房子

    19 张  摩尔多瓦基希讷乌358.6米四层楼的房子  : 992813  

    ↗ 家居建筑 

      2020-12-16

    黑灰色内饰室内装修建筑

    40 张  黑灰色内饰室内装修建筑  : 991533  

    ↗ 家居建筑 

      2020-11-14

    中国顺德210平米的喜茶店装潢设计

    19 张  中国顺德210平米的喜茶店装潢设计  : 991082  

    ↗ 家居建筑 

      2020-11-05

    365pmi复合型空间-寻常惦

    26 张  365pmi复合型空间-寻常惦  : 984116  

    ↗ 家居建筑 

      2020-02-26

    西班牙20000平米的几何住宅

    53 张  西班牙20000平米的几何住宅  : 983749  

    ↗ 家居建筑 

      2020-02-17

    卡塔尔木条洞穴式国家博物馆

    8 张  卡塔尔木条洞穴式国家博物馆  : 970715  

    ↗ 家居建筑 

      2019-04-18

    Manhattan Apartment建筑视觉化室内设计

    7 张  Manhattan Apartment建筑视觉化室内设计  : 968369  

    ↗ 家居建筑 

      2019-02-21

    北京350平米的蓝色港湾花酷餐厅

    26 张  北京350平米的蓝色港湾花酷餐厅  : 964889  

    ↗ 家居建筑 

      2018-09-10

    北京中车展示中心 C19厂房改造

    37 张  北京中车展示中心 C19厂房改造  : 962719  

    ↗ 家居建筑 

      2018-05-27

    西好莱坞Formosa 1140住宅公共空间设计

    10 张  西好莱坞Formosa 1140住宅公共空间设计  : 944382  

    ↗ 家居建筑 

      2015-04-28

    意大利建筑师西蒙娜・米凯-空间设计

    12 张  意大利建筑师西蒙娜・米凯-空间设计  : 909597  

    ↗ 家居建筑 

      2012-03-10

    乌克兰带有海洋蓝色装饰的沿海房屋

    40 张  乌克兰带有海洋蓝色装饰的沿海房屋  : 994383  

    ↗ 家居建筑 

      2021-02-11

    乌克兰120平方米塑造宁静的现代空间

    40 张  乌克兰120平方米塑造宁静的现代空间  : 994273  

    ↗ 家居建筑 

      2021-02-08

    La forêt

    17 张  La forêt  : 991044  

    ↗ 家居建筑 

      2020-11-04

    华盛顿花园别墅房屋设计

    19 张  华盛顿花园别墅房屋设计  : 990031  

    ↗ 家居建筑 

      2020-10-15

    宁波市江北区甬江实验学校

    37 张  宁波市江北区甬江实验学校  : 984767  

    ↗ 家居建筑 

      2020-03-09

    20世纪60年代滑雪之家

    17 张  20世纪60年代滑雪之家  : 963430  

    ↗ 家居建筑 

      2018-07-04

    杭州东原・印未来生活体验中心

    35 张  杭州东原・印未来生活体验中心  : 963190  

    ↗ 家居建筑 

      2018-06-20

    云漫松间民宿

    22 张  云漫松间民宿  : 962783  

    ↗ 家居建筑 

      2018-05-30

    日本185平米波纹板之家

    35 张  日本185平米波纹板之家  : 961780  

    ↗ 家居建筑 

      2018-04-22

    现代单色部落装饰

    40 张  现代单色部落装饰  : 959557  

    ↗ 家居建筑 

      2017-12-04

    瀚海晴宇的公寓住宅建筑设计

    22 张  瀚海晴宇的公寓住宅建筑设计  : 958586  

    ↗ 家居建筑 

      2017-09-03

    印度尼西亚三层住宅建筑设计

    25 张  印度尼西亚三层住宅建筑设计  : 958462  

    ↗ 家居建筑 

      2017-08-27

    Indeed-室内工作室建筑设计

    12 张  Indeed-室内工作室建筑设计  : 953302  

    ↗ 家居建筑 

      2016-06-27

    宝地共享办公空间

    8 张  宝地共享办公空间  : 993025  

    ↗ 家居建筑 

      2020-12-24

    中国台湾116平米的聚光办公室

    21 张  中国台湾116平米的聚光办公室  : 990806  

    ↗ 家居建筑 

      2020-10-29

    Academy 2.0办公空间的内部照片

    36 张  Academy 2.0办公空间的内部照片  : 986830  

    ↗ 家居建筑 

      2020-06-02

    AKAMAI TLV 办事处

    45 张  AKAMAI TLV 办事处  : 985558  

    ↗ 家居建筑 

      2020-04-02

    HINOMAN OFFICES-办公室

    41 张  HINOMAN OFFICES-办公室  : 974366  

    ↗ 家居建筑 

      2019-07-16

    具有北欧风情的明尼苏达办事处

    14 张  具有北欧风情的明尼苏达办事处  : 966897  

    ↗ 家居建筑 

      2018-12-06

    02莫斯科办事处

    7 张  02莫斯科办事处  : 965114  

    ↗ 家居建筑 

      2018-09-18

    微软维也纳基地-幻灯片操场办事处

    11 张  微软维也纳基地-幻灯片操场办事处  : 912189  

    ↗ 家居建筑 

      2012-06-18

    制造董事会办事处

    7 张  制造董事会办事处  : 910443  

    ↗ 家居建筑 

      2012-04-28

    Mishcon DE Reya纽约办事处品牌宣传册

    6 张  Mishcon DE Reya纽约办事处品牌宣传册  : 907978  

    ↗ UI设计 

      2012-01-08

  • 查看更多家居建筑类型素材图库