
2364 * 1330
2364 * 1772
房屋的主要概念是创造一种无创建筑,将流淌的丘陵美景和自然的农业风光融为一体,而没有质朴的感觉
2364 * 1330
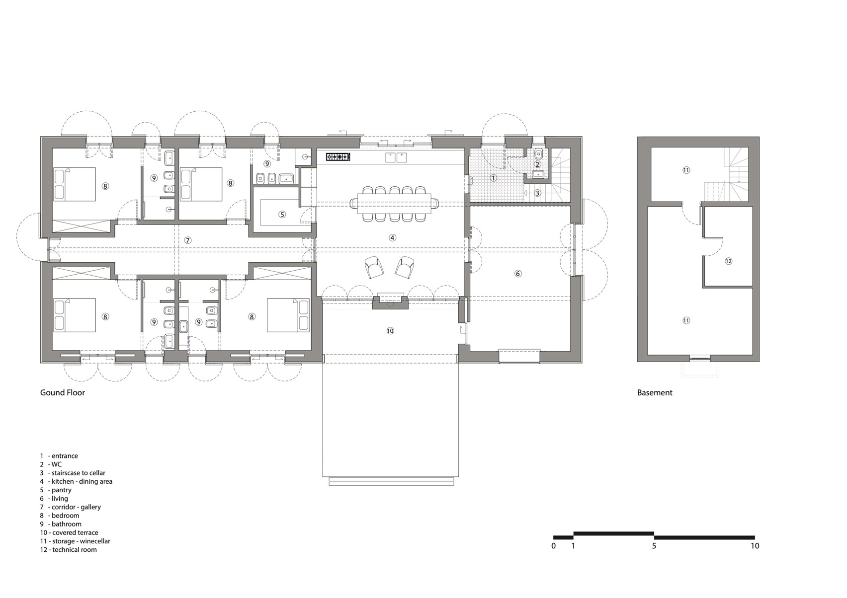
房屋的墙壁为落叶松,高高的天花板和大谷仓风格的门。庭院四周点缀着庭院,在内部,房屋以厨房和餐厅为中心,并以高架露台的形式延伸到户外
2364 * 1577
卧室套房位于大楼的西端,所有套房均可通向花园。东端设有入口,休息室和通往酒窖的楼梯
2364 * 1621
1919 * 2560
1919 * 2560
1925 * 2560
2309 * 2560
2170 * 2560
1919 * 2560
1919 * 2560
1919 * 2560
1864 * 2560
2006 * 2560
1919 * 2560
1919 * 2560
1704 * 1204
1704 * 1205
1704 * 1205
TAG标签关键词:Studio Koster 别墅 住宅 家 空间设计 度假屋 郊外房子 建筑















































































































