




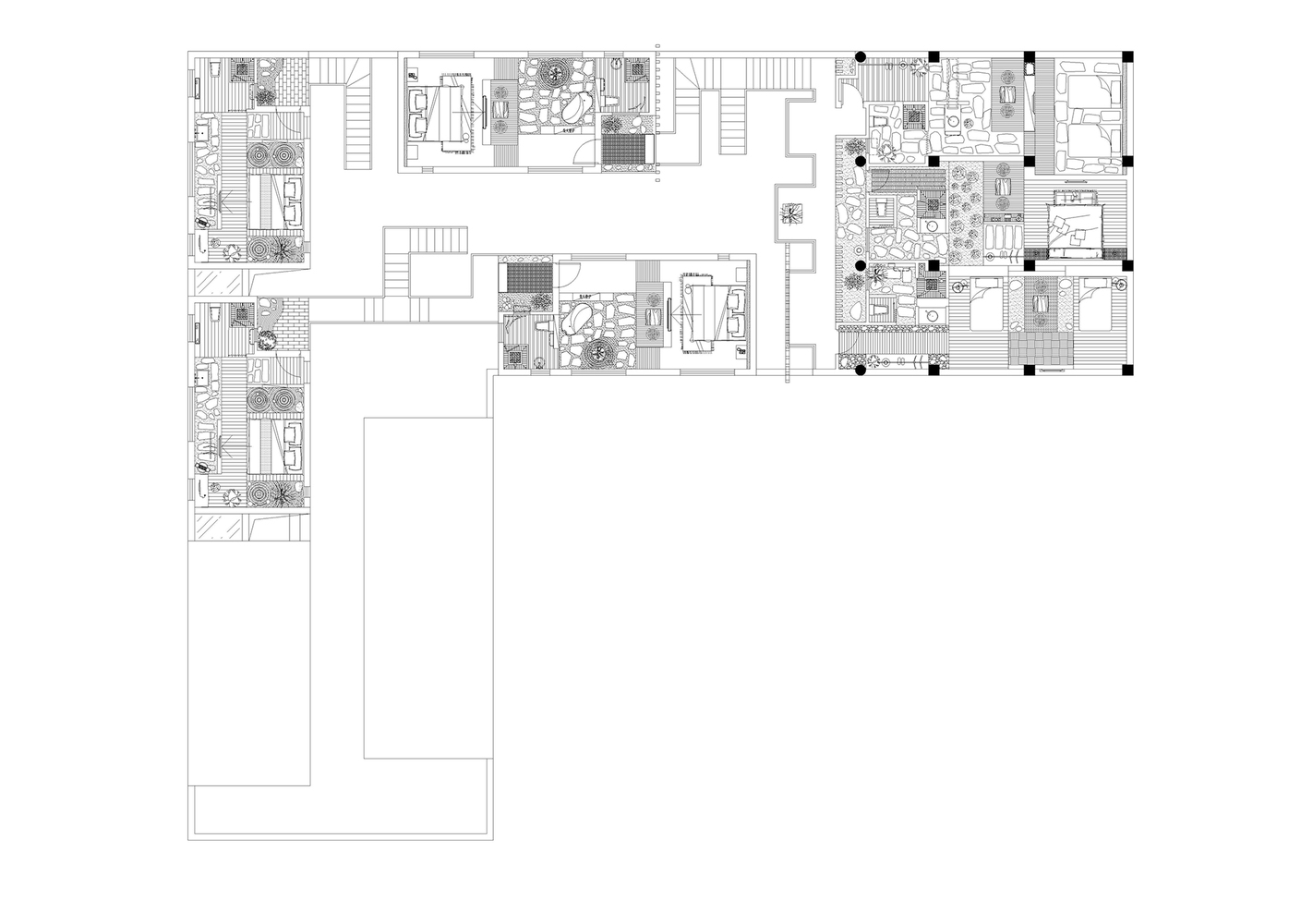
言・意的建筑由六栋小楼以及一栋老藏房组成,前厅大堂及餐厅所在的两栋建筑,视觉上犹如漂浮在空中,整个建筑群高低起伏、相互交错,楼与楼之间以走廊桥梁相连接。民宿共计15间客房,还设有大堂,餐厅和茶室;每间客房都设有入户的独特设计,展现出东方新禅意之美,同时也给客人带来了私密的体验。其中一栋建筑完整保留了原始藏式结构,徐老师提取了当地的藏式元素融进建筑及室内设计中,窗的设计也采用借景的手法,客人在房间透过窗户便能看到窗外美好的景致,蓝天白云,日出日落,大自然馈赠的美景犹如挂画一般,透过这些窗户展现在眼前。

新代建筑与老臧房的改造自然和谐,宛如天成;整个民宿体量虽不太,但精美别致。空间功能分区布局巧妙,恰到好处。建筑与周边环境、民宿客栈完美融合,却又出类拔萃,被当地委员会称赞为香格里拉最美的民宿之一。



民宿的名字来自于唐代诗人刘长卿的作品《寻南溪常山道人隐居》“过雨看松色,随山到水源。溪花与禅意,相对亦忘言”。寻隐者不遇,却得到别的情趣,领悟到“禅意”之妙处
















TAG标签关键词:亿端国际设计 酒店 别墅 公寓 住宅 民宿









































































































