

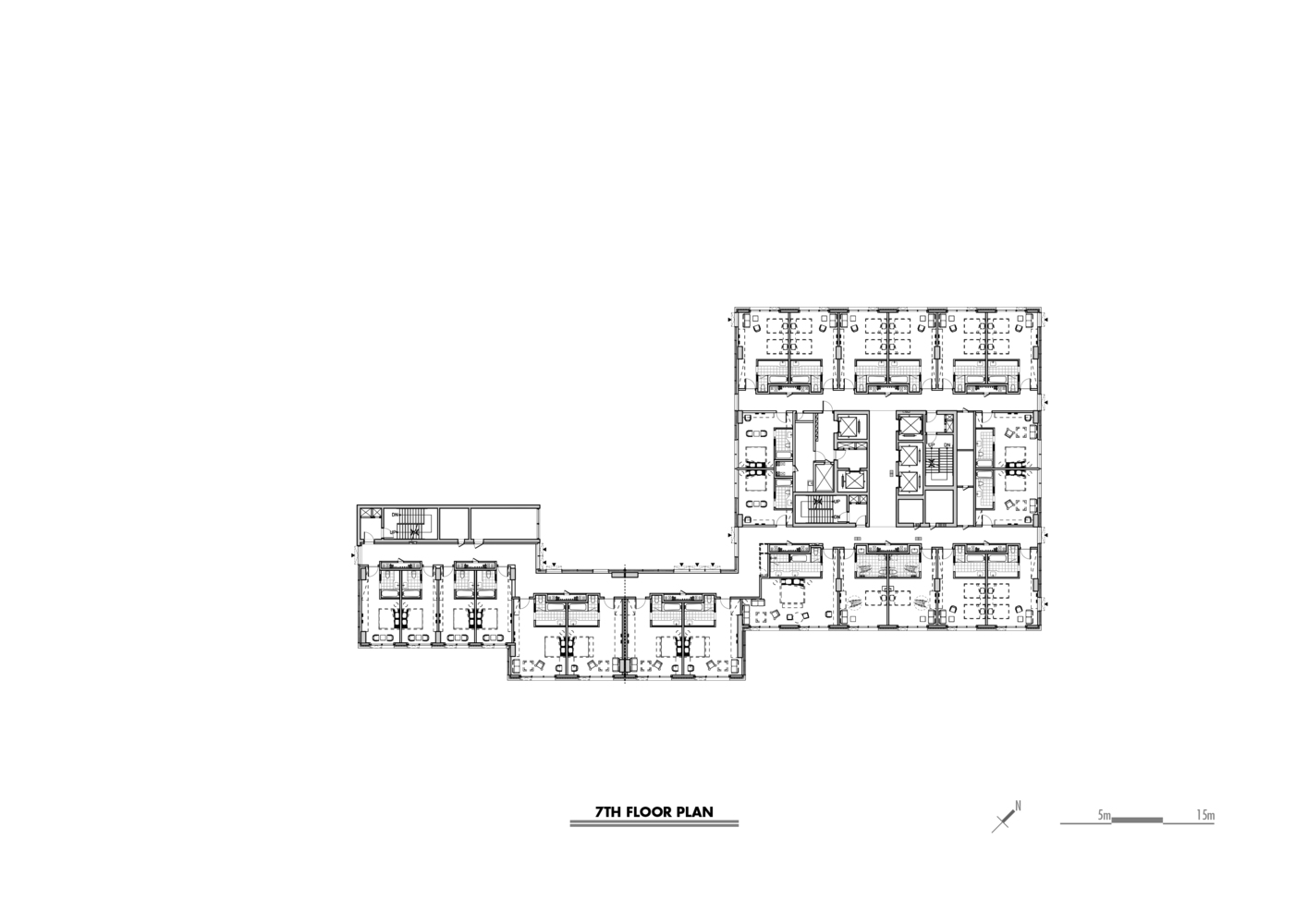
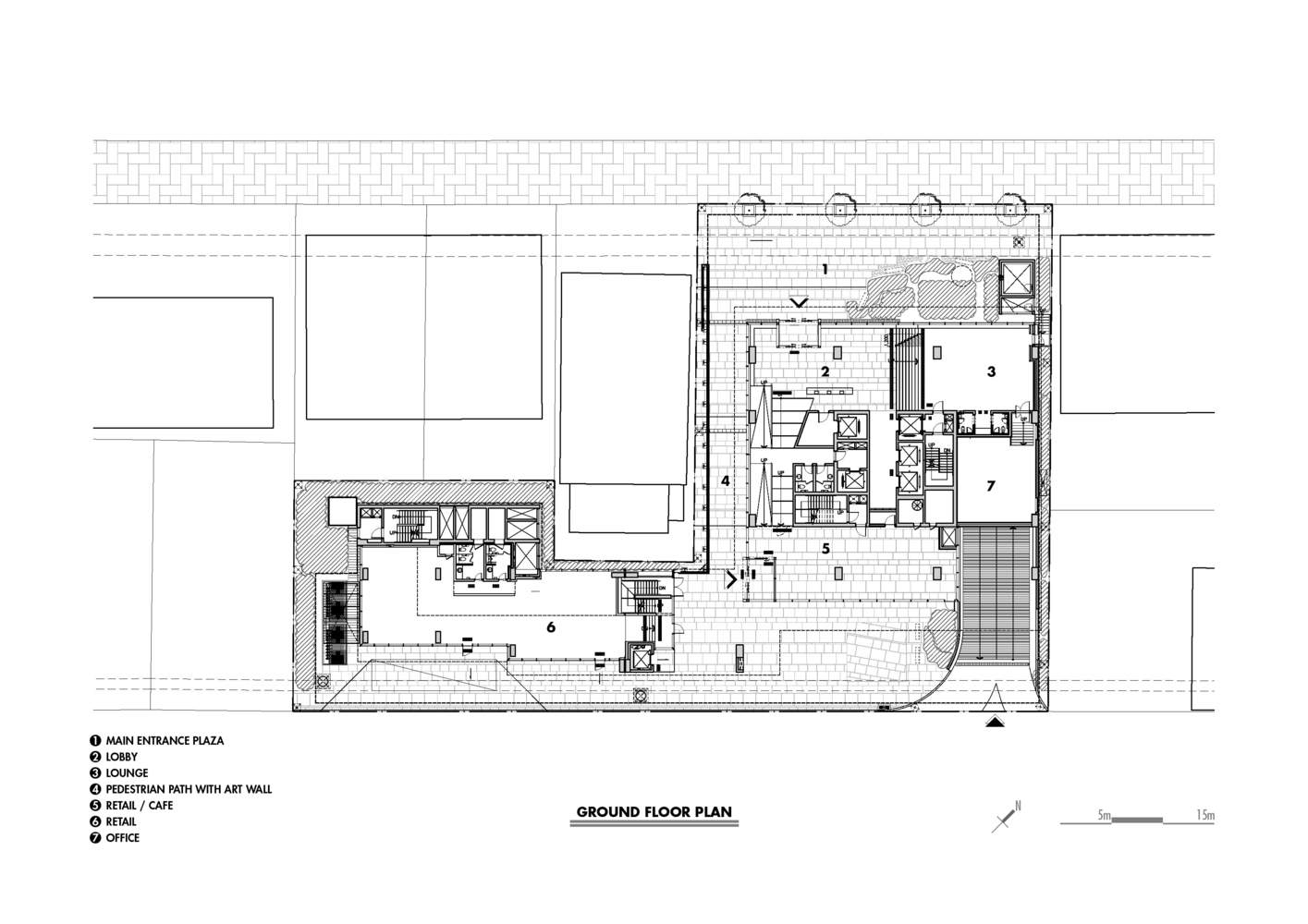
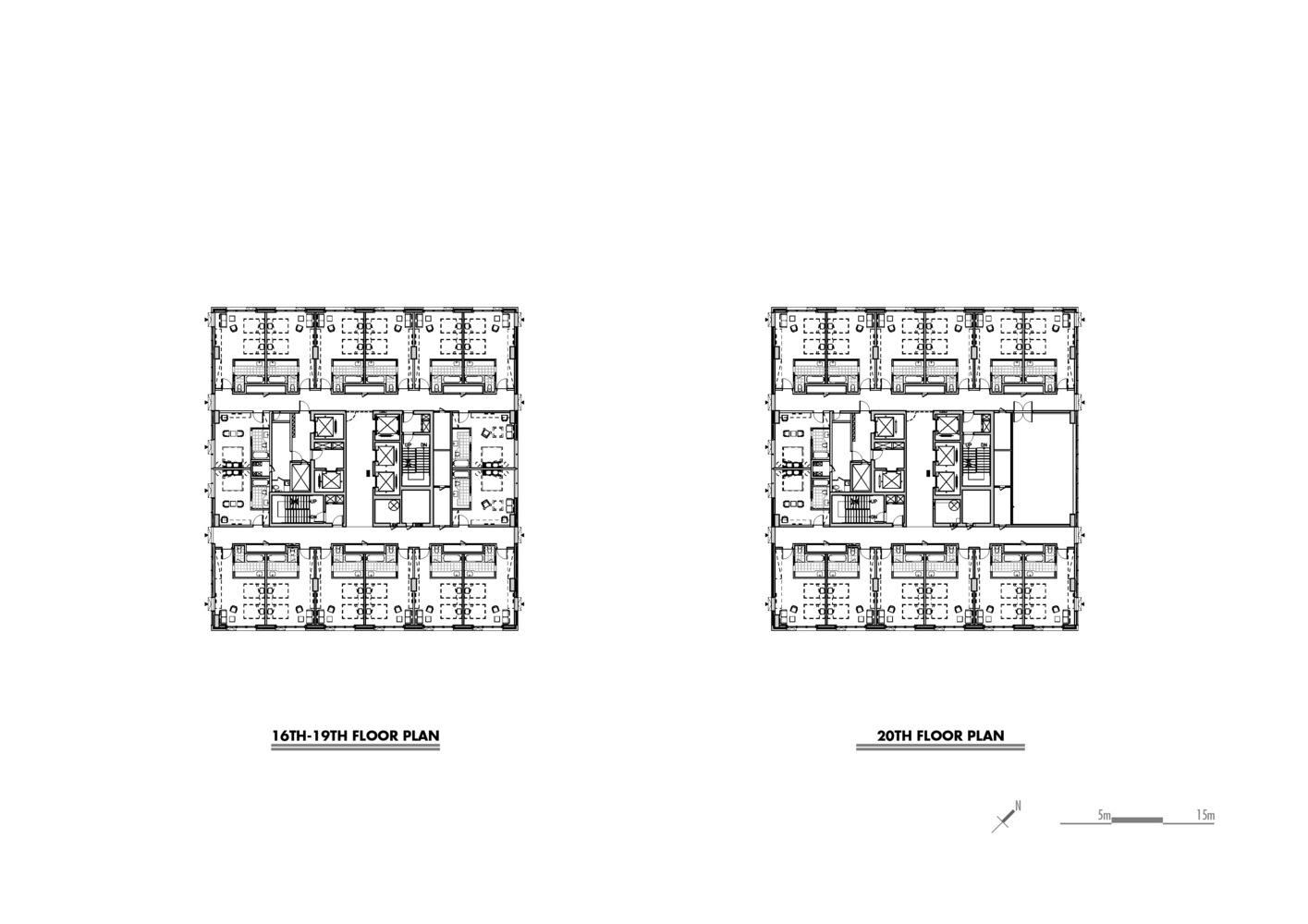
在初期概念阶段,酒店设计旨在为邻里活动提供完备的场地,一面是繁忙的林荫大道,另一面则是别具一格的弘大。与周边许多别致的建筑相似,随着时间的推移,酒店大堂,餐厅,休息室,会议室,宴会厅等公共功能已经以非传统的布局方式向上延伸到五楼,从六楼开始是私人客房













临街道的宽敞玻璃窗最大化了客人,零售顾客和路人之间的视觉联系。一条人行道将一楼分成两个部分,同时连接两个公共街道构建出场地的框架。面向街道的大面积开口设立了零售咖啡厅,也最大程度地提高了社区层面的渗透性和互动性。

建筑表皮由色调简单优雅的黑色花岗岩材料和结构玻璃幕墙组成。酒店较高楼层的外立面采用连续的玻璃,以反射白天街区不断变化的特征和肌理,同时呈现出日落后的生活。

花岗岩外墙看起来悬挂在建筑全玻璃的底座上,三种纹理不同的饰面采用了生动的图案,在建筑表面形成三维空间的错觉。SCAAA将这些元素称为“另一个角度的建筑” ,这些元素为人们提供了对建筑的不断变化的感知; 建筑设计的新方面可以随着时间的推移向路人展示出来。













TAG标签关键词:SCAAA 酒店 办公楼 套间 套房




















































