









出于对自然环境的尊重,整个建筑由纵向的黑棕木组成。视觉上降低了房子相对大的体积。单色的配色强调了整体的构造形式






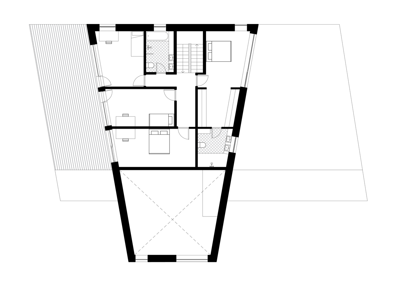
上层作为私人空间,设有4间卧室和洗手间。其中三件通向西向的公共房顶露台。

公共空间位于地面层并且直通花园。厨房和用餐区域位于能接受全部自然光的南向突出区域。面向西侧落日的起居室和桑拿房可以直接通向有盖露台。从建筑向外延伸到自然环境,模糊了室内室外界限的这个露台也是整体景观的一部分。





10 张 越南的海滩度假胜地屋顶游泳池别墅-有一个环绕下沉式休息室屋顶游泳池。位于城市岘港之间的海岸线,五星级的度假圣地,带水疗中心和酒店,以及众多的休闲设施。 : 948676
14 张 一半浸入草地沙丘的海滨别墅-位于荷兰的岛屿沙丘,可以俯瞰北海,混凝土卧室位于住所的地下室,而居住空间是通过木材和玻璃组成,非常不同的奇特建筑学对象 : 944412
12 张 1914年的房屋改造设计-设计师重新设计了一种新的厨房,浴室,洗衣房。在新的厨房,窗户被加入,而不是使用传统的挡板带来额外的光可以进行工作。 : 944729