

大院胡同邻近繁华喧攘的北京西四、西单区域,从宽阔的西四南大街向西进入大院胡同,顺着胡同的树荫前行,于尽头会看到两棵高茂的国槐,大院胡同28号就在那片国槐脚下。此时已听不到商业街的吵杂,两旁的合院居住片区充满了悠闲宁静的生活氛围,一下就把来者从现代都市拉近到了胡同细碎的生活空间,不觉突兀,反倒引人入胜。然而由于历史性的多方原因,北京旧城的“更新”、“改造”长期存在并聚焦于三道棘手难题:旧城人口结构的适应性调整问题,居民生活空间和环境质量改善问题,旧城风貌保持和传承问题。大院胡同28号虽不大,却可称得上北京旧城各种症结并存的缩影。

元明清时代的北京可称是符合中国古代生活秩序和文化的理想之城。从整个旧城、皇城,到王府、四合院,有着共同的营造逻辑和类似的结构特征:高度秩序化和可延伸、可加密的分型结构和基于“礼乐相成”文化特征的理想空间组合。以四合院为代表的单一家庭居住空间作为最小单元,以其为原型,在不同的尺度下变幻,为廷、为宫、为坊、为城,每一级单元均由下一级组构,自身又构成更大的单元;除了高度秩序化的分形结构,一系列非规整的自然元素同时渗透在北京城的各个空间层次中:在城市尺度,元大都的皇城以太液池和宫城并置;在宅园尺度,大户、王府往往在院落间择地造园;尺度进一步缩小到普通四合院,围合的房屋共享中间的自然庭院

自然元素打破了人工秩序的界限,与各尺度的“分形单元”紧密结合,构成自由与秩序的统一体,体现着《礼记》所倡导的“礼乐相成”,使北京这座都城成为中国文化精神的典型物质空间载体:既遵从分形秩序,又在层层嵌套中保持人工、自然的紧密联系,居所、市井、庙堂各得其所,具备一种独特的城市与建筑的复合结构,使城市各个尺度的空间在满足运行、管理、居住等生产生活需求的同时,还支持、引导着民众私密性和集体性的文化精神生活。

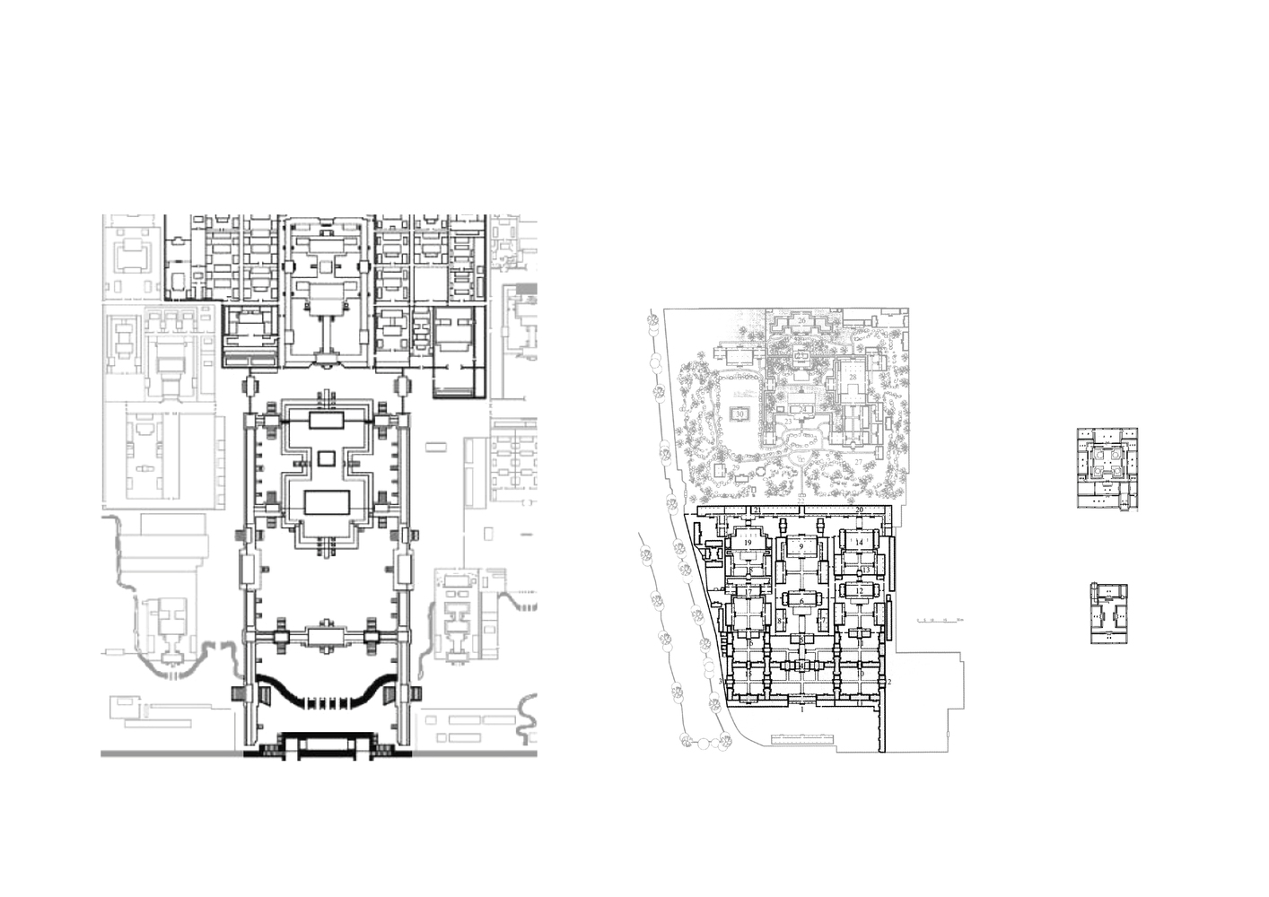
传统四合院通常容纳一个家族式大家庭,随着现代社会结构的转化,需要寻求新的空间模式以适应不同人口数量和空间需求的小家庭单元。大院胡同28号现存在三座产权合法的建筑(下文称作“北屋”、“中屋”和“南屋”),利用北京城市分型结构的特点,将原来的院落以开间为基本单元,进一步细分为多个更小的“宅+ 园”居住单元,聚集为“小合院群”,并将以胡同为主的城市交通系统向院内延伸出巷道及支巷,串联这些居住单元,从而实现城市空间结构的由“细胞”层级向“分子”层级有序加密,再进一步实现从“杂院”到“宅园”的进化。

在保持原建筑外墙和屋顶不变的前提下,随开间规律布置的混凝土单元分隔墙,在老墙的包裹中形成新的结构体系,同时成为室内的空间分界。偏于每个单元一侧的双墙空间,极限整合了入户门斗、跃层楼梯、机电设备、卫生间等,另侧较大开间,底层作为主要的起居空间,夹层作为卧室;室外入口廊道则是双墙向外的延续,与居宅和院墙一起形成对庭园的围合。这些线型混凝土结构为主干的结构/空间单元构成了内含于整体院落群组建筑的主要空间架构。

与主巷道串联的中屋最东侧公共空间单元,作为咖啡、餐茶空间,其坡顶局部抬高拉平,形成一个位于二层高度的半室外观景亭,嵌入原有建筑开间,其下压低为厨房操作空间。入口主巷道上方的混凝土檐板在此延伸为平台,与观景亭外侧连接为一体,在下限定出一个可休闲停留的户外灰空间,面对餐茶空间后部的公共小庭,在上的景亭“抬头”打破了原有瓦面坡屋顶的形态,视野在这里突然变得开阔,院落与城市景观交织,这也是公共巷道空间在剖面上的延伸。

这一公共空间的设立,完善了已建立的“街巷+居住单元”的模式,使得院落转变为一个“微缩社区”。这一公共空间既可为所有“宅园”单元居民日常使用、交往、共享,也可向胡同开放,对外营业服务于附近胡同居民乃至外来游客,进而成为更大范围邻里共享的公共服务空间,更增强其“社区”的特征。

外人由喧闹的城市商业街区转折进入闲适宁静的胡同区域,经过大院胡同28号,先从老墙上的“三用”窗读到一丝新意,大门敞开,檐廊深远,绿意盎然,遂通过一条半室外主巷道进入,巷道上方覆盖混凝土顶板,与东邻西墙脱开缝隙,光线顺筐挤入照亮墙壁和甬道;走过北屋山墙,入第一进,才知此处既非杂院,也非独院,而是“宅园”社区;通过一条再次分支的巷廊,分别进入北侧、南侧不同格局和规模的五套“合院”公寓,每套公寓拥有大小、形状不同的小“合院”――园庭;园庭之中,麦冬草地围合,高树之下、低矮灌木之间,混凝土体块水平、竖直组合,既取意抽象的山石,又是室外坐具、内藏照明灯具、浇灌水喉,置于波形立瓦铺地之上,铺地可存薄水而成水中树石之景;由侧廊赏景而入户,主要起居空间通透,面向并对景于园庭――为“宅园合一”,使大院胡同28号的改造超出了原有的居住功能,向着“理想居所”靠近。

由主巷道继续南行,经咖啡/餐茶空间,入餐厅,见高窗外有人谈笑,才知屋上有亭台;主巷道顶板与邻墙逐渐脱开,“阳光缝隙”斜向渐变为窄长的线型竹林,沿巷道继续前行,步入后面的小小公共庭园,见院中矮松与墙后竹林相映成画,却不知院中沟渠伸向墙后何方;见院内有混凝土台座,变化作阶梯状,方知由此入亭台,可以拾级而上,至抬升在庭院上方的亭楼平台;或在亭中小憩,或在亭外平台远眺

如果说地面层的体验像是走在清晰引导下,苦心经营的迷宫,那么登高便意味着眼前豁然展开画面全貌,片段化的拼贴还原成分形下的北京。夕阳西下之时,暮色弥漫之际,游者在此可观想、沉浸于由旧城层叠屋顶、古树、飞翔的鸽群、远方城市高楼群所构成的深远都市胜景。

大院胡同28号改造包含从“微缩宅园”、“微缩社区”到“微缩北京”等三个层次的概念,分别对应个人和家庭的理想居所、新城市小合院群及公共空间、分形加密的城市结构空间三个目标,从微观、中观、宏观三种层次对北京分形复合和“礼乐相成”的城市物质及文化结构特征进行了回归、延伸和当代性的反馈映射,也是对北京旧城更新“三道难题”的局部实验性解答,亦即以空间密度解决人口密度,以理想居所回应生活质量乃至精神需求,以规制化结构对应旧城风貌。

分形结构的最重要特征是局部代表整体,复合性的最主要特征是个体和群体的相互映射延伸,希望能将这一虽小而有代表性的项目经验及成果由单个院落向周边街区乃至更为广大的旧城区域扩展,真正实现由宅园向社区、向城市的延伸――将多个“微缩宅园”发展为多个“微缩社区”,那么旧城就转变为加密而由成倍数量的“微缩北京”所构成的“新”北京――北京还将是北京,只不过已延伸了祖先建城规划的智慧,“旧胎密骨”,获得新生,走向未来。
























TAG标签关键词:李兴钢 谭泽阳 朱伶俐 侯新觉 谭舟 张捍平 古宅 四合院 院子 住宅 家 建筑




































































































