在不改变主楼体街道感知体量的基础上,加建平面试图将可应用范围体量最大化。边界距离女儿墙进行适当的退让,另外考虑场地现有屋顶通风管道的制约
建筑将整体体量抬升1米,以使人们在室内视线看出去的时候超越现有女儿墙,提供毫无遮拦的观景机会。

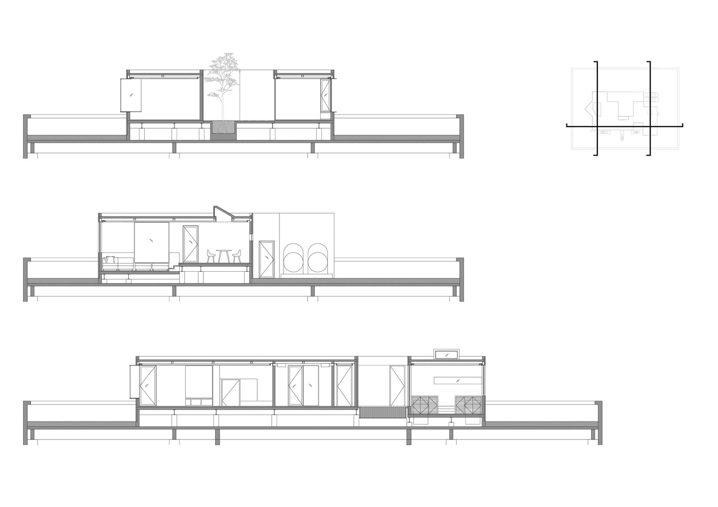
四个不同的角窗分别布置在建筑四角,提供了外向的景观机会。三个不同的院子也带入了向内的景观。西边树院,中部天院,以及东边水院,将光影与自然带到空间组织中来。建筑主体为钢结构,轻质混凝土砌块为墙体填充,外加泡沫保温板材,外立面为抹灰加涂料。室内地板为复合实木地板,墙面为抹灰加白色涂料,天花为石膏板加抹灰白色涂料。建筑材料预算成本很低,主要将视觉焦点集中在最精彩的向外与向内的自然景观。


为了在屋顶上实现提升1米的做法,建筑需要建立一个新的平台。此平台结构对位生根于五层的柱梁结构之上,建筑体的结构在此平台上再按自身逻辑生根。

新的地平与楼面板之间形成了空腔夹层,不但很好实现了热工性能,而且为院子的覆土、鱼缸水池以及空调管道提供了空间。





基于现有楼梯间与电梯间的T形体量,新建建筑平面以U形平面嵌入。西边员工区相对开放,由厨房、餐厅、吧台、休息区等功能组成;东边起居区相对私密,由茶室和起居空间组成;中间连接区域布置机房、卫生间等辅助功能。































































































