

位于拉萨市城关区东部的一处藏族聚居区,由政府九十年代统一修建的一楼一底(二层楼房与一个前院格局),属于业主洛桑父母那一代的商品房。近几年由于洛桑的大女儿和小女儿相继出生,一家六口的生活需求与原有的空间格局产生了一定程度的冲突。另外家里每年藏历拜佛节日的时候,洛桑一家和拉萨其他家庭一样,会迎接从藏区各地前远道而来参加节日的亲戚朋友,而现在的房屋内部空间已经很难满足,需要预留充足的休息空间。洛桑和太太都在内地受的大学教育,很大程度上更适应现代的生活方式,要求老房子在室内设施功能方面有所改善。符合现代化生活功能性需求并兼顾传统精神生活,因此,能够避免在内地城市化过程当中反复出现的问题,在藏区去重新挖掘具备当代特征的居住空间,成为新的建筑空间格局以及组织模式的基本出发点。

拉萨被誉为日光之城,阳光是对一家人居住行为当中非常重要的元素。但是光并不意味着无限制的光,而是一种被控制的光,被设计过的光。传统的藏族起居空间里,对光的控制体现在“冬室”和“夏室”的区别。开窗规律为下层窗小,利于保暖,故为“冬室”,上层窗大,利于通风,故为“夏室”。一层外墙很少有开大型窗户,这样形成的传统藏式的院落往往是一种内向型的空间,并通过高高厚厚的院墙营造私密、肃穆、威严的气质。 但是在新式的厨房以及厕所等功能空间的要求,很多不得不在外墙开一些小型的功能性洞口。因此在新的设计中,在保持外墙私密的前提下,通过撕裂几处裂缝,来为室内的空间提供采光与通风,满足功能性的同时,将外墙的界面处理的更加柔化与模糊。另外,建筑师观察到当地人在翻新当代民居的时候,特别注意外墙材料的运用,一般他们会使用如拉萨石等天然建筑材料。建筑师在改建部分的建筑上,使用混凝土整体浇灌的技术,一次成型的混凝土外墙运用混凝土木纹肌理产生的白色墙面, 通过实木质感与人尺度拉近,打破常规高高的外墙与人的隔离。

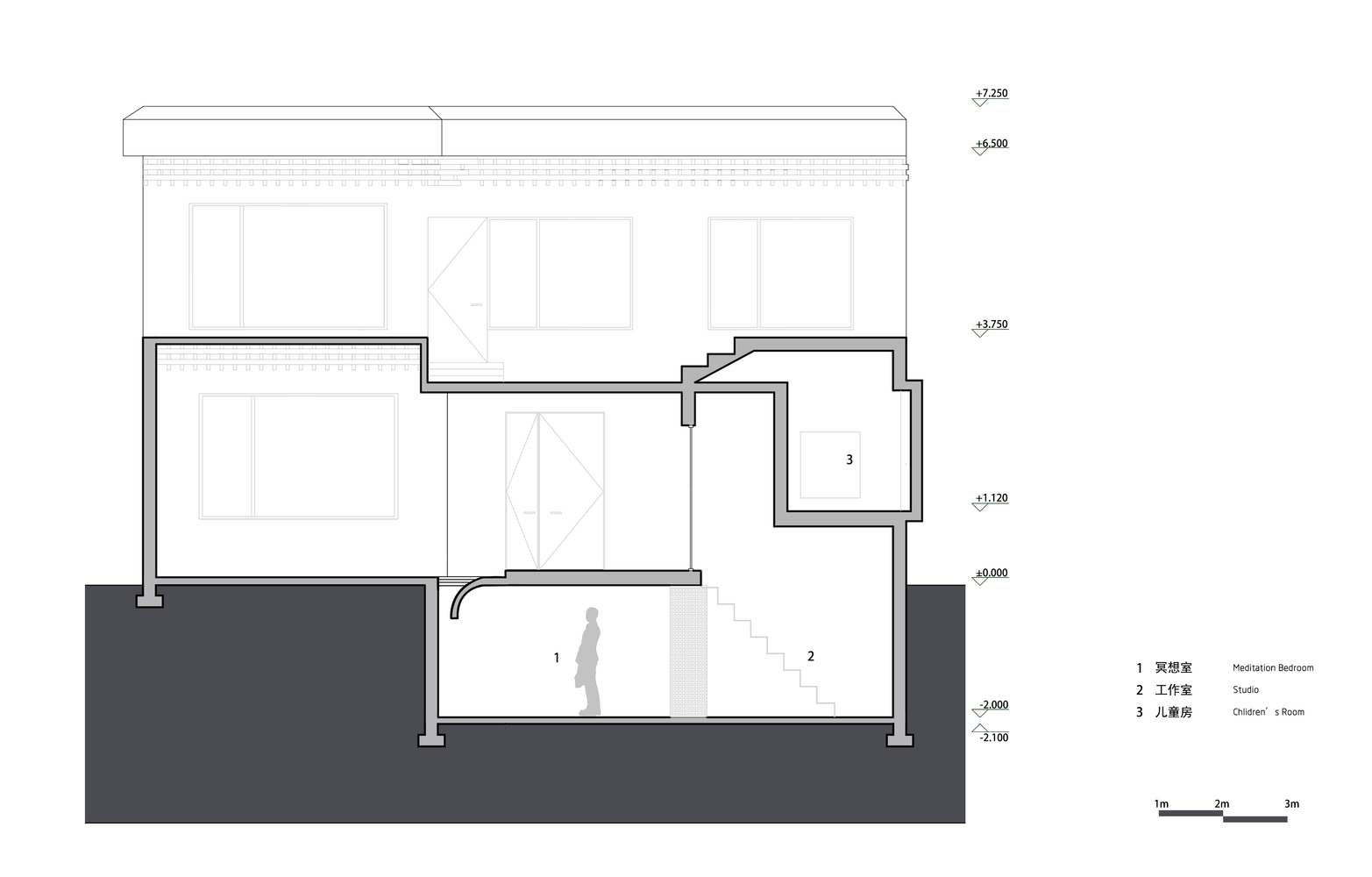
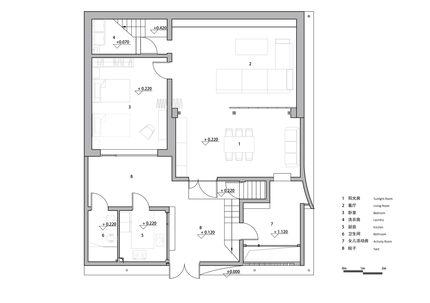
随着室内现代取暖设备的普及,当地家庭里在院子里搭建阳光房,是承载着西藏人一天起居、吃饭、休息、交流的场所。在原始房屋结构允许下,建筑师将一楼阳光房和客厅贯通,使得室内采光充分得改善并拓展了阳光房的使用面积。这样,“冬室”和“夏室”的活动都发生在阳光房当中,成为当下藏族居住院落的“世俗”化空间核心,也是最光亮的空间。


在其他的空间中,光的元素也被有意识的控制,比如南侧的儿童活动房间与地下工作室,通过向北侧的后退,留出南向采光面,并通过东侧飘出的线性窗户,为儿童活动室增加采光。厨房为朝东的大面积开窗,尽可能的引入阳光。院子当中的洗手间,利用西侧飘出的三角形开窗,在保证私密性的同时引入采光。二层加大了每个区域窗户的采光面积,符合传统中“夏室”的规律。



















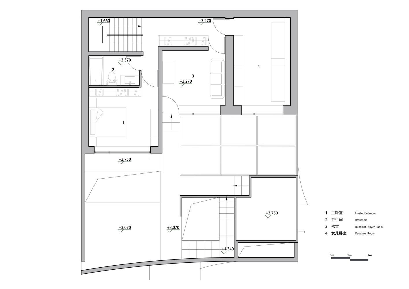
佛堂,是藏族院落的“精神”化空间核心,需要光,但是需要不一样的光。在整个新的院落中,建筑师设计了两处佛堂空间,一处为相对传统的佛堂,位于二层,通过窗户的木质格扇,控制进入的光线。另外一处为新式的佛堂,位于地下一层,天光的控制,为地下佛堂营造神圣静谧的空间气氛。由于佛堂是藏传佛教每天修行的区域, 建筑师尽最大可能的对当地信仰的尊重的同时,在细节上增加了一些当代设计特性的空间处理。地下室佛堂入口采用木结构与点状光照明,与室外庭院带来的天光呼应,减少从一层院子通过蓝色楼梯到达地下室时的压抑感。可活动开合的木头镂空屏风门将地下室空间一分为二,增加了进入空间的仪式感。二楼的佛堂采用传统民族吉祥结符号设计的天花,暗含回环贯澈,一切通明,永无障凝的寓意。

藏族的洁净观强调“内外有别”, 以家庭核心空间为圆心,越是内部的,越是洁净。因此,爷爷奶奶居住的一层空间中,保留卫生间设置在小院靠外墙的位置,在二楼区域增加了室内卫生间。藏族总是尽可能地利用户外空间活动,因此,加建部分的楼梯连通新建的厨房和厕所的屋顶平台, 成为将来洛桑一家主要的室外活动空间。在流线方面,外部拜佛的亲戚通过庭院的楼梯进入到二层佛堂,并通过内部楼梯连接回到阳光房。这样可以避免亲戚朋友到访时对一楼老人休息区的打扰。女儿也可以通过阳光房的爬梯进入的活动房,并通过室外楼梯上到屋顶平台。


新的居住空间必然是要符合现代藏族家庭对于生活起居、宗教信仰等等所有的具体需要,并且更加科学合理化的规划处理流线、通风、采光、保暖、水电等基本要素。在达到这些基本要素的基础之上,通过一个现代化的空间来满足一家人的精神诉求,以及整个院落在社区中的示范价值。在整个新的院落设计中,光线、私密性、流动性是重要的关注点,也是通过研究得出的在藏式居住空间中非常重要的空间要素,甚至我们认为是要重要过许多藏式文化符号的要素。整个空间是一个连续性的流线,将空间的物理属性拉大。最终作品的呈现甚至没有采用任何藏式装饰性的符号语言,而是通过对于空间本质的挖掘与延续,在满足新的生活需求的前提下,创造一组具有藏式精神与气质的新式居住空间,为藏族居住空间的现代化发展提供一种新的可能性。












TAG标签关键词:hyperSit 民居 住宅 家 建筑




































































