

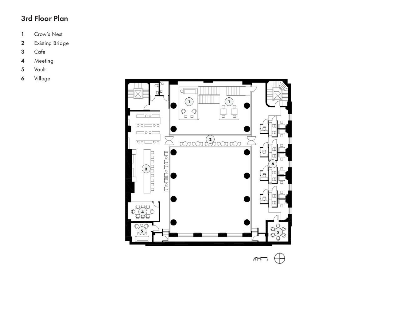
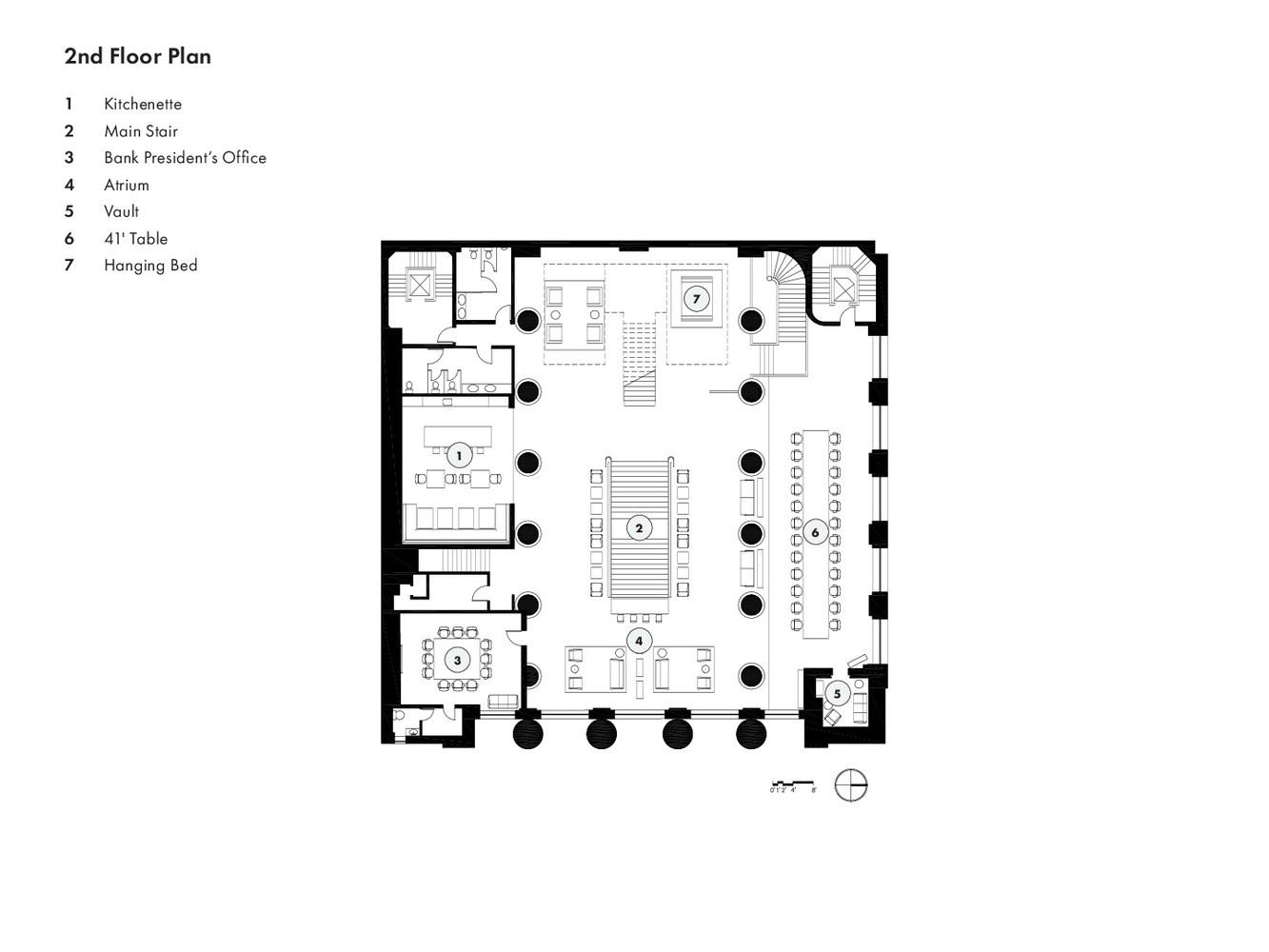
在高四层有自然光透入的中庭每一寸空间里,都有经典的柱式,巨大的银行拱顶和艺术装饰细节,作为工作场所的功能。座位是不指定功用的,所以就不必有专用会议室,员工可依据个人习惯,心情和手头任务选择坐在哪。 主楼层包括一间厨房,里面储备有零食,现成的康普茶(kombucha),还有一个装备有加厚软垫长软椅的客厅,同时一张定制的41英尺长的木头和黄铜镶嵌的公用长桌占据着毗邻的区域。 在楼上,会议室借鉴了现代Mad Men 作品中的美术风格,一间装饰有镜面墙的地下酒吧风格的沙龙被安置在一组隐藏门后面。在第三层,有一间橡木小屋,设计手法让人联想到斯堪的纳维亚的建筑技术和风格,小屋为社群和个人提供座椅方便他们接听电话或安静地工作。

ZGF 工作室巧妙地平衡了 Expensify 公司的空间需求与建筑的重要历史价值,体现在他们设计的一系列悬空的会议室,通过参考历史建筑的细部和整体比例设计在银行主入口楼梯正对面的上部。 让人联想到大中央车站或是电影《了不起的盖茨比》中的场景,来访者通过橡木楼梯来到办公区,在他们面前是另一个细节通过精心设计的由黑色钢,木板和玻璃组成的楼梯,利用巨大的中庭空间,创造性地将现有建筑的不同层之间连接起来。 楼梯两旁是两个黄铜包覆用玻璃封闭的工作空间,在其顶部类似乌鸦栖息巢穴的地方是多用途工作区。作为一类树屋的概念,这个想法被悬挂在工作空间上的像秋千一样的平台强化。












TAG标签关键词:ZGF 办公室 住宅 家 建筑











































































