

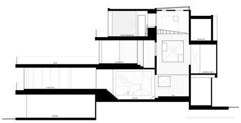
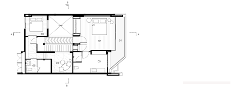
餐厅与主卧

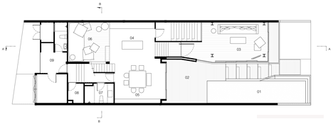
客厅









过道


上下儿童阁楼房间,可以用楼梯爬上去

客房

户外墙壁涂鸦了熊





TAG标签关键词:Onion 建筑 房屋 住宅 家
16 张 滚动小屋-坐落在华盛顿州的山谷草地,是野营的另一种方法,这些小屋是传统露营的现代替代品,为客人提供舒适的旅馆,有美丽的风景和安静的露营环境。 : 960119
12 张 9 Dragon Bay-五星级酒店服务式公寓大楼建筑设计,997300平方米;用地面积551750平方米,位于威海市的南缘,一个充满活力的公共海滨毗邻海滩,集休闲,商住公寓在一起的住宅商务区 : 953240
10 张 工业阁楼空间设计-在西班牙巴塞罗那,老厂房改造而成的空间,由于老厂已经暴露砖,所有这一切都被涂成白色改成铁结构,建筑师保留了双高天花板和高大的窗户,便于采光 : 938602
26 张 露头悬臂屋-建筑位于加拿大,建立在峭壁上,场地的地形是非常不规则的,房屋离地面有13米以上,周围是风景壮观的,后面有森林,里面住着一对已婚夫妇,房屋里面有丰富多彩的设置,让人想起世外桃源 : 936484