

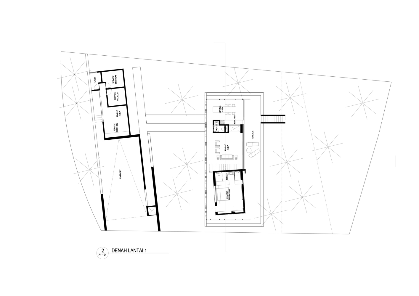
住宅使用的木材包括屋顶上的木瓦片、室内的柚木、露台的铁木,它们和万隆凉爽的气候十分适宜。除了物理热方面的考虑,我们也选择在别墅内营造出舒适温暖的氛围,令家庭成员们可以在此聚会和休憩。不同的楼层分别满足了生活所需的不同程度的私密性。住宅的地面层设置了生活必须的所有功能空间以及几间卧室,通过设置在一边的窗户可以眺望到南边的景色。
别墅的首层设置了一个半室外的露台、起居空间、餐厅和夹层里的阅读休息室。这些空间被一个壁炉和一道滑动玻璃门分隔开来,玻璃门在白天打开,它连接着一个在住宅的一边舒展开来的宽敞深远的露台。双重斜坡屋顶由结构和新型建筑细部构造组成,通过使用崭新技术来取得建筑语境上的本土性。这栋住宅的设计不仅创造出一个在折板屋顶下的宁静空间,更通过在木制天花板上开缝引入了自然天光来利用太阳。








TAG标签关键词:andramatin 尖角楼 Mario Wibowo 三角屋 住宅 家 豪宅 别墅 住宅 建筑



















































































































































