
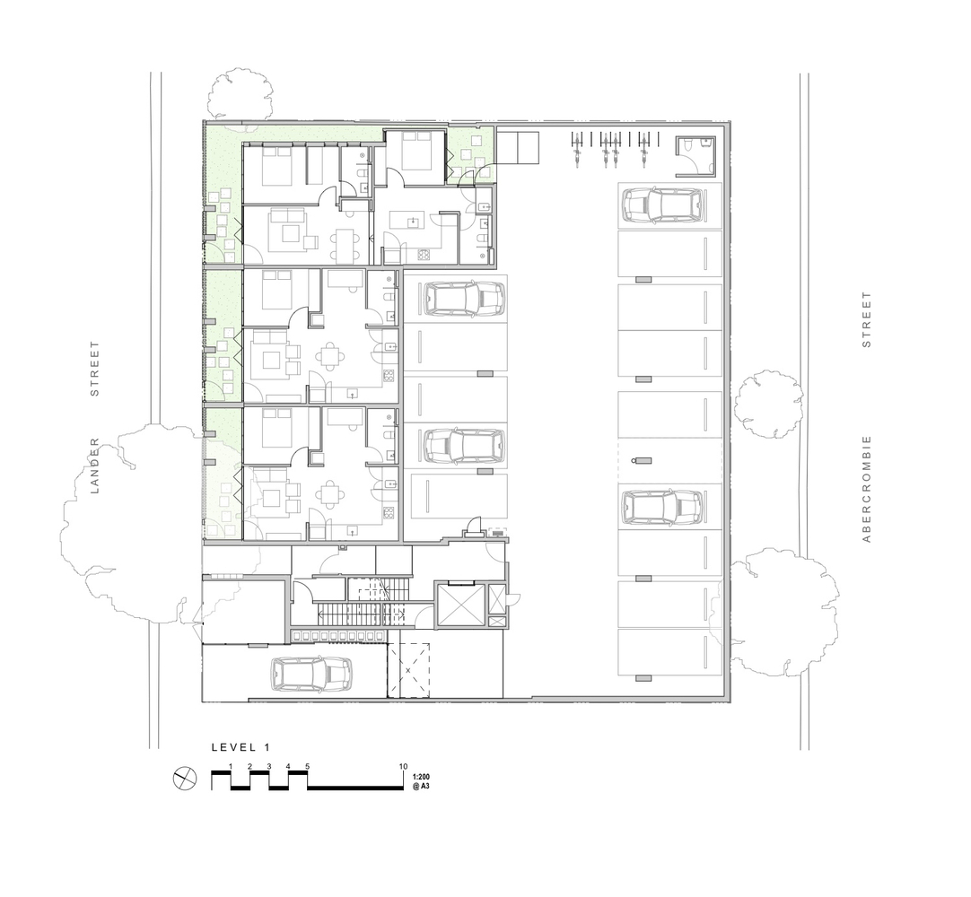
通常情况下,公寓面向街道的一侧的私人开放空间总是不能享受到应有的隐私感。而我们的设计则将这部分私人开放空间向深处回撤,减少鱼缸效应和匿名的外观主义。由于建筑少了对朝向街道一侧的窗户的依赖,我们可以更加自由地运用建筑的坚固性与物质性。所有建筑的正面都被有意地隔断开来,以创造一个与人体相称的都市设计规模,而周边的景观则帮助填满了这些空隙。
建筑内部的走廊设计得像是外部街道一样。内部走廊通常更多强调其实用性并被看做是低级空间。而在我们的设计中,建筑之间的走廊被座位是当地街道的延伸,与都市环境和谐相称。接待大厅的入口和垂直的流通在 Abercombie 和 Lander Streets 之间形成链接,成为了“中间街区”,这也为街区带来了流通性。刻面微细的钢铁与折叠的混凝土更是加强了这些入口在街道上的存在感。

这样的材料运用其实能在 Lander Street 尽头的悉尼大学的后门入口看到。耐候钢在那里被用作是隔离板元素。因此我们将耐候钢作为外部镀层的决定给了这一建筑另一个与当地语境对话的机会。我们保留了建筑在建造过程中所留下的所有标记,例如在镀层时铅笔留下的草图和混凝土上留下的喷涂标记。建造过程中发生的差错甚至都没有被覆盖或是隐藏起来。他们都被留存了下来,成为了一种反映人类生存状况的痕迹。


















TAG标签关键词:Glyde Bautovich 公寓 房屋 住宅 建筑











































































