

然而,因为担心这个旧房子可能会有的一些至关重要的基础问题,例如结构安全上的缺陷和隐患,最终还是决定从头开始修建一个新的房屋。客户要求将这个场地大小有35平方米(总建筑面积有53平方米)的小房子分成两部分――用作书房的私人空间和客人可以使用的公共空间。

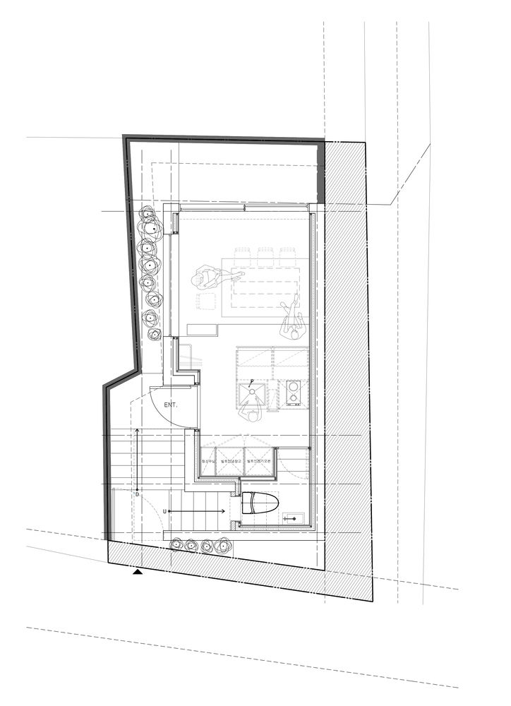
因为这个住宅规模极小,一层是面积最大的空间,然而也只有大概21平方米,所以我们需要采用新的思考角度和寻找新的解决方法来着手处理像是平面布局、结构、动线、饰面材料和空间功能的这些建筑要素。你会在最终设计结果中看到我们最为完善缜密的设计思考,像是钢筋混凝土的使用,保温隔热的建筑外墙体系,内置于混凝土结构框架中的排水管道,调整后比道路路面低一些的建筑一层,以及在建筑一层和二层分别设置的相应入口。另外,因为这个房子是想要设计为第二个家,所以我们还需要思考这个房子的维修维护方式。但同时,我们在设计上也可以有一些灵活的空间,并能够尝试一些和客户第一个住宅不一样的东西。

一层被设计为一个公共空间,有厨房和用餐空间,在需要之时可以招待客人。一层的主要特点之一是人们能够穿着鞋子进入。这也给了这个住宅一个机会去成为这个街区中的一个让人们集聚在一起、相互交流的社区平台。也因此,一层既不能够被定义为一个严格的私人空间,也不算是一个完全公共的空间,但是它可以是一个将这个房子和社区、和城市连接起来的共享空间。

二层的书房,三层的客厅以及人们可以脱掉鞋子进入的阁楼的卧室,是根据空间功能的隐私性需求程度在垂直方向向上叠加排布的。我们在放置窗户和露天平台的时候考虑了周围建筑的位置,通过窗户、露天平台以及三层和阁楼之间开放相连的空间设计,去最小化这个小房子可能会给人带来的封闭局促的空间感观。

这个房子最初是以第二个家的概念进行设计和规划的,但是根据这个房子里的居住者的生活方式,它仍有许多能够适应其它功能和用途的潜能。当客户长期外出旅行或者决定不再将这个房子作为一个家来使用时,一层就可以用作一个私人用餐餐厅或者是共享厨房,房子的其余空间可以作为民宿或者作为聚会场所进行出租使用。




















TAG标签关键词:mundoehoje 住宅楼 房屋建筑 房屋 家 建筑





























































































