
房屋的边围由双层墙界定。具有较大开口的混凝土表皮墙作为主要围墙和隔断以保护隐私,同时保持其视觉效果尽可能开放通透。而在内部,墙后的空间灵动活泼。墙的偏移线形成的间隙用作缓冲区,并通过放置一些植被来在视觉上软化“堡垒般的感觉”
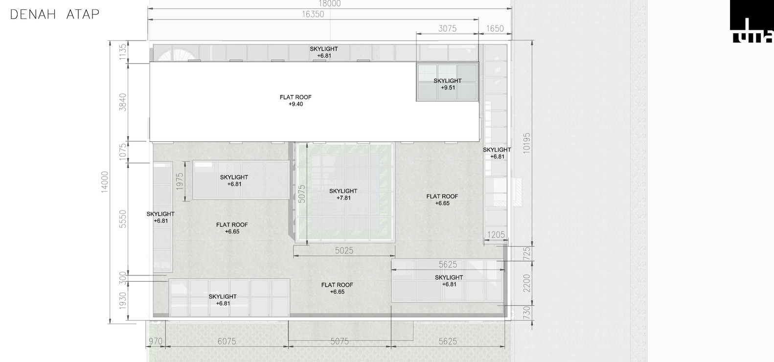
此外,房屋临近主道路的一侧没有开窗,以避免与工厂直面相视。而通过在房屋上方开天窗来最大程度地提高空气流通量,并维持整个房屋内的私密性。
设计的整体作为一个巨大的体块被主楼梯分开,房屋中间的一个大天窗提供了主要的空气流通和自然照明源。
通过这些策略,这种热带现代风格的建筑在房屋内部创造明亮空间和良好通风的同时,仍然保持了很高的私密性。















TAG标签关键词:RDMA 豪宅 别墅 家 住宅 建筑
































































































