

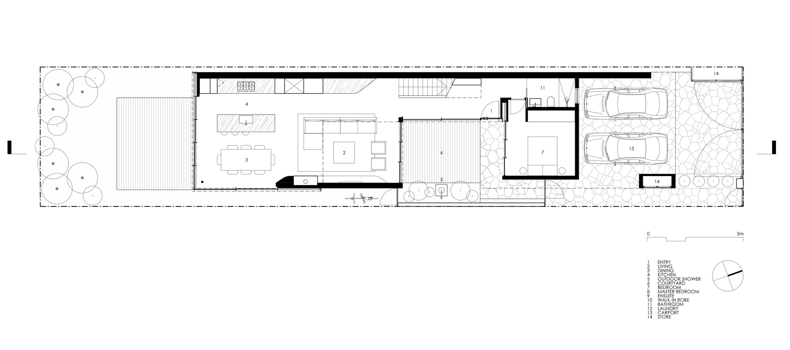
住宅为由首层内部庭院和上层的开放式过道相连接的两个部分。笔直的体量被缝隙穿越,强调了文脉和程式,为建筑提供了多种样式的光线。住宅首层是灵活布置的起居空间,私密的卧室。其他起居空间则位于二层。两层楼由中央庭院旁的侧翼将其联系起来,形成循环的动线。

住宅内部巧妙的的弧形设计弱化了外部纯直线的几何感受,包括一个枢轴转动的圆形窗户,一个弯曲的混凝土基座以及逐渐变窄直至与墙平齐的细木工制品。温和色调的暖色木材、白色和灰色与可以捕捉变化的日光的轻质光面砖墙共同回应了邦迪的海滩特色。

与Dangar Barin Smith 从概念到构思的合作将景观作为了设计的一个重要组成部分,实现了户外空间(如花园、室外淋浴和庭院)与一层的无缝连接,花池弱化了首层主卧室的边缘。该项目风格简约,通过严苛的设计细节和施工团队的精细工艺而实现。与专业承包商的合作为定制提供了可能,如弯曲的混凝土基座、可旋转的圆形钢窗和可活动的木屏风等等。







TAG标签关键词:Akin Atelier 别墅 住宅 家 建筑











































































