

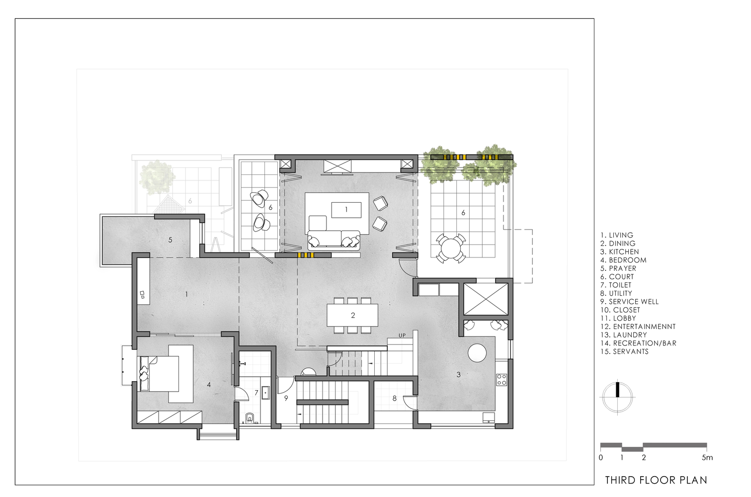
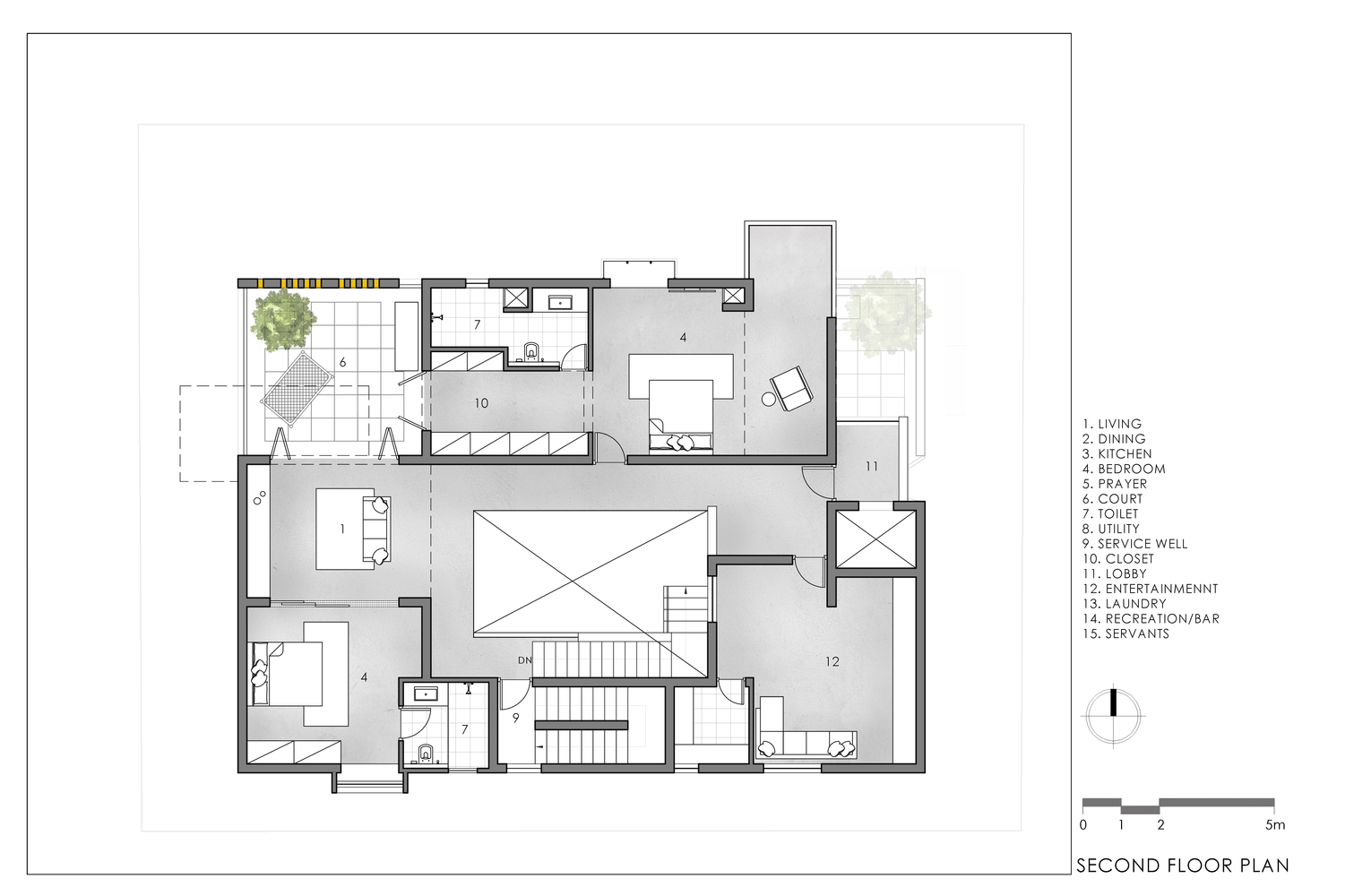
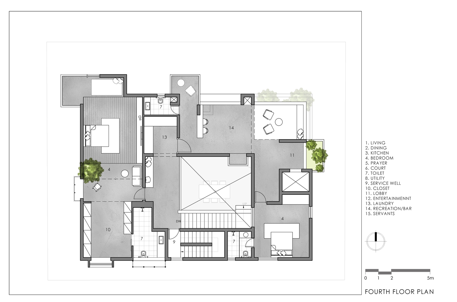
基地面积大约15米*18米,位于一个紧凑的五层公寓里。它被北部和西部的道路所限制,也因此成为这里唯一周围没有紧邻建筑的房子。从一开始,设计的想法就是为了保持今后两代人之间的联系。公寓的一般概念是保持各住宅单元之间的隐私。我们就将设计构思放到公寓的模型中,既提供了隐私性,同时保持了家庭之间的联系。这是通过将居住空间向大型公共庭院开放来实现的,这种庭院实际上有两层楼的高度,它提供了社会与家庭层面之间的联系。这些方式从视觉上缩小建筑的规模,向最前面的角落开放:在东北和西北。

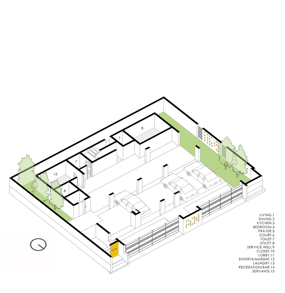
支柱空间是用来停车和作为服务房间的。最年长的一代人住在较低楼层,一层以及二层。最年轻的一代人使用剩下的两层,其中包含他们为下一代人留的娱乐休闲空间。每层楼都有一个绿色庭院。这些都被金属百叶窗和穿孔的外墙覆盖,以创造出区别于周边的隐私性。穿过这些空间,你可以走到阳台上;你也可以边读报边与家人闲谈;也可以闻到厨房飘出的食物香味。庭院中会有大量阴凉,可以作为瑜伽、闲坐、祈祷和进餐的空间。

较低的两层和上面两层都对内部开放,通过大型的中心空间相联系。中心空间包含了彼此通向上层的楼梯。墙壁保持着纯白色,视觉上增强了空间的尺度,墙壁上的姜黄色或泥土的成色创造了视觉深度、增加了色彩对比。门和窗户是被漆成白色的印度柚木。这种巨大的聚氨酯混凝土地板的较低两层颜色较浅,较高两层的颜色较深。家具的尺度都维持在最低限度,以避免使用空间的混乱。室内色调大部分是浅色的,除了四层的卧室外,不过它有自己的天窗。











































































































