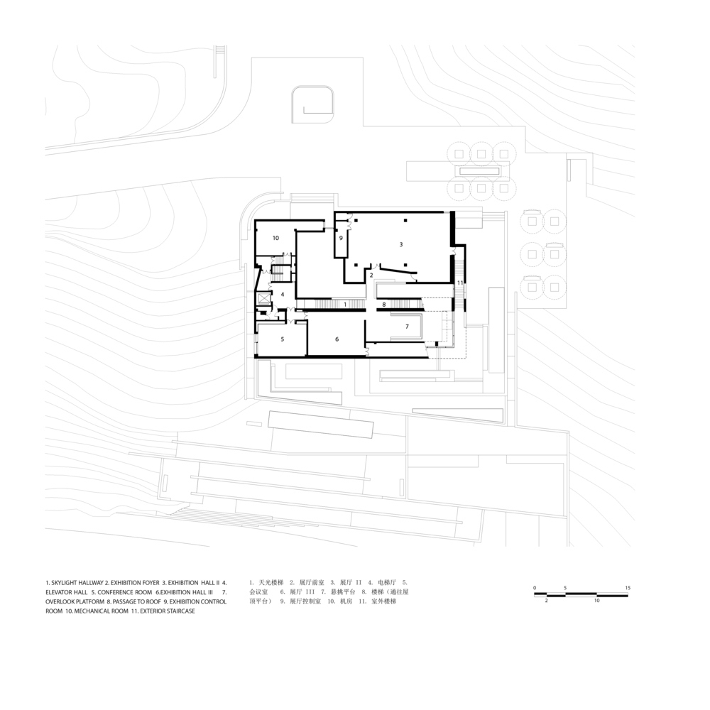
华润档案馆内的公共空间被设计成了规整合宜的方形比例。为了更好地呼应档案馆内部的功能区块和场地之间的联系,建筑师为其打造了两个空间:一个连接小径湾校园的低调的入口,和一个收揽城市风貌和山、海盛的展览平台。而这两个空间由一条线性、精巧的“天光廊道”所连接。
建筑体量经由斤定的场地条件进行精准的划分切割与整合。在建筑的主入口门厅(最靠近校园入口),空间被切割为一个相较独立的建筑体量,入口藏于体量下方,藏而不露。

而在建筑场地的东端,展厅门厅则以一个精巧的角度被限定分割,加大视觉冲击力的同时也使得室内空间更多地向外打开。展厅外的露台得以揽收城市繁华风貌,也能坐拥山间胜景。同时,一系列的坡道和台地将访客引向山脚,走向城市。

建筑的界面由人工烧制的灰土砖砌筑而成,这种敏感而朴素的材料,使得每块砖展现出它烧制成型的微妙过程。除了标准的平砖幕墙,两种其他的砖墙肌理也出现在外立面上。
突出砖的立面部分展现出更强烈的光影效果和立体感;镂空砖幕墙使阳光投入室内,同时令室内拥有视野,但仍保持建筑的完整的外观。
在设计的过程中,我们(Link-Arc)也关注砖的砌筑给建筑外饰面带来的变化。砖烧制得来的表面肌理,给人带来坚实的触感,含蓄而沉稳。

同时,砌筑方式的变化,也使得“墙”的概念变得更为通透轻盈,空间得以相互渗透。砖块本身的质感,与灵活多变的砌筑方式,创造出变化多端的建筑质感与别出心裁的室内体验

除此之外,烧制砖这种由土地转化而来的材料,与山体之间带着天然的血缘,而烧制的过程引入的手工痕迹,也更好地记录了阳光在建筑外墙上的流动。这一切都让建筑更好地与土地,与历史,与工艺对话。
更多 Studio Link-Arc » 2015年米兰世博会中国馆 / Tsinghua University + Studio Link-Arc © Sergio Grazia 2015年米兰世博会中国馆 / Tsinghua University + Studio Link-Arc 更多 Studio Link-Arc » 更多 文化建筑 Hacettepe 大学博物馆和生物多样化中心/ Erkal Architects © Yercekim Architectural Photography Hacettepe 大学博物馆和生物多样化中心/ Erkal Architects 上海当代艺术博物馆 / 刘宇扬建筑事务所 © Jeremy San 上海当代艺术博物馆 / 刘宇扬建筑事务所 仿古结构 / Vazio S/A © Gabriel Castro 仿古结构 / Vazio S/A 更多 文化建筑 » 最受欢迎 松阳原舍 ・ 揽树山房 / gad ・ line+ studio © Arch-Exist 松阳原舍 ・ 揽树山房 / gad ・ line+ studio 贵州万峰谷垂直森林 © Stefano Boeri Architetti 贵州万峰谷垂直森林 上饶市城市规划展览馆、博物馆和档案馆 / 张雷联合建筑事务所 由近到远依次博物馆、城市规划展示馆、城建档案馆 © 侯博文 上饶市城市规划展览馆、博物馆和档案馆 / 张雷联合建筑事务所" width="97%" border="0" align="center"/>在这里,建筑的外墙不仅仅是一层表皮,而是令天空与土地相聚,共同演绎的干净画布。 收藏这幅画! © 苏圣亮 © 苏圣亮 查看完整图库 © 苏圣亮 © 苏圣亮 © 苏圣亮 © 苏圣亮 © 苏圣亮 © 苏圣亮 © 苏圣亮 © 苏圣亮 © 苏圣亮 © 苏圣亮 © 苏圣亮 © 苏圣亮 © 苏圣亮 © 苏圣亮 © 苏圣亮 © 苏圣亮 © 苏圣亮 © 苏圣亮 © 苏圣亮 © 苏圣亮 © 苏圣亮 © 苏圣亮 © 苏圣亮 © 苏圣亮 © 苏圣亮 © 苏圣亮 © 苏圣亮 © 苏圣亮 草图 砖构造研究 分析图 剖面分析图 场地平面图 总平面图 一层平面图 二层平面图 七层平面图 八层平面图 剖面图 草图 草图 草图 砖构造研究 地址 点击以打开地图 地址仅作为参考。可显示城市/国家,但不提供精确地址。 收藏项目 douban share weibo share qq share wechat share 关于这家事务所 Studio Link-Arc Office 关注 See more: 项目 项目建成 选定的项目 文化建筑 深圳 中国 引用: "华润集团档案馆 / Studio Link-Arc" [China Resources Archives Library / Studio Link-Arc] 21 5月 2019. ArchDaily. Accesed 22 5月 2019.












































































































