

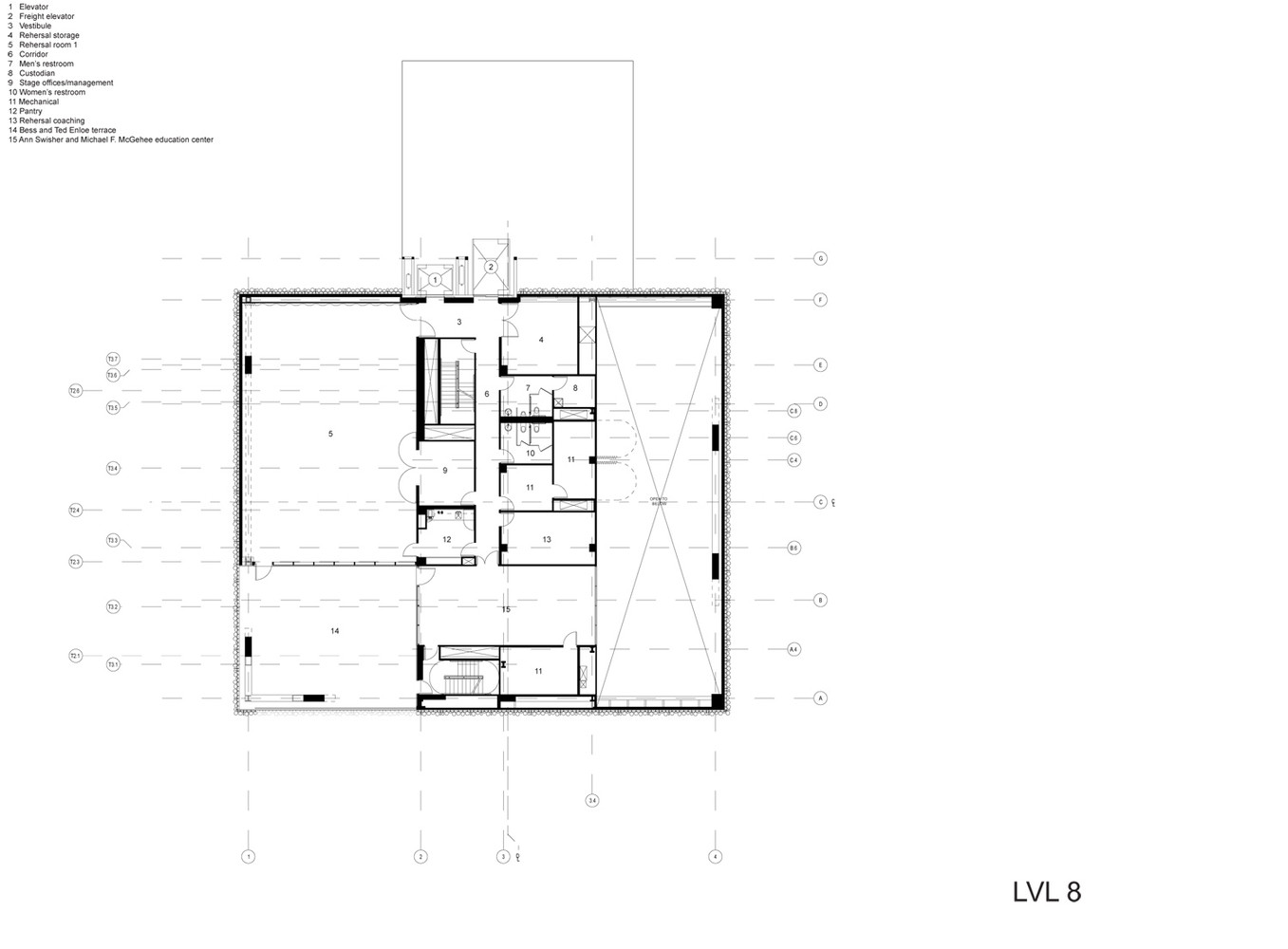
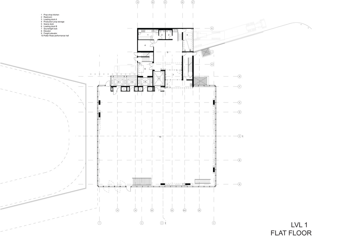
达拉斯剧院中心的改造设计面临几大挑战。首先,新剧院需要与其先前的剧院同样具有灵活布置舞台的特性。其次,新的场地不但要形式灵活,也要保证最低的运营成本。

Dee + Charles Wyly 剧院颠覆了传统的剧院设计,克服了这些挑战。Wyly 剧院没有将前台和后台围绕着观众席和舞台塔布置,而是将这些设施在建筑中上下叠加。这一策略将建筑转变为一台大型的“剧院机器”。只要按下按钮,剧院就可以转换成各种配置的舞台,包括镜框式、伸出式和平面式舞台,让导演和舞台布景师们能够自由布置舞台与观众席,以满足他们的艺术需求。此外,为了鼓励改动布置,表演空间特意采用了廉价的材料,舞台与观众席空间的表面能够以较低的成本进行切割、钻孔、上色、焊接、锯切、打钉、粘贴、缝合等改动。

将 Wyly 剧院的辅助设施竖向布置也解放了整个表演空间的周围,让幻想与现实可以在任何时间或地点相结合。由隔音玻璃幕墙包围的观众席安装了可开启或关闭的隐蔽式遮光帘,导演可根据需求将达拉斯的天际线与街景融入表演。立面的面板也可开启,能让观众或表演者绕过楼下的门厅,直接从室外进入观众席或舞台。

Wyly 剧院通过投资基础设施,让表演空间便于改造布置,不受周边空间约束,赋予艺术总监充分的自由来决定整个剧场的观演体验,从观众入场到表演空间布置,再到观众离场。Wyly 剧院可以连续多天在镜框式舞台上演莎士比亚的戏剧,或在平面式舞台上以达拉斯的城市景观为背景表演贝克特的剧目。Dee + Charles Wyly 剧院从达拉斯剧院中心原来的艺术区剧院吸取经验并提升改进,这将使达拉斯成为全美国乃至全世界布置最灵活的剧院的所在地。












TAG标签关键词:OMA REX 剧院 歌剧院 电影院 美术馆 展馆 建筑















































































































