
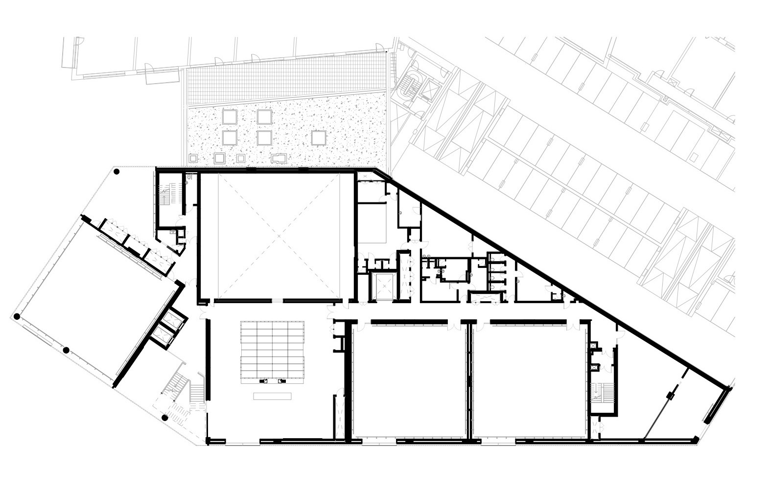
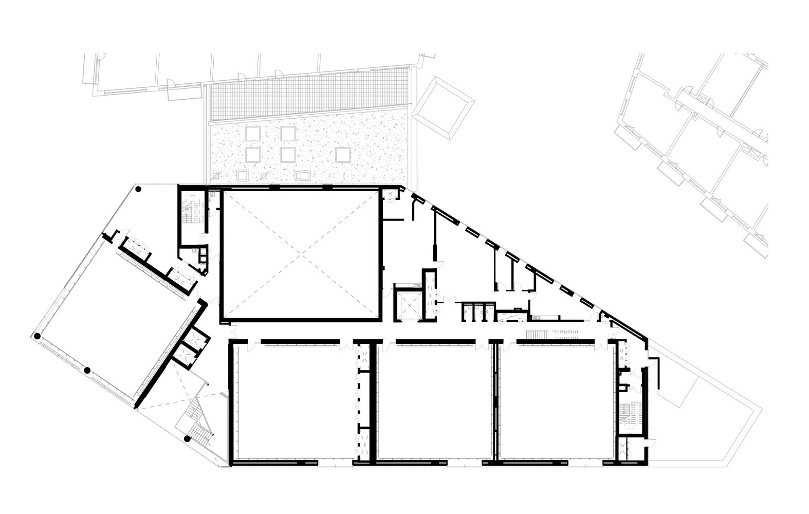
建筑师将这栋新建的舞蹈中心包裹于一层半透明的白色表皮内,为国家芭蕾舞团的舞者提供了世界级的工作室、服装、医疗和生产基础设施。具体来说,建筑师设计了七个全尺寸的舞蹈排练房和多个专用的学习交流空间。同时,建筑师还将英国国家芭蕾舞学院设置在了大楼的顶部两层,并为英国国家芭蕾舞团的200多名员工提供了必需的办公空间。

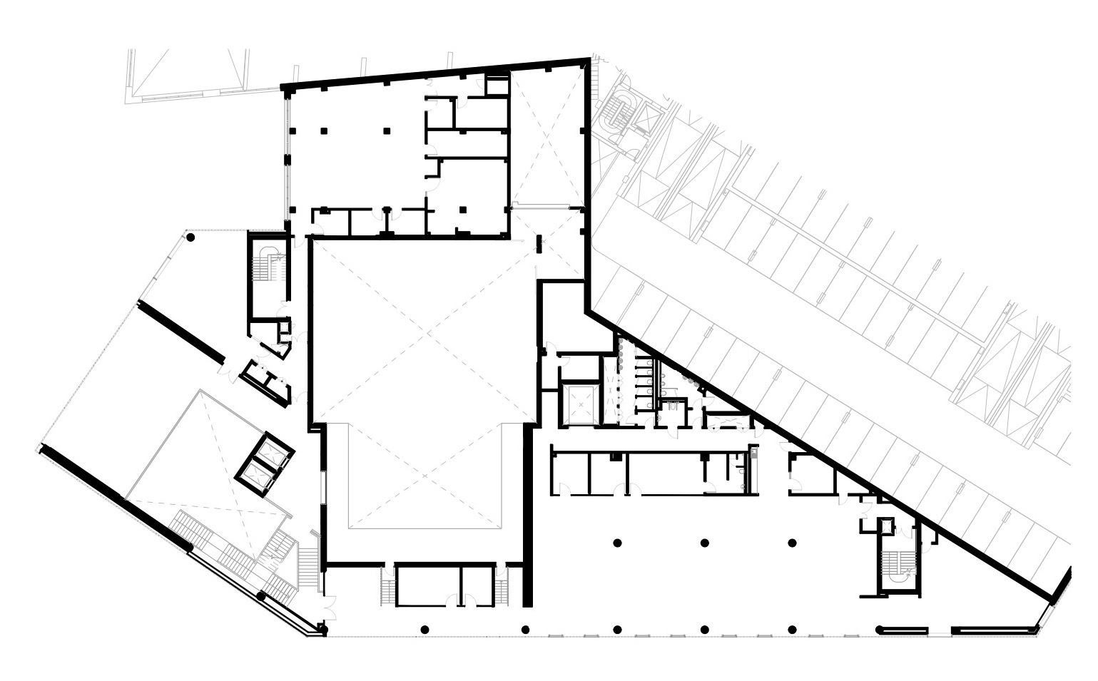
其中,主要且独特的编舞工作室是一个10米x16米的舞台空间,并配备了25米之高的飞塔。其他的各类设施则被建筑师分散地安排于上部的三层空间内。此外,建筑师还在中心大楼的屋顶设计了一个屋顶花园。全尺寸的舞蹈排练房是一个15米X15米X15米的透明方盒,建筑师旨在邀请外部的行人驻足观赏,以消解建筑内外空间的距离感。
该项目最初的委托可以追溯到2014年,当时业主希望建筑师能设计一个满足芭蕾舞排练和创作的灵感空间,以在伦敦地区为芭蕾舞这一艺术形式注入全新的灵魂与活力。该项目的一大挑战在于如何在狭长的场地中设计各类灵活且尖端前沿的基础设施,但同时还要能满足有限的财政预算。因此,建筑师有选择地采用了优雅和拙朴的设计手法,将混凝土天花和半透明的玻璃幕墙进行了适当的裸露。凭借有限的材料选择和标准建造方式的运用,建筑师最终将中心大楼的造价控制在了预算之内。

中心大楼的一层被建筑师设计成一个开放的交流空间,旨在为空间的灵魂提供栖息之所。建筑师试图通过公共咖啡厅和展览空间的设置来促进学校与公司间的交流互动。同时,建筑师在设计过程中还考虑到了后台的专业人员,为包括技术人员、建造商和服装设计师在内的各种角色提供了工作交流的场所。这种在一栋大楼内实现服道化设计生产的空间模式,在芭蕾舞演艺圈内实属首例。

而半透明玻璃幕墙的设计,则使得该演艺中心与周边的彩色大楼形成了鲜明的对比,并使得外部的行人可以一眼看到内部的彩排场景。建筑师选用了一种名为Lint的半透明白色玻璃,在提供私密性需求的同时,使得空间内部的各种动势可被外部所察觉。

该大楼还满足了英国国家芭蕾舞团与外部社区合作项目的开展,包括各个地区学校和其他利益相关者。同时,建筑师还在中心大楼的内部设计了部分可对外出租的工作室空间,旨在保证该中心日常运营所需的资金储备。

该芭蕾舞团中心大楼的设计,贯彻了舞团创始人Alicia Markova和Anton Dolin最初的创立愿景,即将高质量的古典芭蕾舞介绍给更多更广的受众群体。该项目在设计建造过程中,得到了市长批复的伦敦Good Growth资金和Arts Council England的国家项目资金的支持,以更好地推动英国国家芭蕾舞团项目的运营和推广,并在当地提供更多的就业机会,来架起一座社区与机构间沟通交流的桥梁。












TAG标签关键词:Glenn Howells 歌剧院 芭蕾舞 剧院 建筑 芭蕾舞 舞蹈 跳舞






















































































































































