

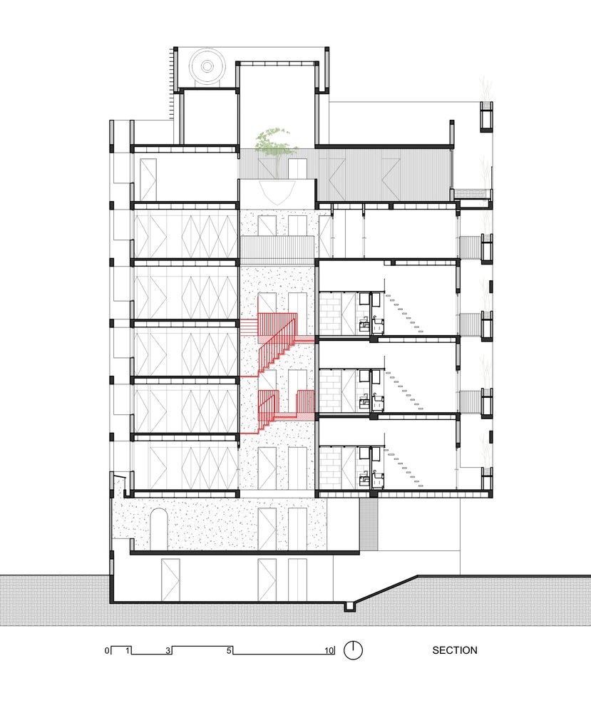
在确保每个房间的面积和功能的前提下,有条理地、整洁地分配和利用每个空间。由于当地对层高和楼层数的限制,我们在建筑的前部使用阁楼来增加房间空间,在建筑的后部采用多种层高的设计来增加层数。

地下室用于停车和放置设备。首层是门厅和公共设施。第二层到第五层是出租房间:建筑前部空间是厕所,厨房,客厅和工作室与卧室一体的小型房间;后部空间是普通的出租房,一个可以灵活打开关闭的帘子分隔了客厅和卧室,厨房和卫生间也布置得很漂亮整洁

建筑前部空间和后部空间拥有不同种类的房型也是十分经济的。顶层6层是一整套豪华公寓,有客厅,厨房,两间卧室和两间厕所。客厅和厨房相连,提供了更宽敞的空间,住户能够看到前面和天井的景色。我们使用衣柜和书柜来优化空间

所有的房间都通过建筑中心的楼梯和电梯相连接,太阳光和风可以通过天井进入建筑。天井中有铁楼梯连接小型房间和普通出租房,这个楼梯的尽头是顶层公寓的悬挂的绿色盆栽。建筑的前部还有配备了木百叶窗的阳台,在保温,通风的同时,也提供了休闲的绿色空间

我们在建筑物前立面的设计了一个种树的大空间,保护住户的室外空间的隐私。顶层公寓使用了混凝土天花板和木墙。门厅的设计采用了木材和水磨石台阶,使整个空间更加和谐舒适。其他室内材料使用了天然木材和白色或橡木贴面的HDF来让室内更加温暖和明亮。从建筑的前部和后部空间我们都能够享受到城市的景色





















TAG标签关键词:H2 住宅楼 住宅 高楼 大厦 建筑














































































































