
2364 * 1330
2364 * 1576
2364 * 3940
2364 * 3546
2364 * 1576
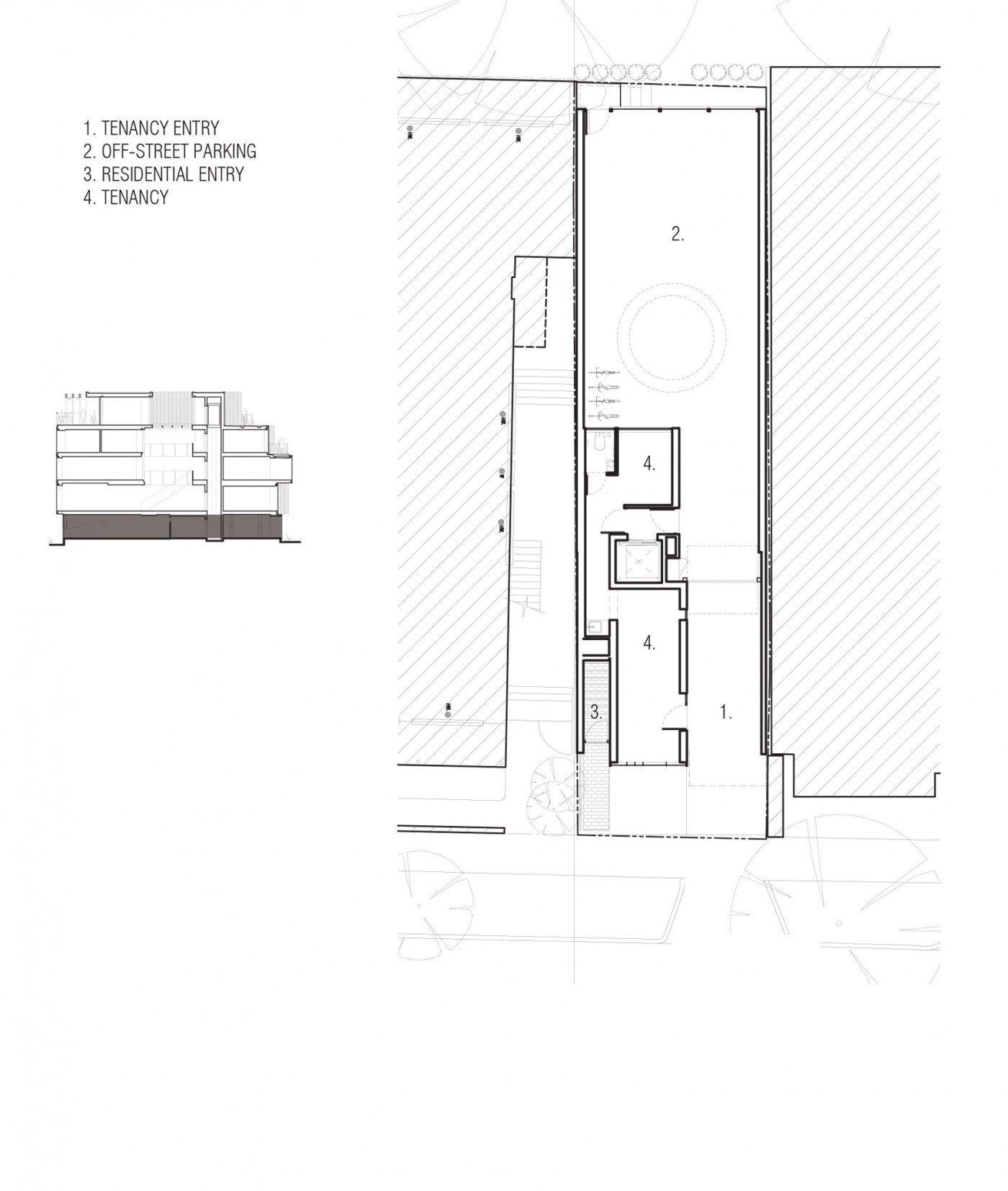
南立面上的盒子的阶梯式布置响应了邻居的视野和照明要求,保留了建筑物旁边的现有红砖墙,形成了一条细长的小巷,通往一楼住宅区的楼梯。
2364 * 3546
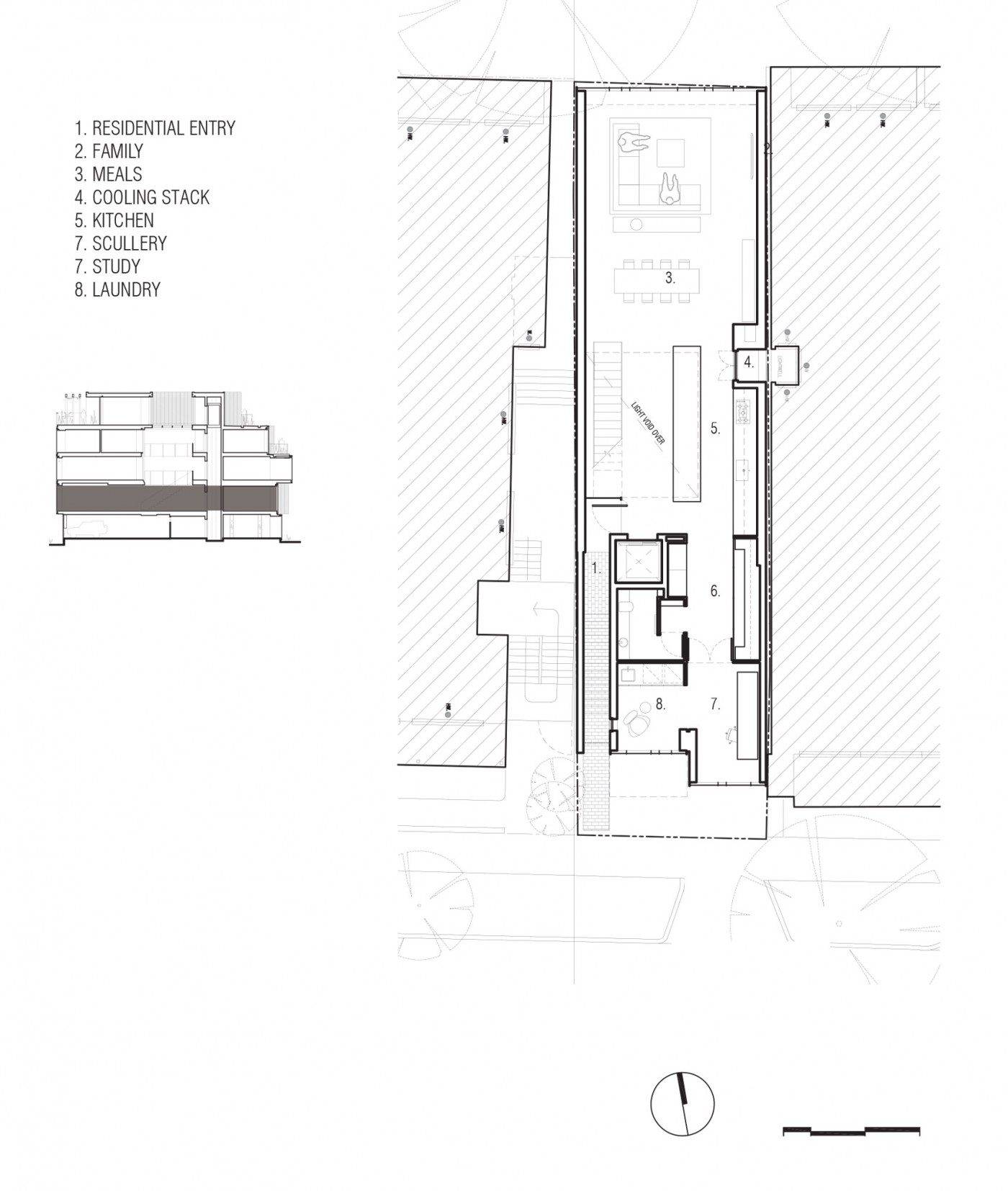
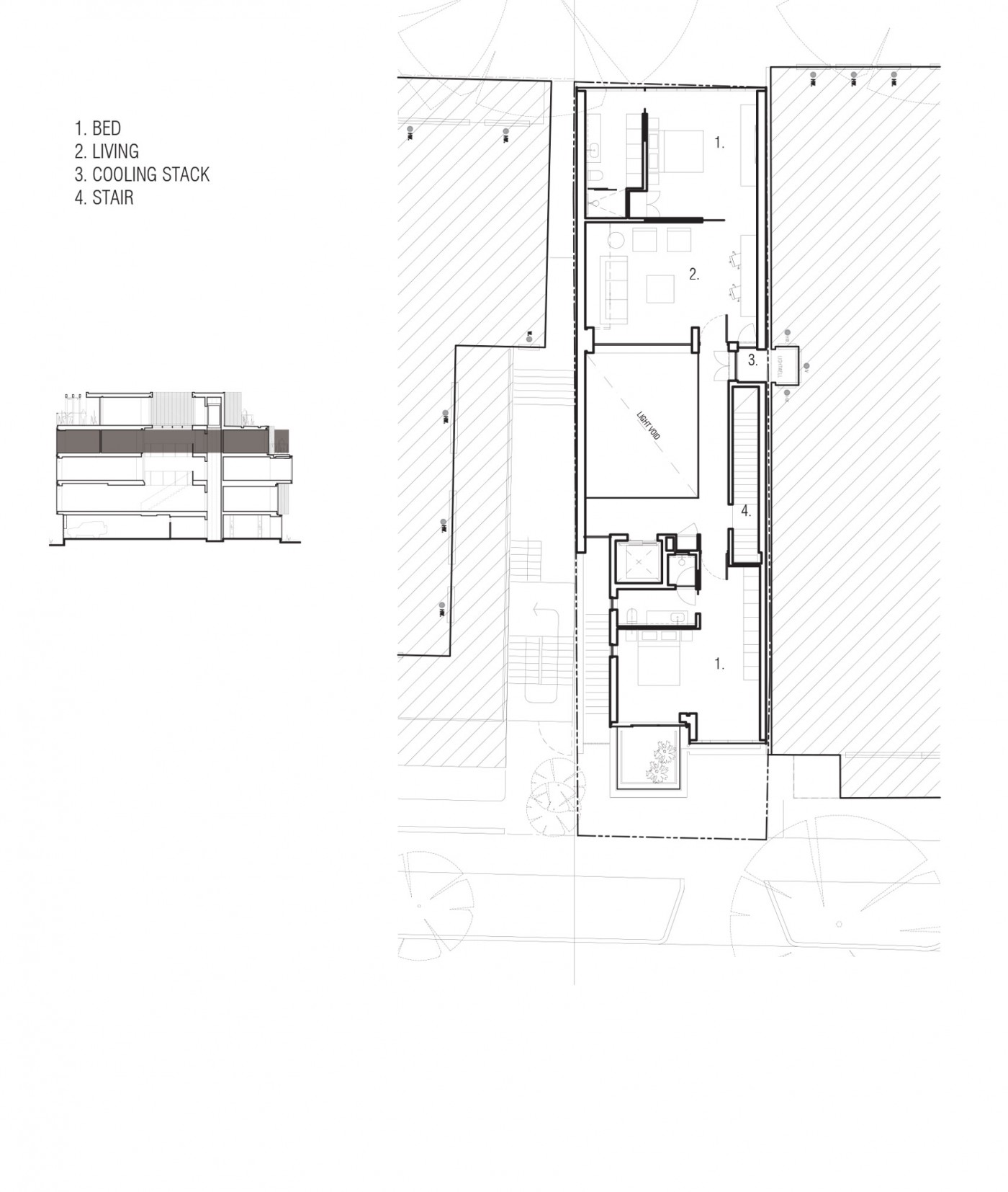
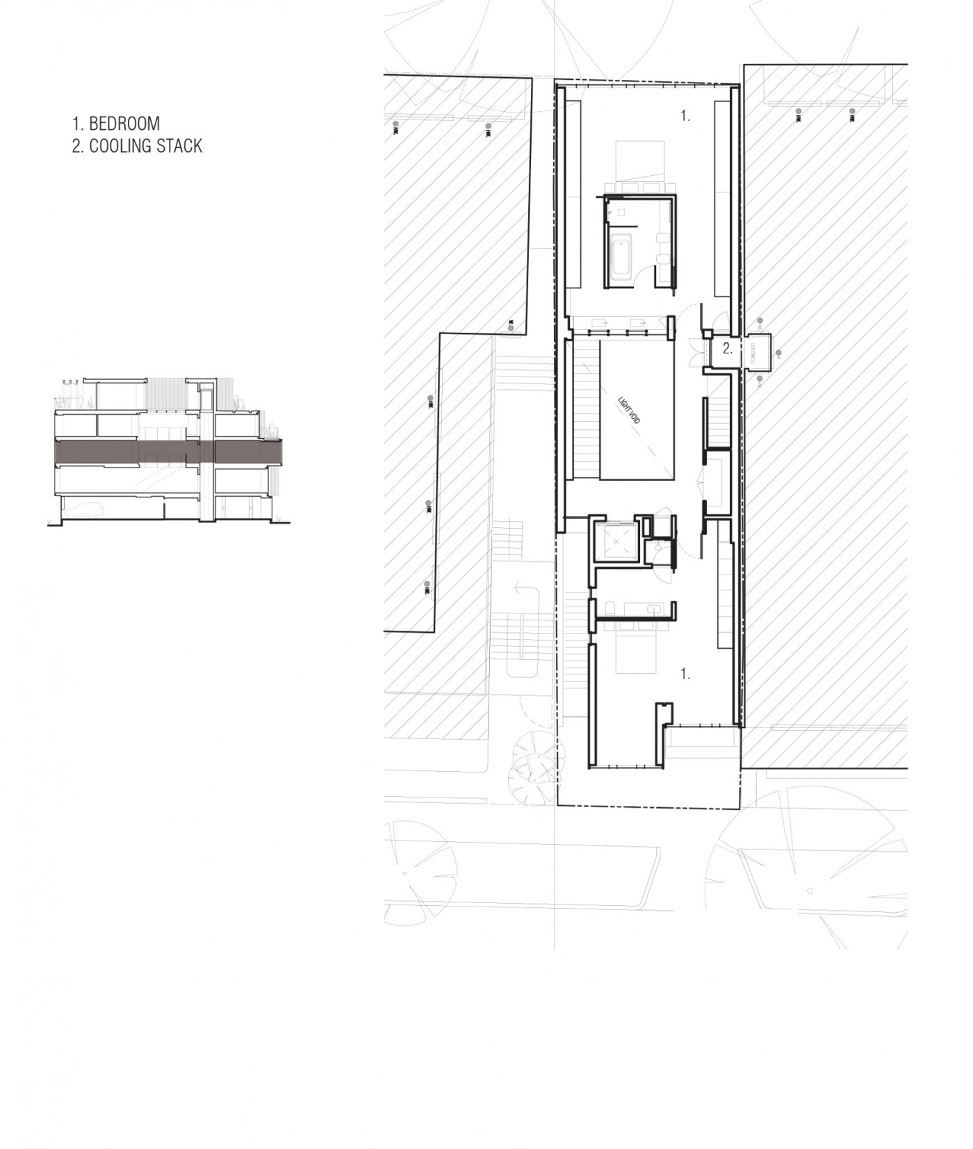
第一层至第三层有三个明确定义的区域。客厅和餐厅,私人卧室空间以及最后的“休闲”空间等公共空间
2364 * 3546
二楼和三楼的屋顶露台提供户外休闲场所,享有城市美景。
2364 * 3546
2364 * 3546
2364 * 3546
2364 * 3546
2364 * 1576
2364 * 3546
1704 * 2013
1704 * 2013
1704 * 2013
1704 * 2013
1704 * 2013
1704 * 2013
TAG标签关键词:Matt Gibson 住宅 家 别墅 建筑













































































