

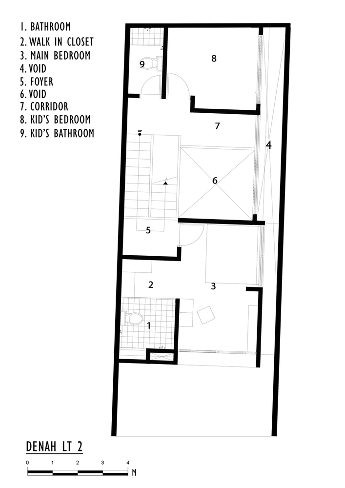
看起来像二层楼的三层建筑也均分了层高。分离的概念让每一层都算作半层,从第一个夹层到第五个夹层。每层的层高会根据客户的预算调整。在这个阶段,客户想先建三层,剩余两层之后再建。但是建筑师还是建造了完整的外立面,让房子看起来是已经完工的。一个大的挑空设计在连接各层的同时,也成为了自然光和空气的主要来源。挑空设计中包含了房屋主要通道的楼梯。通过挑空,住户可以在不同楼层直接沟通。

作为阳光和空气引入口的顶层百叶窗和作为另一个引入口的侧边走廊为房子提供了对流通风。厨房和第一层的餐厅放在了一起。


这个宽6米的房子在密集的雅加达Tebet区。有限的预算和房间数量的要求让建筑师设计出分离-增长的概念。所谓分离-增长指得就是未来某一天,客户可以按照那时的预算再扩大或者新建房屋结构。这个概念被用于处理房屋的正面。这个房子应当有三层楼高,但是应用了分离概念之后,外立面看起来就是二层楼高。这也让这个房子和周边房屋高度一致。



从正面看,建筑师让房子的上一半超出了2.5m,所以这部分可以遮住车位,并且为客人提供了正面的户外区域。在二层立面,有一个水平的灯作为主浴室下方的玻璃和空气流通处。这也成为外立面的一点有趣之处。

在有限的空间里,餐桌被设计成能在有需求的时候打开的折叠型餐桌。设计师也在二层楼下面设计了底层玻璃,所以在一楼的人也能看到房子外面是不是有人。这个玻璃在让里面的人看到外面的同时也作为了另一个自然光源。




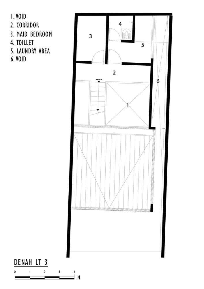
除了引入自然光和空气的挑空设计,因为顶层挑空已经有百叶窗,所以建筑师沿着房子由头到尾设计了一个1米宽的走廊作为光线和空气的另一个引入方式。这个通道也被用于放置水泵,自行车,室外设施,同时也是杂务工的另一个进门方式。因为地面层高低于街面,建筑师同时也放置了很多有机气孔来吸水以防洪水。












TAG标签关键词:Delution architect 住宅 家 别墅 建筑











































































