

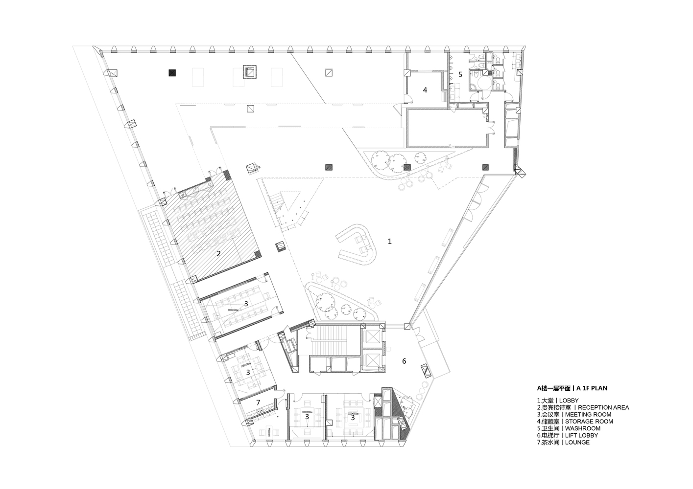
宝业中心首层的设计是对外开放与交流的展厅与会议室。“宝业的建筑世界观”开启展厅的入口,接待与展示的界面自然过渡衔接,展厅空间以科技与人文的结合、集成工业与传统的形式彰显宝业集团的形象。

在中庭尽端,是连接一层到四层的极具雕塑感的木楼梯。木楼梯作为交通流线的灵魂,将所有空间连接激活,成为了独立于办公空间之外,人们乐于游弋其中的独特空间。使用者从一楼走到四楼的过程中,会途经每一层办公区,从而人为的创造出许多交流与沟通的机会。通过彼此间信息快速及时的交换,员工能够激发出无穷的想象力与创造力。

入口大堂是顶部有采光的四层通高空间,连着一部分会议室和展厅。设计以营造一个充满阳光与生命力的室内庭院为概念,围绕中庭空间设置了5条“巷道”,将一个大的平面空间分为6个由会议室、展厅和绿植围合成的空间小单元,每个巷道的尽端对着建筑的GRC窗户单元,将户外景观映入到室内空间。

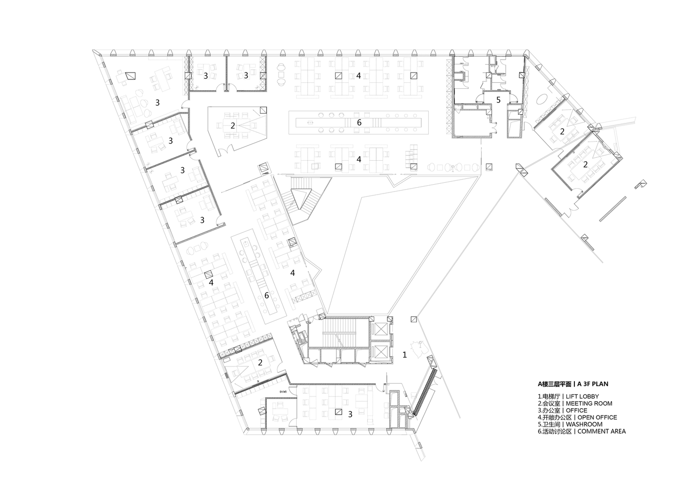
在开敞办公区域,设计将空间所必需的设备管线、桥架等隐藏在居中的吊顶内,吊顶下空间相对较低的位置设置为茶歇和交流区。




会议区域的界面,通电玻璃成为隔断的最佳选择。该材料通电时呈透明状态,断电的状态下呈现灰白不透明的磨砂效果。这样既保证了采光及空间内视觉的统一性,又给使用者提供了极大的便利。

办公层会议区的公共走道的墙面以两种不同的颜色木饰面组合成抽象的上海城市天际线,高低错落。这种两种材料拼接的方式同样用于办公层大台阶的休息空间,大台阶的地面是木地板与水泥自流平的错位拼接,给员工塑造了一个集阅读、休憩与活动的场地。


二层至四层是核心办公区域,其设计以建造和工业感为线索,在空间设计中以上海这座大都市城市天际线为设计元素,同时工业化的设计让办公空间体现了建造行业龙头企业的特性。

为了体现建筑从无到有的建造过程,吊顶的材料使用了黑色玻璃、内部打光的做法,将吊顶内的管线布局图投射到黑色玻璃上形成透光面,这样吊顶的一条条透光线也是吊顶内部的管线布局

开敞办公区两侧靠近窗户的区域保留了建筑的混凝土裸顶,使得空间适合作为对高度有一定需求的开敞办公,合理利用了原有建筑布局。在不破坏原有建筑外部意向的同时,室内空间设计很好地表现了主题。南侧的开敞办公区也是采用一半吊顶一半裸顶的方法,吊顶面的材料使用更具有实验性的透光混凝土,把工业材料和光结合在一起,形成独特的空间效果。

设计的挑战之处在于需要同时处理几对看似对立的矛盾: 1、总部公共空间的展示性与标志性; 2、办公空间的高效使用与人文关怀; 3、空间意向的文化传承与现代创新;4、建筑空间的还原与室内氛围的塑造。考虑到这些挑战,设计延续了建筑设计的特点,将自然、技术、建造和人文关怀作为四个主旨,将不同功能区按照剖面布局设置这四个氛围主题,分别设计了入口大堂:还原阳光与生命力的室内庭院;首层:还原技术魅力的信息交流枢纽;办公层:还原建造与工业美感的都市开敞办公;地下一层:还原人文关怀的员工之家。


地下一层打造为富有人文关怀的员工之家。这里集合了餐饮、休息、娱乐、文化、健身等功能,围绕着两个采光庭院展开,满足员工8小时办公时间的基础需求和8小时时间之外的生活需求。多功能咖啡馆是地下空间重点区域,作为员工休息放松的场所,这里定位为年轻包容、灵活互动,在休闲咖啡外还集合沙龙、课堂、派对为一体的集合咖啡馆

多功能厅基于建筑的大空间,一面墙设置为白色烤漆玻璃和投影面,另外三个面和中央通过可旋转和平移的隔断设置,可以根据使用行为划分出不同的空间状态:隔断全都打开的时候是开敞的无柱大空间,方便全体员工的活动和会议;隔断全都关闭的时候空间被分为四个可以独立使用的小空间,进行培训、讨论等活动。隔断之间的软橡胶垫细节设计可以增强空间分开之后的隔音效果,而多功能厅的椅子是可移动和折叠式,便于不同使用时候的转换。

餐厅的设计将企业发祥地的吴越文化融入设计语言,材料上使用自然质感、还原员工在工作中经常接触的材料,体现企业建造文化。通过抽取绍兴民居屋顶天际线,以两种不同的颜色木饰面,拼贴出一幅抽象的江南水乡天际线贯穿墙面,行径其中可以感受到抽象画面背后的文化韵味。

为了保证空间的高度和使用的灵活性,就餐部分采用裸顶的做法,在一侧休息区设置吊顶解决管线等问题,并因此将空间分成内外两部分:外圈接近户外,用青砖铺地创造一种户外延伸至室内的感受;内圈通过三角形定制吊灯限定整个就餐区域。


咖啡馆中间区域是吧台和卡座区,颇有工业感的成像混凝土包裹了吧台备餐空间,吧台内部为木饰面形成空间嵌套感;卡座区域用温暖的木饰面限定空间,沿窗设置休闲区并配以可移动家具,增加可组合搭配的效果。咖啡馆最里侧是“百变心情”区域,这是个非常灵活的供员工使用的空间,靠墙一侧设置可移动屏幕,对面一侧是台阶作为与涂鸦墙,靠边一侧是员工睡眠舱,这是一个给员工活动、讨论、午休的充满温馨感的专属区域。


整个咖啡馆分成三个部分。最靠外侧是“百变咖啡”,一个大空间通过隔板分成2个可开可合的区域,平时隔板打开,是休闲咖啡;隔板合上,可以上课、讨论。整个顶面和管线都暴露出来喷成深灰色,而精心设计的灯管、走线和和吊灯喷成蓝色,设计在其他管线的下方,仿佛悬浮在顶面。侧面的墙面用不锈钢框架搭成书架与展示,并与景观绿植结合。

中庭通高空间三个界面使用透明玻璃,每层间隔着悬挑三角形露台,员工可以在工作之余小步走到露台上休憩。结合位于中庭两侧的绿色树木和花草,阳光从顶部三角形网格采光顶照下来,创造了中庭里仿佛置身于充满活力的室外庭院的体验。这些原本在室外的元素被引入室内,模糊了室内外的边界,室内设计也结合在了整体的建筑之美中。





TAG标签关键词:零壹城市 总部大楼 总部 大楼 办公楼 办公室 建筑

































































































