经过对自身品牌独特性的重新审视,凯悦发现公司现有的工作场所会对员工跨学科的思考与跨职能的合作产生抑制作用,而这些恰恰是快节奏的酒店业竞争所必需的。在将公司搬到北河滨广场150号这座新地标后,这家芝加哥的酒店巨头总部的员工终于在同一屋檐下。
为了能让总部员工与全球近700家酒店的员工产生共鸣,设计团队将凯悦在酒店用户体验设计时使用的概念,即“七个客户接触点”(Seven guest touchpoints),应用到了总部的工作空间设计中
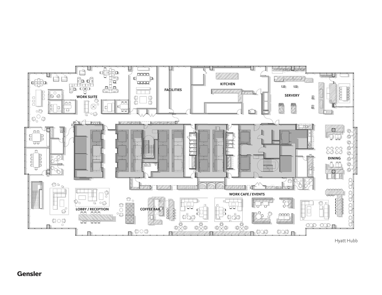
这种客户体验可被分为入住与送别、食品与酒水、客房、活动、会议、日常服务以及其他。如今,这七种体验将融入到凯悦总部职员们的日常工作中。将“入住与送别体验”作为设计重点,设计团队创造了“8枢纽”这个全新的概念:在包含一个多功能的前台,一个可进行合作办公、会议、活动、食物与饮品体验的空间同时,“8枢纽”还为无工位办公的员工们提供了额外空间进行工作、会议与交流。
同样,设计团队也会以一种全新的方式,保证公司的每一个员工拥有一个属于自己的工位。在摒弃一刀切设计的基础上,新的工位将满足每个人的需求与工作方式。个性化的“工作套房”空间,将按照一种全新的模式策略,把包含私密性、定制化与拥有感的私人办公空间,与包含灵活性、情谊感与侧面意识的开放办公空间相结合起来。
与此同时,无数适合一对一交流的协作空间与个人角落与相应地设施结合,构建了出了相互连接并具有创造性的环境。而与巨大砖制楼梯相连接的“工作套房”空间,在展示芝加哥城市风景的同时,其经过本地化的社交与合作属性也将为员工们提供社区级别的互动体验。
源自普利兹克奖与芝加哥建筑遗产的交织灵感,融入从酒店客户体验角度进行的办公空间设计,漂浮在芝加哥河两个分支交汇点上的凯悦新总部 ,已经成为城市新的地标。将楼上的工作区域与公司核心文化相连接,这个装满精美食品与饮料、热闹又充满活力的社区空间,便是凯悦酒店热情好客的新门面!



TAG标签关键词:Gensler Randy Howder Craig Pierson 办公楼 办公大楼 写字楼 空间设计 建筑































































































