

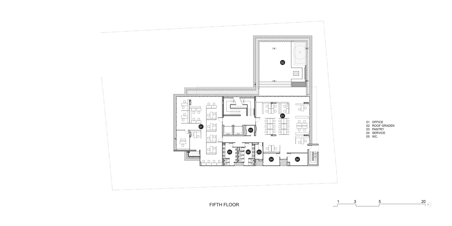
由于场地造成的各种局限,如缩退规定(setback regulation)、高度限制、不规则的边界等,需要提高整个建筑的效率才能满足公司对功能的要求。解决这一问题的办法是,将每个楼层与其他楼层稍微错开,以创造出相互叠加的悬臂和露台。外观简洁的堆叠式平台可以使室外景观中的当地动植物渗透到建筑中的多个区域及功能中。



这些“水稻梯田”将成为所有人共有的灵活的共同区域,鼓励人们意识到该地点的重要性,从而整体培养对公司的归属感和认同感。这些悬垂的屋檐提供了充足的遮荫地,使得空间的使用更多样化,如供人们讨论、分享、或在户外工作。这为整个工作场所营造了自然、直观的氛围,并在空间划分上激发了彼此间的联系和互动;消除室内与室外之间的界限。


我们设想的工作环境不同于典型的办公大楼,不仅希望它能为办公室的每个员工创造出新的工作体验,成为提高他们生活质量的催化剂,同时也想超越建造用地的框架,成为与周围环境一体的绿色空间。





















除了建筑功能之外,我们还设计了符合泰国热带气候的环境策略。其中之一包括立面上的垂直铝条,它已经成为外部和内部之间的介质。在计算日照角及其周期时,每个铝条都进行了校准,足以从各个方向减少紫外线的照射。同时它不仅是一种遮阳设备,还是自然空气流通的通道,也是与邻近住宅间的隐私过滤器。这些垂直的板条通过过滤过强的光线和来自太阳的多余热量,从而大大降低了对空调的依赖性。每一层“水稻梯田”也有助于减少建筑冷却系统的负荷,使得建筑可作为一个完全自然的绝缘体,不直接受热量增加的影响。这就建立了建筑的微气候,有助于中和可能出现的不平衡的气候现象。






















































































































