





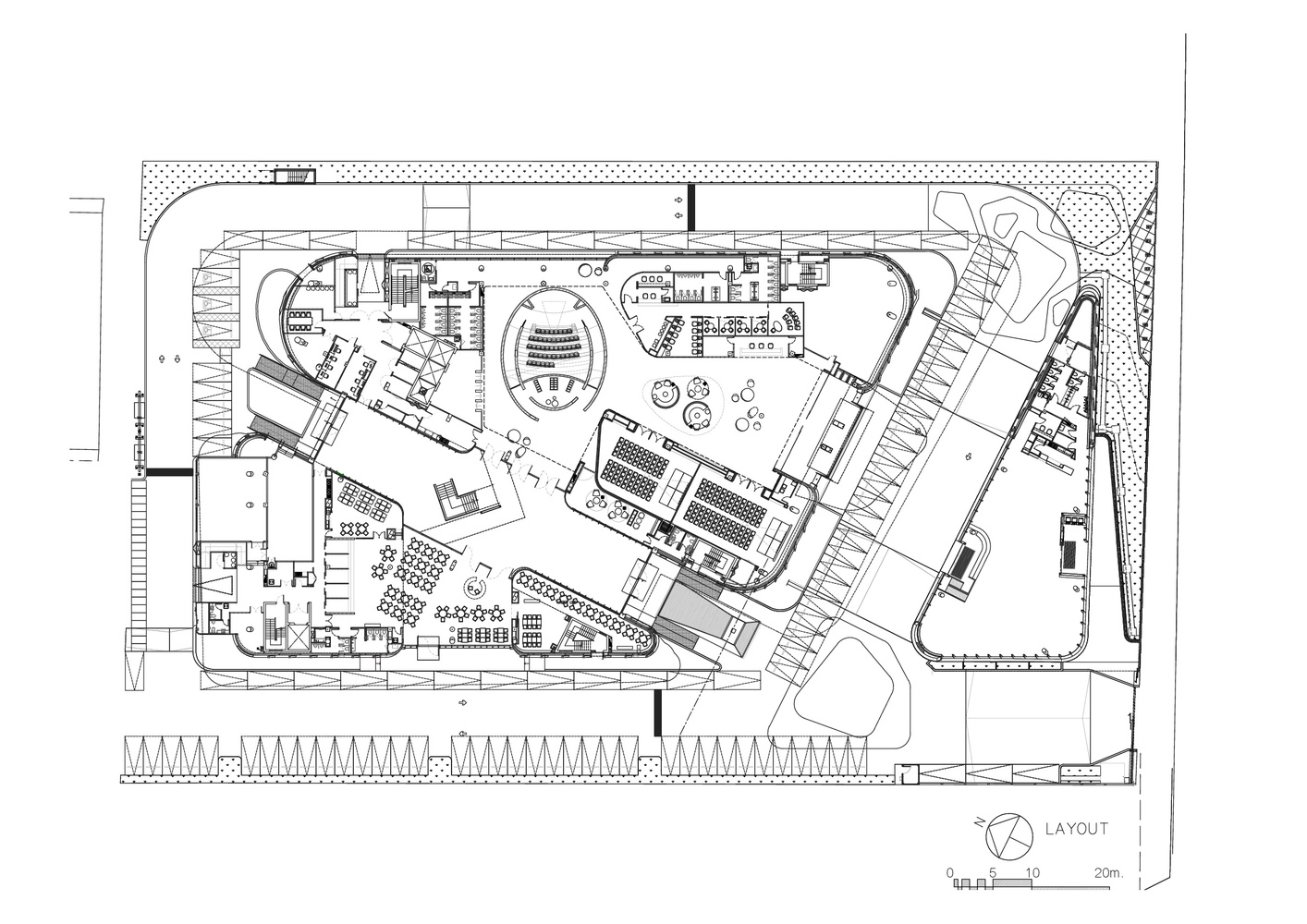
圆锥形的建筑形状有助于调整墙体的角度,减少立面上太阳照射面积的增加,从而减少建筑的总热量。建筑物顶部的曲线造型是根据公司标志而设计的

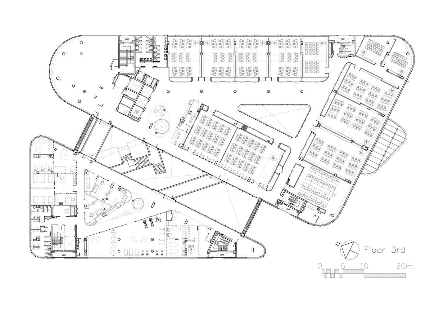
其中一个较大区域是客户服务中心和训练区,中间是一个透明的带天窗的大厅,另一个较小区域是娱乐场所。而建筑中间的中庭既可以作为“Charn”,又能作为泰国传统建筑中的一个平台,将功能设施和人连接在一起,还能够提供一个额外的公共空间。不仅员工可以在工休时在这里休息,也可以在这里与他人互动。



























TAG标签关键词:Plan Architect 写字楼 办公楼 建筑
20 张 一个神奇的房子-可以俯瞰地中海,配备了一个用于保护过多的太阳照射的自动快门。整个项目中,白色为主题,大面积玻璃表面,通过多种材料制作而成。里面有停车区,客人卧室,一间健身房,桑拿浴室和更衣室。 : 949545
16 张 台湾高雄189平方米的公寓-给它的主人一回家就从外地来招待朋友和家人,同时也给他们自己私人空间。手工制作的混凝土涂料和木地板,有一个大的开放的空间,包括客厅,饭厅和厨房,可以让人们在里面聚集 : 949139
23 张 Metalsa SA汽车底盘公司建筑总部楼-几何图形绘制的锯齿型屋顶,是一个家族式的公司,成立于1956年,坐落在墨西哥研究开发科技创新园,一期1750平方米,二期3500平方米, : 928472