

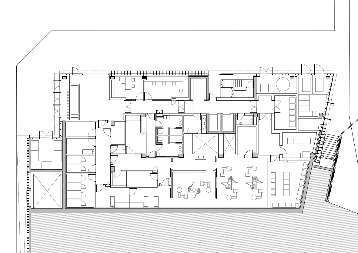
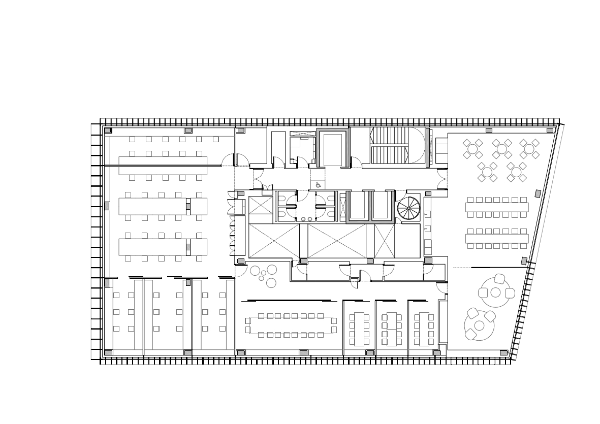
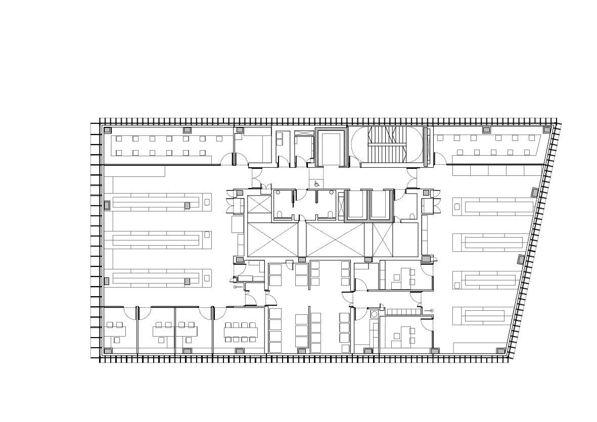
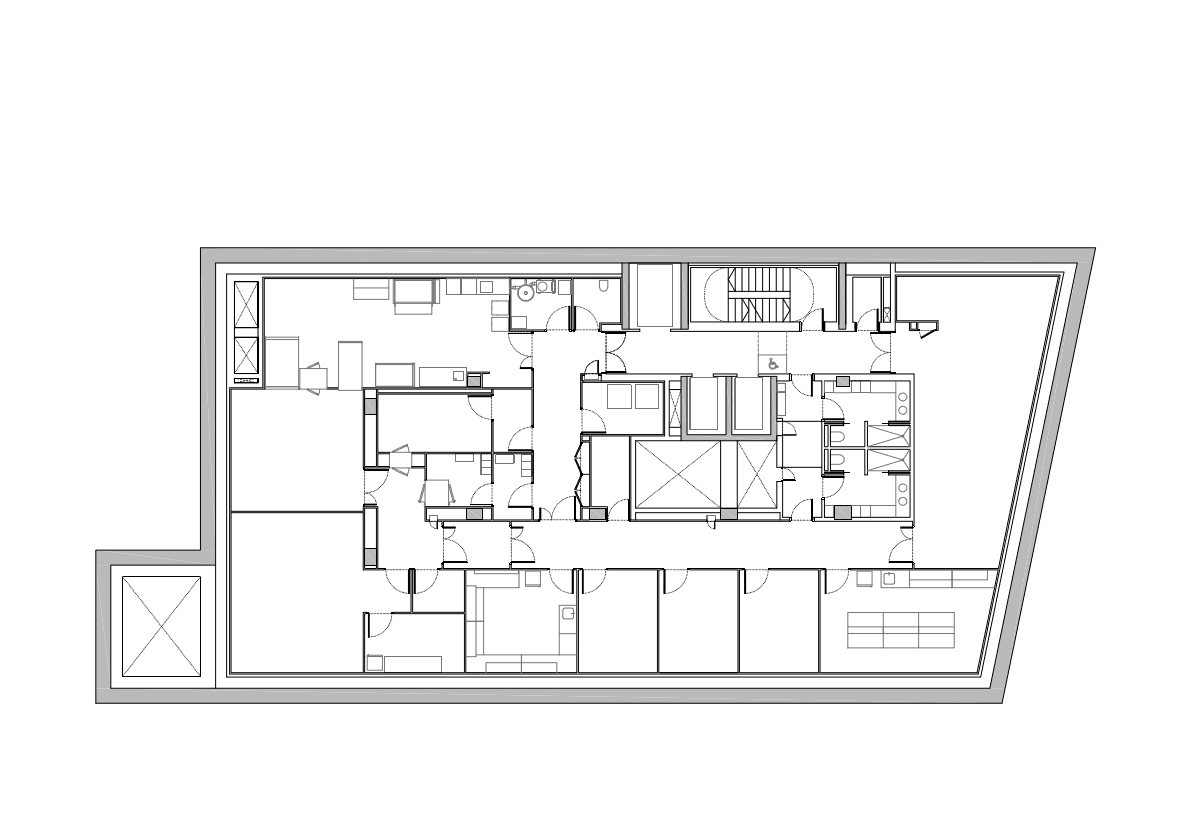
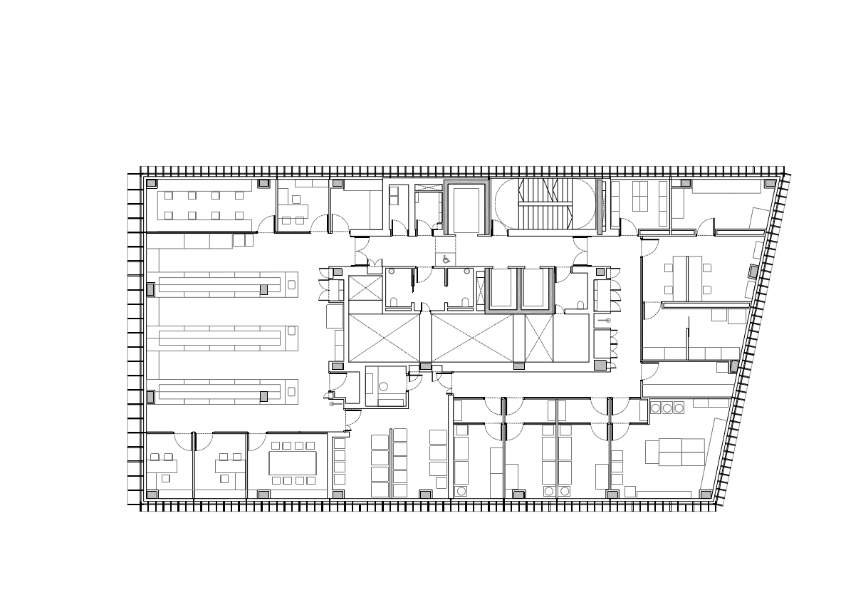
人们通常认为建筑应具有很大的灵活性,以便能够适应未来可能出现的各种变化。作为研究类的实验室建筑,随着新技术与科技的不断涌现,其建构逻辑也在不断发生变化。除了共有的交通核心、竖井和防火区外,整个建筑采用模块化设计手法,可以通过天花板和墙壁轻松进行分隔并进入到建筑的服务空间。该项目的关键之一在于其建筑设施背后的工程设计,其影响和复杂程度远远高于普通的实验室。

在这里,建筑的建造因受到场地的限制产生了如下特征:建筑的整体尺寸已延伸到法规的极限,使得大楼的东面距离旁边一座12层高的公寓楼仅14米之遥。其西面和南面距离建筑群中的其他建筑物只有6米。而北面的幅度更大,作为医院的入口之一,一直向前延伸

从形式上来看,由于整座建筑的体量非常有限,以至于其焦点都集中在幕墙立面形式上,在这种情况下,外立面密集的板条编织可以保护人们免受阳光直射以及来自周围建筑物的视线干扰。并通过玻璃上微妙的白色点状丝网得到加强,即使不用百叶窗,也能让室内获得更多的私密性,只有在一些异形的区域,如前厅与休息区,其延续性才会被打断,让位于通透的大玻璃窗,以证明室内的不同性质的空间。整座建筑的形象通过白色得到加强,与周边环境形成鲜明对比,呈现出一种朴素且无菌的形象。这一策略一直延续到地块的围栏处,目的是将建筑与医院的另一个同样由IDOM事务所设计的实验室大楼结合起来,在医院综合体内建立一个研究终端。

室内的空间设计顺应外立面,以白色和浅色填充着建筑,营造出明亮宜人的工作区域。这些空间与主厅和休息室形成了鲜明对比,后者则通过木材赋予空间更大的代表性和温暖感。有时,色彩在室内发挥着重要作用,在视觉上向用户提供所处空间的相关信息


















TAG标签关键词:IDOM 研究大楼 Gonzalo Carro 研究院 总部大楼 大楼 高楼 办公室 建筑



























































































