

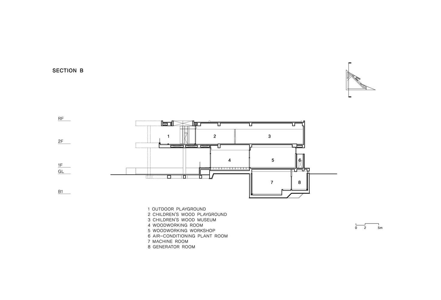
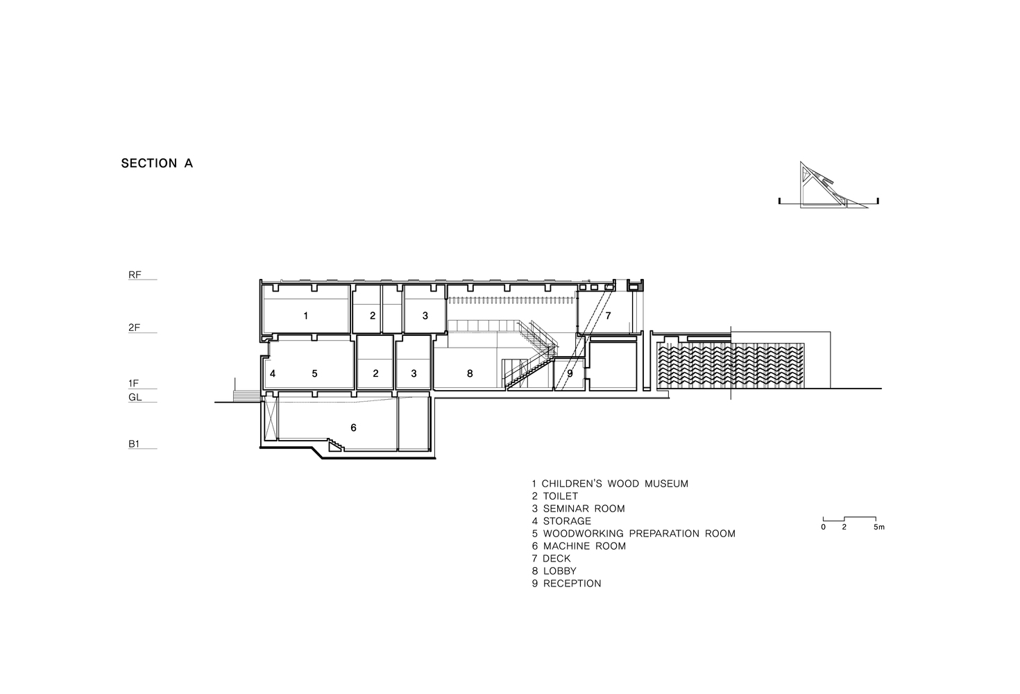
原有的木材博物馆由韩国木材行业协会创办,被认为是传统木材展示的典型模式,例如建筑通常只由木材建造以及仅仅展出木材的资料。因此,原有的木材博物馆很难吸引到人们,且对发展木材文化并无多大帮助

不同于原有的木材博物馆,新建筑聚焦于通过建筑手法让当人们不用通过典型的展览形式时也能感受到木材的质感。这座建筑本身已成为一个展示木材质感的场所,人们可以在此通过看、嗅、听、摸来感受不同的木材,而建筑氛围在时间上和空间上都与外面的树林相一致。

建筑师采用的设计策略是打造出象征可以感受到树木的仁川公园树木园和树林空间的场所。建筑融入了建筑抽象手法,设置了景墙(互动木质仪器)来表现叶间缝隙投下的阳光和风带起的动静。这能让参观者从多个感官体验到不同楼层所采用的木材,反映出树林中每时每刻的变动。

景墙(高4米长30米)依据反映人们的活动和建筑内部的微气候的参数打造出实时场景,创造出人们和建筑之间的互动以及室内外空间的交流。人们可以通过景墙营造出的空间内的实时场景来开展空间体验,即为情景建筑。

这些独具匠心标新立异的空间体验有助于引起人们对木材的全新关注并推动木材文化。它通过触碰我们对木材的意象和自然,给我们的生活带来启示。












































































































