




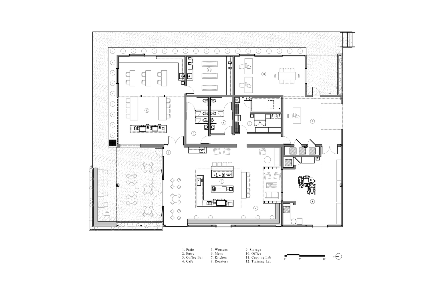
咖啡馆后面有一个三角形的座位壁龛,透过钢窗,可以看到咖啡烘烤器。 丰富的建筑配色与原始建筑的特色形成鲜明对比,营造出真正独特的体验。





沿着北墙和天窗的半透明聚碳酸酯板可以将自然光线引进咖啡店。 中央酒吧的设计可以让顾客体验咖啡馆的任何一面。 通过将酒吧提升和分解成更小的体块,它鼓励客人和咖啡师之间的互动。








21 张 西雅图25000平方英尺的咖啡零售理念大楼-布局提供了与外部融合的内部空间,为物理连接车站与附近社区提供了一种方式。 在里面,除了咖啡馆外,还有供人们闲逛、听音乐或观看现场表演的休闲座位。 : 958275
6 张 树林中的小屋,建筑师设计了被划分滑动夹板分区的一个单层房子,有山墙屋顶,创造各种不同高度的房间天花板-日本Yoshiaki Nagasaka建筑师作品 : 920300