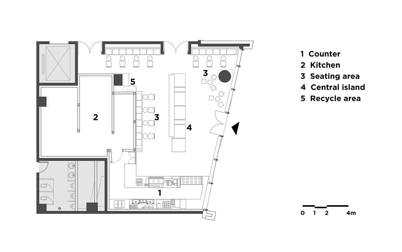
从室外看向室内,虚实交错的体块造型铺满空间,中岛组合成阵列分布,形成了张弛有度的友好姿态。中岛区域的高桌组合装置做为空间的主角,摆列形式仿佛在尽然有序地诉说。实体和线框的台阶造型构成虚实结合的姿态,游走在天花纵横交错的台阶与整体空间体块之间,在空间整体纯白色调的渲染下,成为空间中的视觉焦点。台阶造型的分布,既可陈列品牌周边文化产品,也满足动线的划分,同时达到小憩饮茶的功能需求,人群的交流由此密切展开。

设计师将空间的功能区域如自助台等隐藏于纵横台阶之间,并为品牌方特别设计定制了一款茶具用于向顾客展示其采自不同产地的茶叶。








TAG标签关键词:MOC DESIGN OFFICE 喜茶专卖店 喜茶奶茶店 奶茶店 加盟店 连锁店 店铺 店铺设计 店铺室内装修 店铺室内装潢 店面室内设计 店面装修 店铺装修 咖啡馆 咖啡店 旗舰店 建筑

























































































































































