

中国美术学院(CAA)的巨大藏品和最近从包豪斯学院获得的一大批原始藏品使人们萌生了将永久藏品与其他作品和临时展览一起建造一座博物馆的想法。我们希望建造一个富有特色的,不用太多特殊功能的博物馆。目前这座巨大的校园已经几乎没有什么空地了。只是在东南角,在两条主要道路的交汇处,有一处延伸出来的空地可以使用。这块场地呈三角形,并且必须根据城市和环境规划的限制要求来进行建设。这样也就确定了建筑可能的占地面积和体量大小

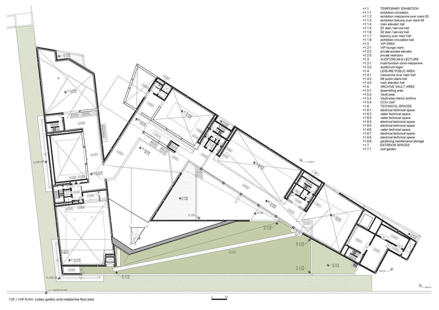
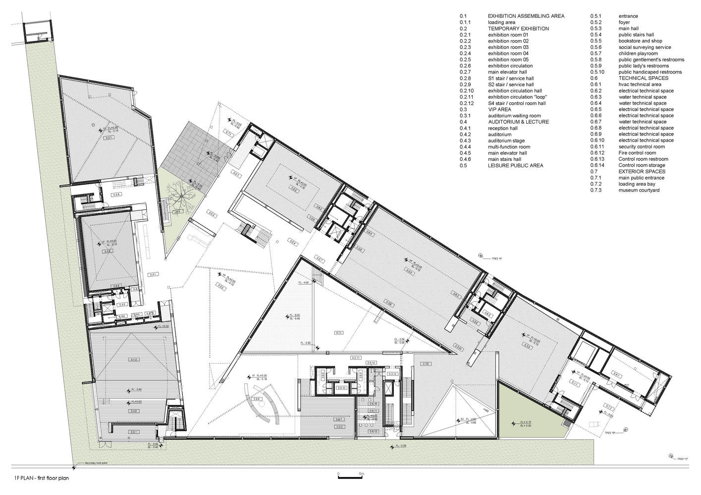
博物馆在室内布局中强调的是游客流动的顺畅性,同时也让空间具有灵活的使用性。作为一所艺术学院,它主要是要能够展示学生和老师用不同的语言和技术开展的各项活动的成果,同时还能够作为一个接待客人的好场所。地下空间计划作为技术,档案和服务区域,还有一个咖啡厅直接连接到建筑中心的三角形庭院。它的上面是一楼,包括入口,公共空间和休息区,另外还有分配空间,临时展厅和礼堂。夹层也可以自由走动,并有一条坡道通往东面体量上方的屋顶花园

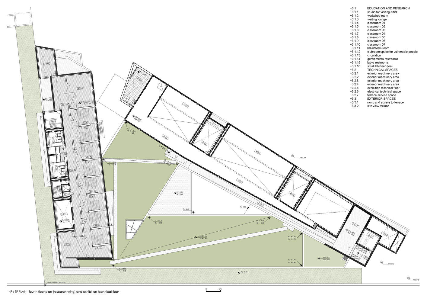
该体量的顶层是包豪斯藏品系列的永久展厅。朝南体量的上层有行政区域、青年艺术家工作室和一些基础设施。建筑的外墙采用了来自印度的红色阿格拉砂岩作为外部覆层。一些平面,尤其是三角形体量的内部,将覆盖白色大理石。框架采用铝/木材制成。一个垂直插入南部边界的白色混凝土体量将作为公众游客的入口处。该项目即将开始施工。
























































TAG标签关键词:阿尔瓦罗・西扎 博物馆 学校 展馆 展厅 美术馆 建筑















































































































