

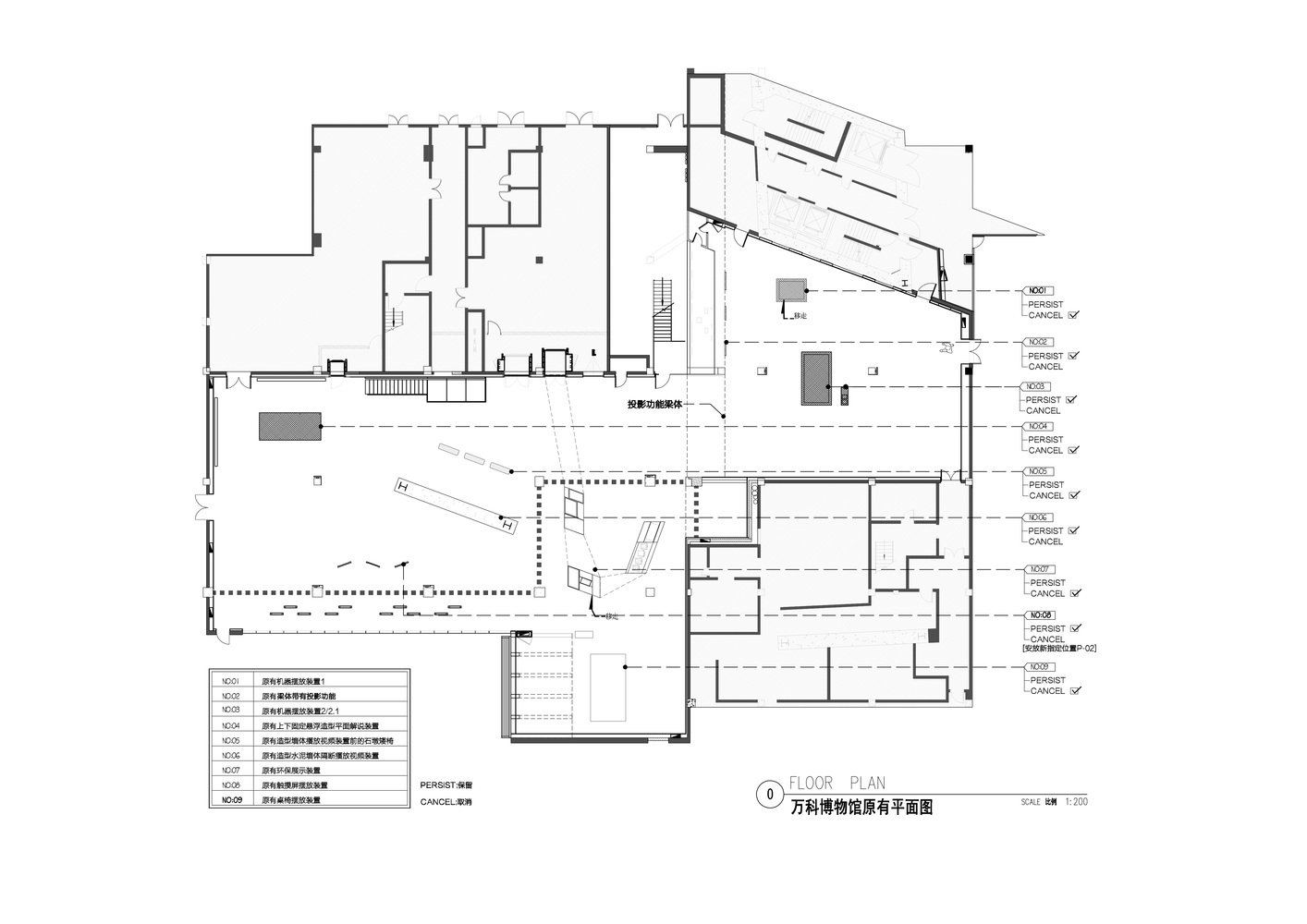
经过两年的开放, 我们工作室参与了第三次的修改设计, 在原有基础上优化展览空间。项目的总策展人为李德庚老师, 他重新梳理了整个馆的定位,参观流线和内容。李老师命名万科博物馆的英文为 Documenta Vanke, 从名字可以理解到这是一个着重文献与故事的展览, 有别与一般企业馆只着重荣誉, 不强调自己员工的贡献。除了总策展人, 我们的改造也有平面设计师侯颖,艺术家周文斗和灯光设计师田欢的参与。




这次万科博物馆的改造, 和其它传统企业馆的设计手法不一样。 第一我们强调以人为核心的展览, 所有的展示是以万科人的故事(住户, 员工等)来串联, 并不只关注万科的荣誉。 另一点就是展示方法的再思考,如何结合事件, 时间和人来组织空间, 我们认为展品不是一个平面的死物, 它们可以更立体和互动的出现在参观者面前, 让我们去认识万科的过去与未来。





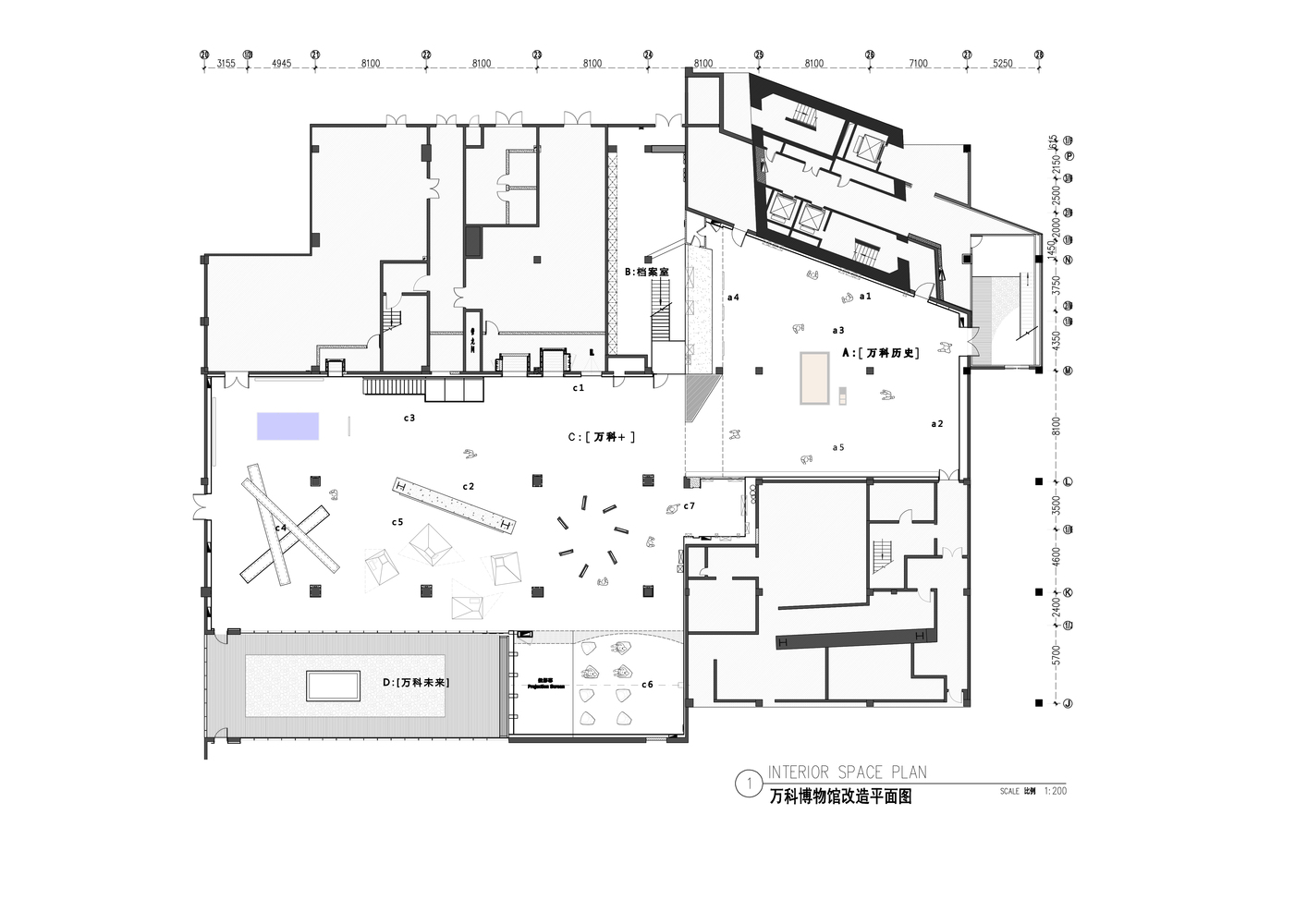
历史馆是一个长卷式的展示, 从万科的前身开始, 到一直演变和发展的重要大事记。 我们以阶段性的年份来划分空间, 平面的文字和立体的展示柜交互配合, 形成一个有趣的阅读体验, 在大事记的展墙上方, 我们设计了一个环状的LED屏, 循环播放代表万科理念的文字。空间中间部分摆放了艺术家周文斗的作品, 他利用许多大小不一的透明塑料球把代表万科历史的物件重新包装起来, 形成一个富有历史感的艺术作品。

万科+是一个多主题的群展, 主要体现万科现在重要发展理念与成就。 为了突出每一个小主题的特点, 我们在展示设计上也根据内容再思考。 在关于万科工人施工与材料技术的展示上, 原展品是挂在墙上的, 我们利用三个悬浮的交叉展台把它们按标号顺序摆放, 既可以近距离看展品, 在空间上又形成一个动线关系。另外一个区域展示4个万科近年代表的建筑作品, 我们利用了山丘的设计, 既有模型台的功能, 同时四个侧面为文字和多媒体的展示,形成一个立体和可游乐其中的展区。另外我们还有两个比较独立的区域, 一个是小黑房展示万科的公益活动, 另一个是利用细线来围合的多媒体播放区。








TAG标签关键词:FLY Concept + DPD Consultant 展览馆 博物馆 展馆 展厅 万科 房地产 楼盘





















































































































