

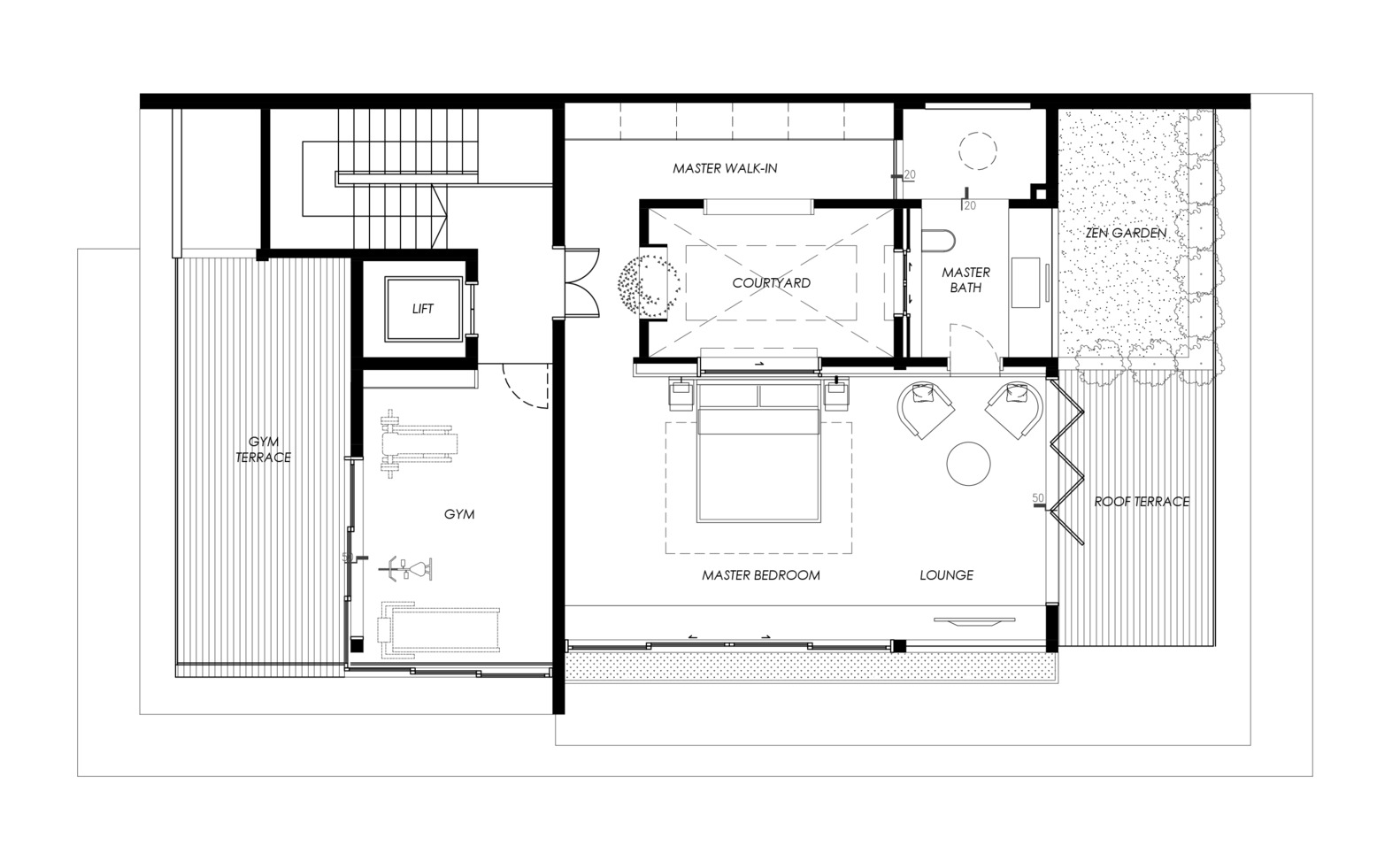
我们在入口的正上方置入了一个“黑匣子”电影室,给人一种压缩的入口的感觉。一个卧室夹层被放置在面向别墅后方的位置,以创造一个双层感的生活空间。池塘上方也成为卧室的的中央“呼吸井”。所有卧室都放在竖井周围。主卧占据了整个阁楼,通风井位于卧室中央。所有的房间都在中央竖井中开窗,及时在卧室中也能实现交叉通风。

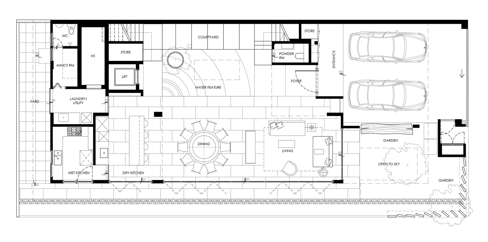
房屋设计应对热带性气候的能力在该区域尤为重要。别墅正面长东,长边朝南,是西南季风季节的主导风向。我们设计了面向南风的房子的主开口,并在房子的中心创建一个庭院,以达到交叉通风的效果。在新加坡,半独立是别墅的中心通常是黑暗的,因为一般被共用墙挡住了。通过创造一个空气管道,室内的热空气被向外排出,并创造了一个交叉通风系统。中庭的天井有一个玻璃滑动天窗,下雨时天窗会自动关闭。

我们想到了一个结合多功能的屏幕系统。屏幕是一个双折叠门,可以完全打开,不会影响视线。在单扇门模块内,木片可以以不同的角度旋转,以控制一定程度的光线、通风和隐私。木片也可以完全关闭,以达到完全封闭的效果。该系统在整个别墅的每间房中使用,并形成别墅的主立面



















TAG标签关键词:FreightArchitects Kee Jing Zhi 住宅 家 别墅 建筑



































































![DJ House白色房屋建筑-葡萄牙[i]da Arquitectos建筑机构作品](/2012_smallimg/2012-08-11/20120811094205.jpg)







