

考虑到与业主在合作建设乡村项目的历史:这一次,雇主提出让我们寻找一种新的材料组合,例如砖、金属、木材和玻璃。雇主希望利用砖等材料,在综合体的入口处展示一个独特的,可扩展的建筑。
首先,该建筑的主要瑕疵是一座将私人和公共功能分开的桥,它将空白的区域插入主客厅,并且因为场地空间的不足,在屋顶上布置了一个露台。

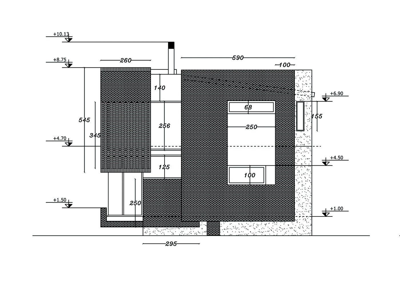
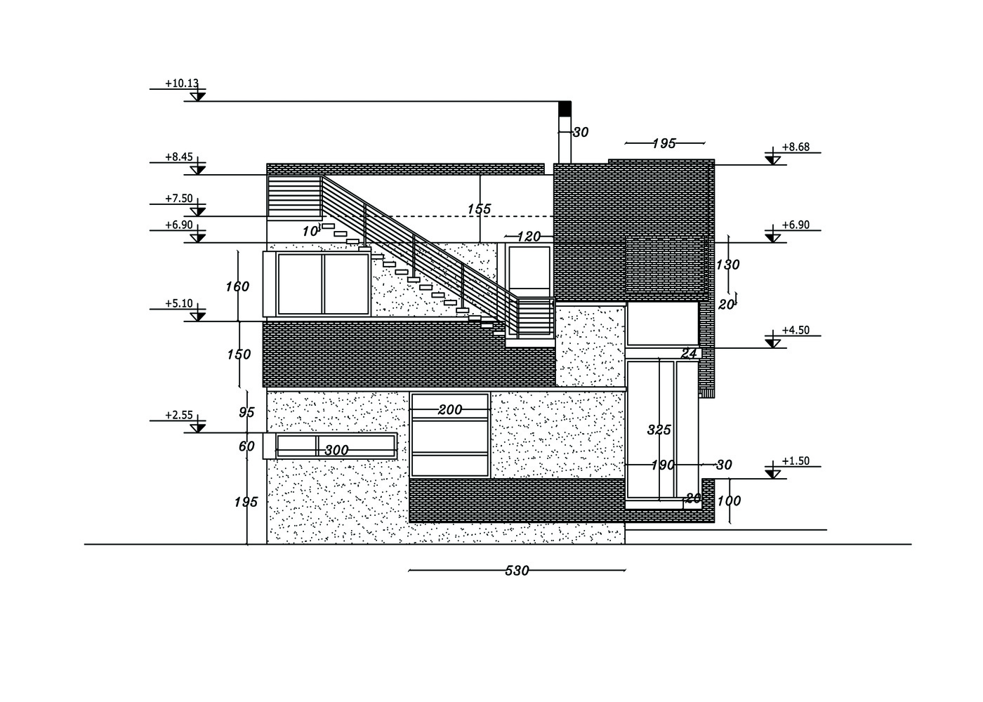
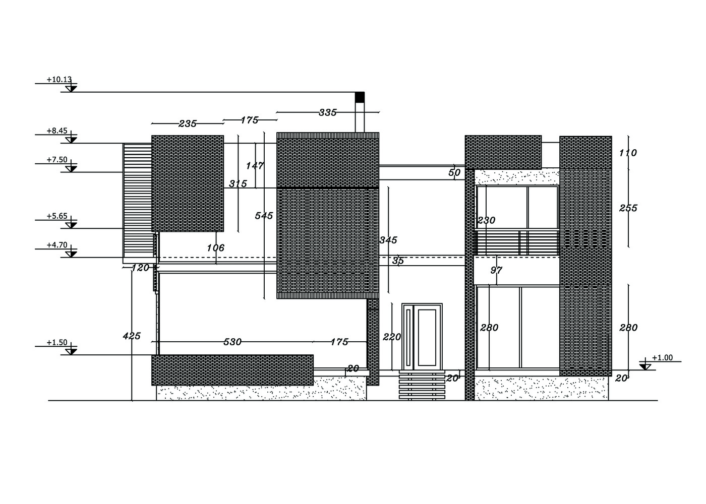
后来,主立面被大量玻璃纹理覆盖,为了让内外空间的连接最大化,并提供可见性、光照和透明度。

现在,通过在玻璃上添加砖的纹理,我们已经调整了建筑立面的透明度和协调性。
我们能够运用干砌石墙技术在玻璃表面安装沉重的砖块,并控制主要结构上的砖的纹理,以便能够拥有一个砖块悬空在玻璃表面的范例,同时创造不同的室内和室外空间、光线和阴影。通过这种方式,我们能够挑战观者心里对于轻和重的定义,并让他观察并欣赏这栋建筑。

由于建筑的透明性,室内外空间的连接也被认为是设计中的一个问题;依靠木材、石材和铁等材料,我们试着在室内外之间提供正确的材料组合。此外,我们得益于壁炉和楼梯这些元素,创造恰当的视觉连接。
































































































