

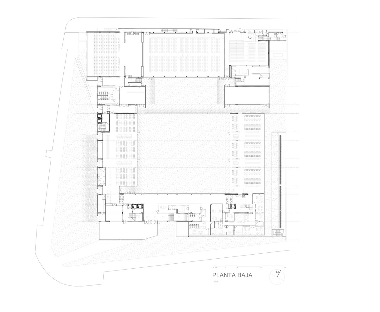
管理和秘书区域位于一层。停车场位于大楼的地下室半地下室,一共可以容纳300辆车。从外面的独立入口可以进到教堂里

该建筑的初步设想是提供一个亲密的,类似于家庭式的建筑,主要体现在空间里光线的处理方式和陶瓷皮肤带来的纹理。这个建筑的重要性从项目一开始的论证过程就体现出来了。一层只是作为一个进入空间,因此会受到一些压缩

整个建筑采用了陶瓷砖作为外墙装饰,环绕在整个建筑外墙上。这种基本方法解决了结构问题,:屋顶桁架包含两层楼,由教室和各部门组成,由与被支架托起因此省去了跨度,让公共区域能够在户外区域和景观平台上进行连续性开发,而这一切是由一个强大的悬臂结构提供保障
















特别提醒:本站所有作品收集于网络,版权均属各自所有者,本站素材仅提供学习参考,请勿商用,如有侵权请联系我们邮箱(200894114#qq.com,把#换成@)删除,要购买全部版权商用请自行联系作者,谢谢!
相关标签搜索:


