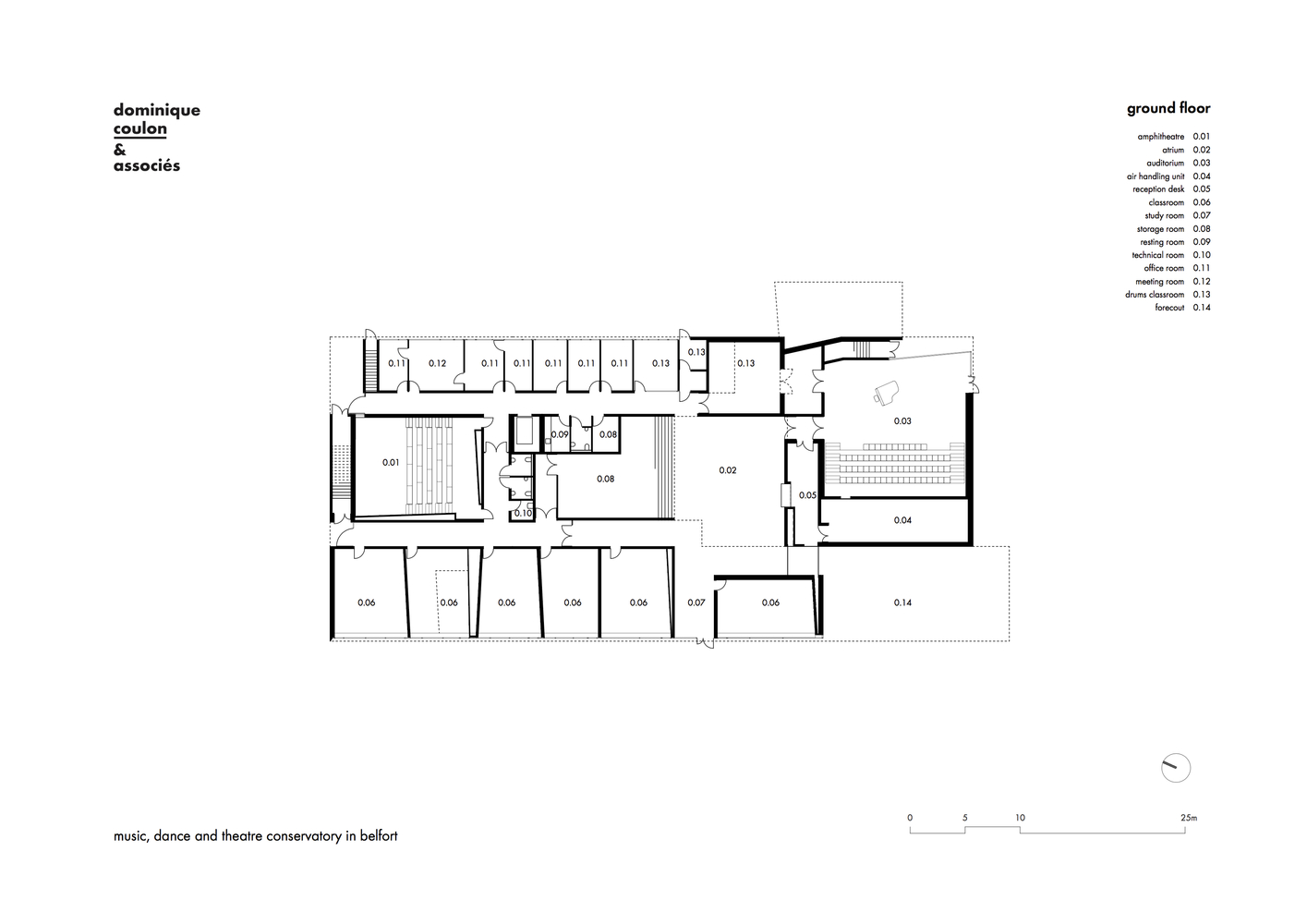
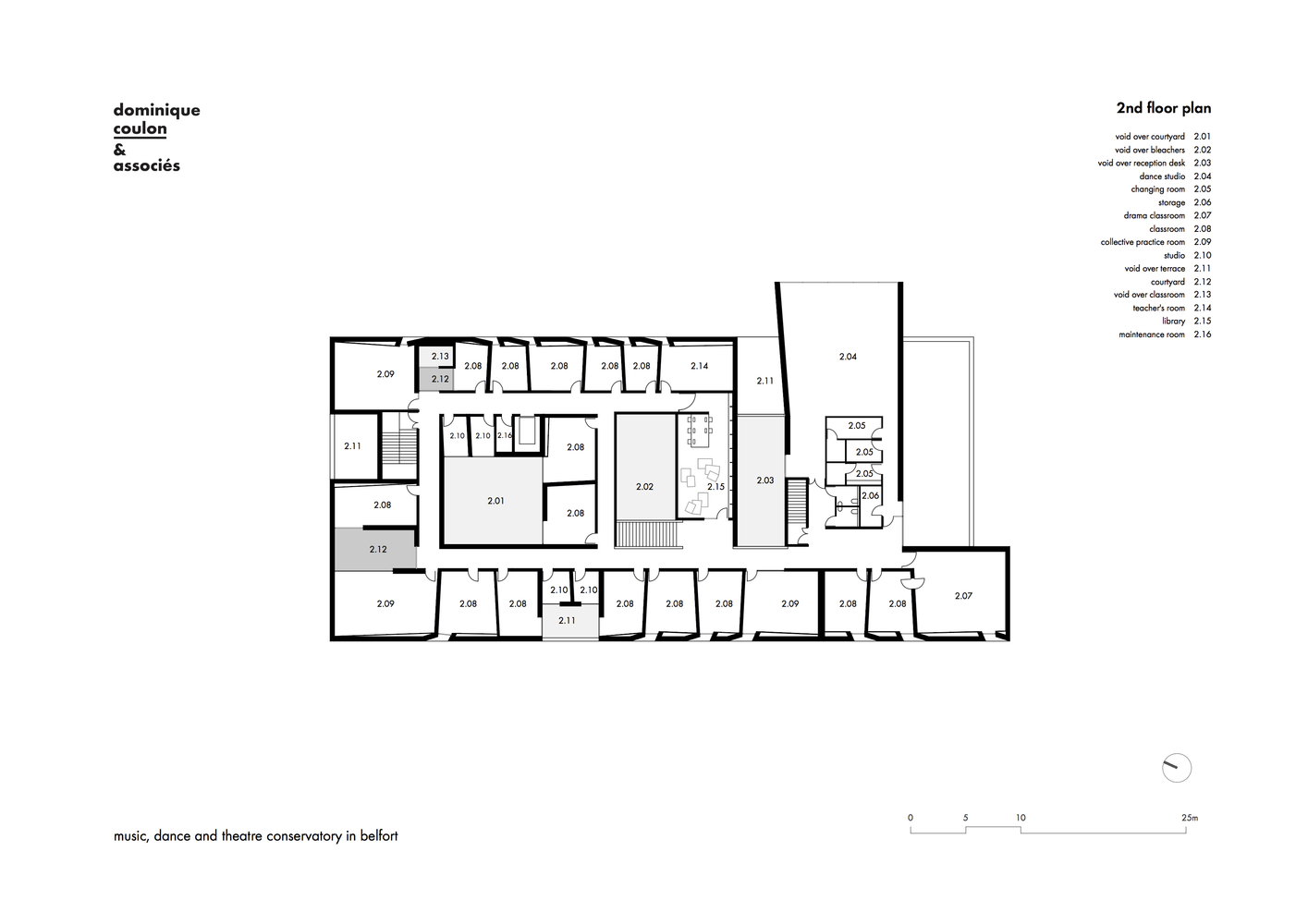
混凝土的单体形态创造了一种神秘的氛围。只有舞蹈房的体量可以从山上的雕塑方向看见。这一雕塑建于1879年,是对敌人反抗的象征。建筑根据功能分成了不同的体量,包括了两个大的礼堂、一个剧院、一个大舞蹈房、一个图书馆、教室和行政用房,以及许多分散在不同体量中的工作室。各个工作室的声学效果都可以满足某种特定乐器的使用。这些功能区域互相穿插。其他空的空间成为了体量上虚的部分,创造了不同的层级。入口大厅有着特殊的尺度。图书馆看上去像是浮在空中,成为了整个内部区域的标志。中庭比较暗。内部的色彩设置正好是外部的反向,表达了非常高的密度。

























特别提醒:本站所有作品收集于网络,版权均属各自所有者,本站素材仅提供学习参考,请勿商用,如有侵权请联系我们邮箱(200894114#qq.com,把#换成@)删除,要购买全部版权商用请自行联系作者,谢谢!
相关标签搜索:


