有效地连接场地是设计的关键。学校鼓励学生们使用邻近中学的体育馆以及礼堂。因此,运动区域被设计在两所学校的中间地带,两校的学生可以共同使用该空间。为了提高安全性,学生可以通过内部大门进入运动区域。教学楼的朝向则为人们提供了一览无遗的景色,从所有现有的建筑以及员工公寓都可以看到该建筑。这也有助于让该区域更为紧凑的排布,并确保了“邻里”之间的和睦共存。

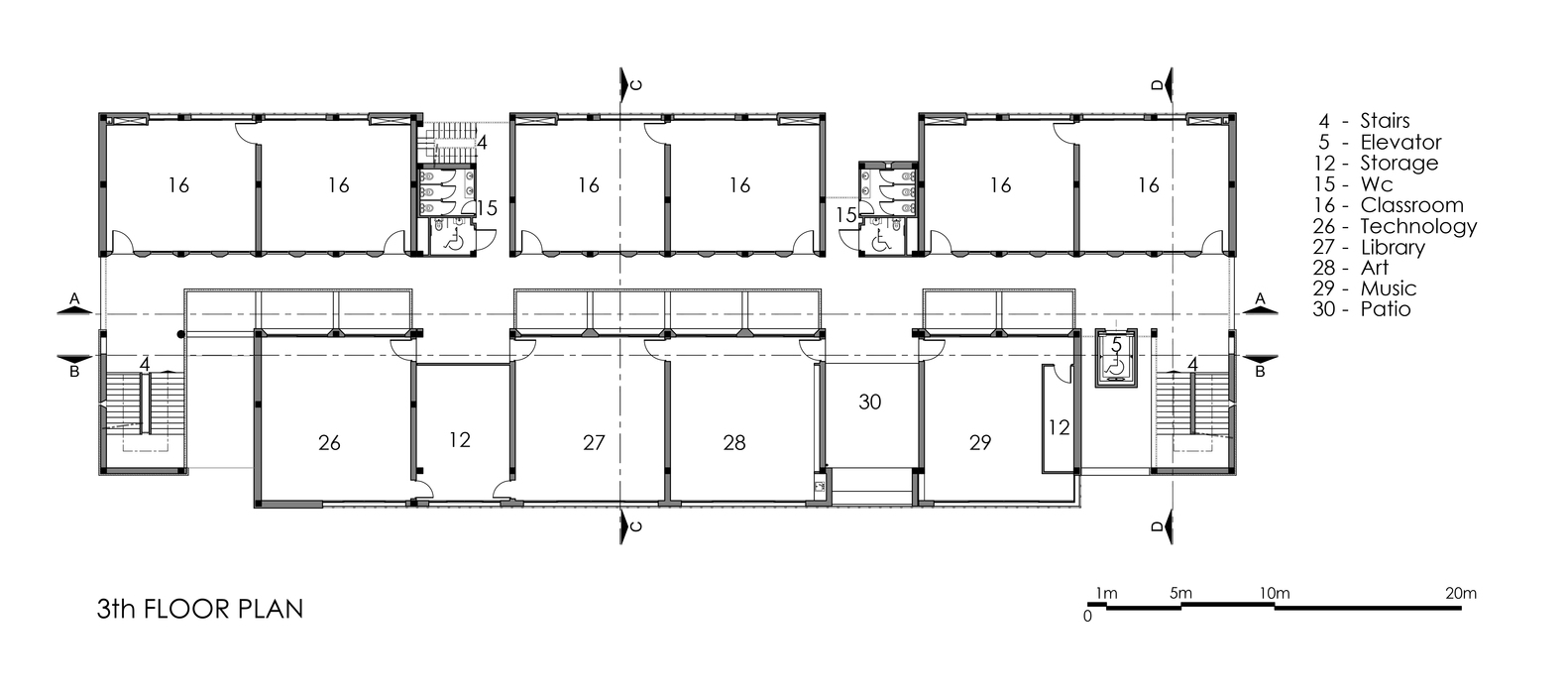
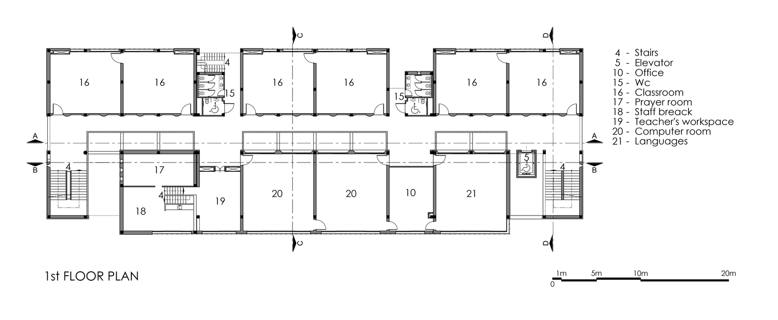
该项目的紧凑性缩短了人们需要走动的距离,尤其在一楼,中央走廊成为连接两个主要楼梯的中间通道。大型的入口广场则作为校园与周边区域的过渡空间,鼓励了社交互动,并为孩子们提供了课后远离车辆的安全空间。大型的负空间则强调了校园的建筑体块
为了将建筑物与周边环境融为一体,校园的设计呼应了杰迪代标志性纪念建筑“马扎甘葡萄牙城”的形态。楼梯从城市围墙汲取灵感,将垂直移动作为象征性的存在,并且这个具有强烈向心力的楼梯间也可以从外部看到













特别提醒:本站所有作品收集于网络,版权均属各自所有者,本站素材仅提供学习参考,请勿商用,如有侵权请联系我们邮箱(200894114#qq.com,把#换成@)删除,要购买全部版权商用请自行联系作者,谢谢!
相关标签搜索:


