




选址的限定也带来了设计概念的释放。面向自然山体和运动空间,设计希望学生公寓能成为山体自然景观和运动场上的运动与表演这些人文景观的特等观景席――组织最多的面向景观的界面成为了形式的基本线索――通过三段东西向观景的辅楼,将五排南北向的公寓主体相连接,从而形成了弓形的连续建筑形体,并自然地围合出四处开放内院。主要的院落、体型开口、空中平台均向东侧打开,从而最大化地回应外部的景观资源。近人尺度的连续折板如同地面的流动地景在空中的延展,与建筑主体共同构成了生动而不失典雅的整体形象。支撑折板的钢管束则模糊了结构和给排水的界限,形成了有趣的空间限定。


整个学校的建设用地以之前的杭州中村驾考中心基地为主体。为了确保政治任务一般的开工节点,在驾考中心搬迁工作完成前,学生公寓选址几乎是唯一解――校园整体规划用地南区的一块飞地用以布置供5000学生居住生活所需的空间。

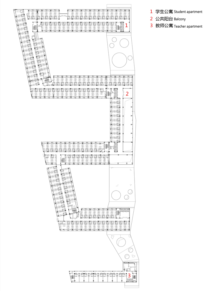
学生公寓的一层通过连续的折板空间进行了功能上的限定,折板下布置公共开放空间、生活配套设施和各处寝室门厅。这些开放空间,以及建筑主体内的架空层、建筑之间的院落,共同形成为了相互渗透的共享空间,为学生提供无数可以尽享丰富校园时光的小场所。



这一选址限定也极大影响了整个校园的南区规划,并进而产生了围绕中心运动场――室外大剧场展开环形布置的校园南区空间结构。学生公寓占据这一环上的核心位置,构成了运动场这一室外大空间以及东侧自然山体的最佳观赏场所。为了避免高层带来的电梯依赖症,设计选择了形体水平展开的设计基本方向。


学生公寓作为当代大学生活的核心载体,正随着时代的前进而对空间不断产生新的要求。浙江音乐学院学生公寓在限定下的实践,在交付后的两年多来也不断为这所学校的学生们留下美好的校园生活回忆。

造价的限定使得涂料几乎成为了为数不多的外墙主材可选项。形式语言回归到了基本的洞口设计――通过上下层阳台洞口的左右错动,形成了独特而又富有韵律感的立面肌理。阳台内则借助不同色彩的运用,强化了各个管理单元的识别性,并在白色的基调下形成了含蓄而又生动的建筑表情。

在折板之上的建筑主体中,公寓部分面向东侧自然山体,在每层端部和转折部位,结合了交通核设置开放公共客厅。这些分层设置的共享空间节点,如同一处处面向景观的特等席,承载着我们设想的一幕幕日常校园生活场景:交流、创作、演绎、静思……



特别提醒:本站所有作品收集于网络,版权均属各自所有者,本站素材仅提供学习参考,请勿商用,如有侵权请联系我们邮箱(200894114#qq.com,把#换成@)删除,要购买全部版权商用请自行联系作者,谢谢!
相关标签搜索:


