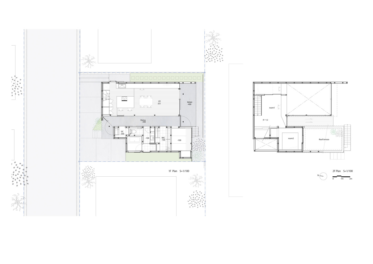
所以,我在房子的中心用泥土地板营造出一个空间,就像散步道。这条长廊同时作为建筑主入口、作为客厅的一角、作为日式凉廊、走廊和部分露台。这使得居民可以直接或间接地与他人沟通。

居民可以在散步道上与他人互动,就如在路边聊天一样。未来,室外平台和屋顶平台可以通过楼梯连接起来,这样就创造出一条通道。这条通道将连接户外、一层和二层,并允许居民走动。我想,这条位于住宅中央的步道,可以为居民的生活带来新鲜的体验。即使住宅由墙壁和其他建筑所围合,这条散步道的存在也可以加强人与人之间、人与宠物之间的交流。
此外,由于土地条件,房子的南侧需要临时覆盖。所以,我们用聚碳酸酯波纹板和挂钩脚手架做了一堵临时墙。步道、露台和客厅作为一个组合空间,我们用临时墙和L形外墙进行围合,模糊了内外空间的边界,拓展了生活空间。
步道顶棚使用玻璃钢折叠板,再通过降低西侧厨房上方的屋顶平台高度,最大限度地为住宅引入自然光。每种材料都同等地用于内墙和外墙。L形的外墙保护着住宅,极具安全感。南侧外墙使用了轻便的材料。盥洗区的内墙能够映射出生活灯光和色彩。



TAG标签关键词:SAI Architectural Norihito Yamauchi 住宅 建筑 家 空间设计 日本房屋 房子











































































































