
通过这种方式,每个庄园都与村庄相连,形成了牢固的社区纽带。该项目用地以前的布局也是如此,具备农业、水路公路和缓冲区。目前,这些地块在被细分出售。这就产生了一个聚落,使得每座房子都被连接到一条没有任何缓冲空间的狭窄道路上,形成了被邻座紧密包围的拥挤密集的住宅。这种布局方式正在慢慢消耗村庄中人们与房屋的联系。基于这样的理解,我们想通过房屋的设计,让客户和他们的孩子与环境和谐相处
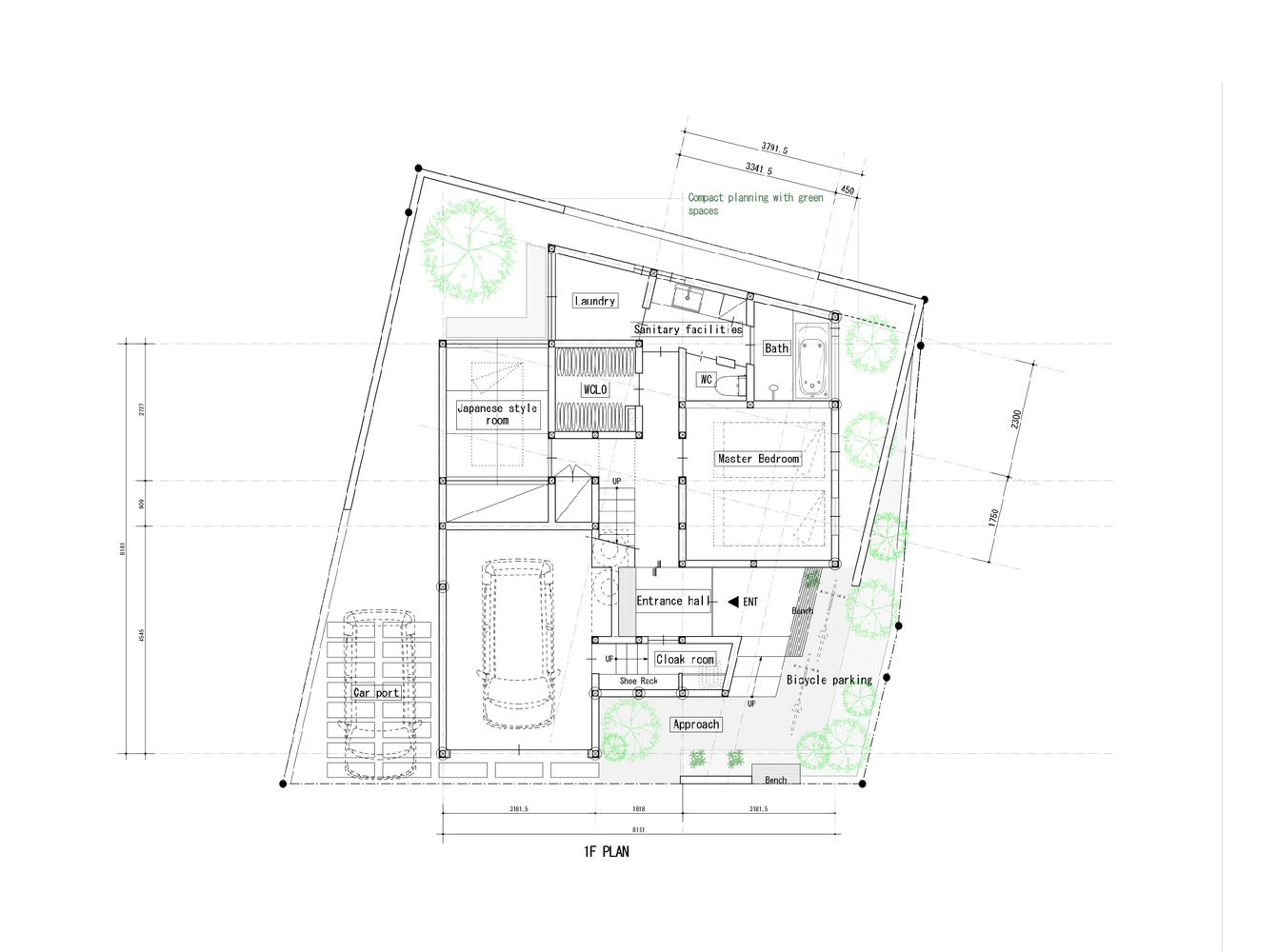
设计需要什么?让母亲能从厨房里俯瞰房子里发生的一切活动;让房屋沐浴风和阳光,同时能够遮风避雨;让建筑通透,以创造明亮开放的生活空间。该建筑的设计是由小部件组合而成的一个整体。一层的设计紧凑,功能独特,而较大二层的设计灵感则源自一个风车复制品
由这些叶片产生的空隙容纳了楼梯井和露台,让人想起原住民的缓冲空间。这些公共空间让人们走出来,与外界形成诸如“邻里与家”、“户外与室内”、“远近”的连接。它也成为滤去严酷的气候,同时提供居住私密性的建构。风车的中心是一个烟囱状的天窗,它将柔和的北极光渗透到房子的每个角落,并促进室内空间的风流动,以实现高效的通风
不断变化的室内净高和楼面在滤入不同空间的光线强度上产生了差异。儿童房毗邻LDK,这是一个灵活的空间。这种灵活的空间能为人们提供与需求相应的空间类别。在母亲的注视下,从厨房可以看到这个区域。此外,住宅将立面分割成更小的部分,不同的材料使立面看起来更富有深度。 除了可持续性之外,该项目还深入研究了其环境的多样性。通过细小部分的收集,将当前的城市景观融合在一起,在赋予其深度的同时连接过去和未来。






TAG标签关键词:东海林建筑设计事务所 日本房屋 日本住宅 住宅 家 建筑












































































