
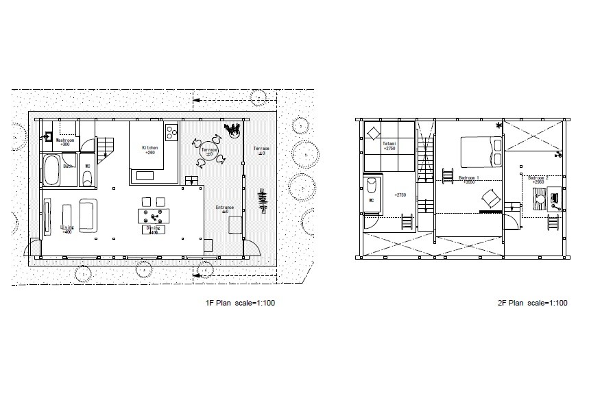
巨大的屋顶象征着“家”,里面安置着业主日常的生活,8个Y型的结构支撑建筑,6个不同标高的楼板穿插其间,形成灵动而整体的空间。整个房子仅仅是一个大屋顶下的空间,不同的区域轻松的分置在不同的地板和框架间。

我希望建筑的结构也融入到这个家庭的生活中,孩子们成长的身高标尺可以在结构上度量。建筑在家庭生活的浸淫中慢慢变得有故事。






















TAG标签关键词:Hiroyuki Shinozaki 房屋 木屋 住宅 日本房屋 日本住宅 建筑
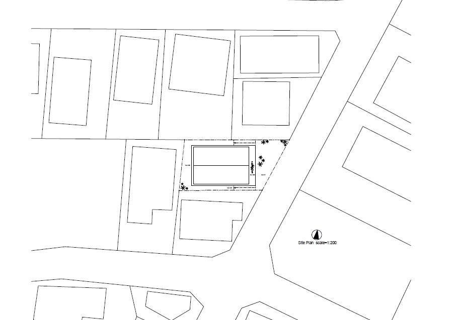
29 张 Y形木柱楼,两间卧室和一个传统的日式房间,以及三个独立的阁楼。客厅,餐厅和厨房都设在一楼-日本Hiroyuki Shinozaki建筑师作品 : 919581
13 张 DSDHA的隐蔽之家-位于伦敦南部,一层隐藏在地下室,上面为客厅,整体房屋给人感觉是伪装在周围环境内部,立刻把135平方米的房子变成了美丽的风景 : 944365
8 张 混凝土和耐候钢打造低维护的树屋建筑-位于美国德克萨斯洲雪松溪水库,439平方米,是一座湖边住宅,并配有不锈钢橱柜和家电的厨房,有一个凉亭和存储谷仓,还有一个下沉式庭院,提供躲避强风湖。 : 951269
26 张 露头悬臂屋-建筑位于加拿大,建立在峭壁上,场地的地形是非常不规则的,房屋离地面有13米以上,周围是风景壮观的,后面有森林,里面住着一对已婚夫妇,房屋里面有丰富多彩的设置,让人想起世外桃源 : 936484