

















TAG标签关键词:Hiroyuki Shinozaki 房子 房屋 建筑
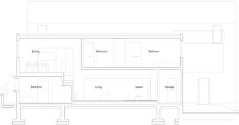
29 张 Y形木柱楼,两间卧室和一个传统的日式房间,以及三个独立的阁楼。客厅,餐厅和厨房都设在一楼-日本Hiroyuki Shinozaki建筑师作品 : 919581
12 张 拉热内斯公寓-房子位于加拿大魁北克省,现代化的,明亮的室内装饰,半透明的门,从而使充足的光线进入厨房空间保持不变,有许多雕塑元素,木架子等 : 929866
13 张 三角花园的白色建筑-在葡萄牙莱里亚山坡上,靠近城市郊区一条高速公路旁。有一个倾斜屋顶,伸出的小正方体其实是一间卧室,翼墙的客厅采用釉面填补了房间的自然光,并可以享有花园和乡村美景 : 943929