

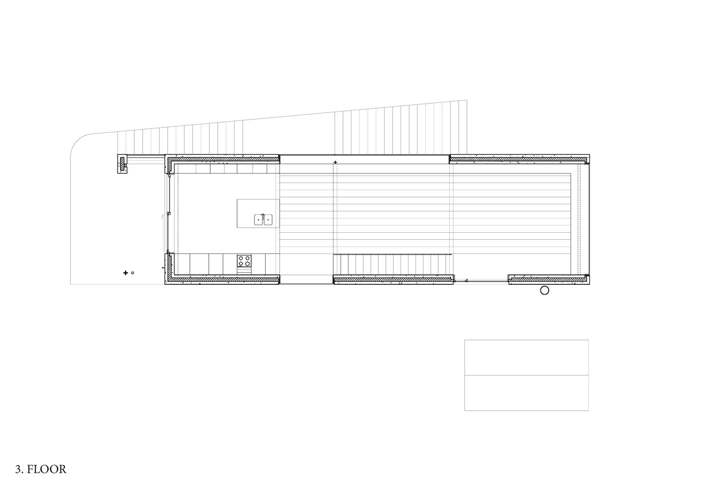
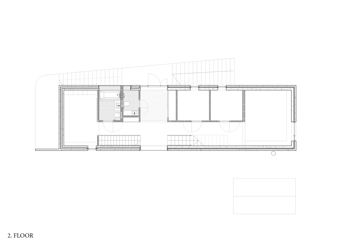
进出后花园的厨房入口处理成内凹的空间,亦可遮风避雨。雨水被引至屋侧的一处独立水景。厨房上方的木夹层提供了一个安静的学习角落。不可开启的窗扇都直接密封在混凝土里。矩形大窗提供可坐的混凝土宽窗台。三间卧室和一个休息厅在二层,客卫公卫各一。主入口也在该层,通过室外花园踏步可达。这层所有混凝土楼面都经细磨抛光处理

灯具安装在天花上。内墙和门都是松板制成。最底层主要是住宅日常家居功能,包括存储设施和洗衣房,还可供分租。底层进深比二、三层少6米,创造出一个内凹式双车库。除了主体,还有一个配套小屋,用来存放垃圾桶和回收杂物。












TAG标签关键词:Trodahl Arkitekter Rasmus Norlander 住宅 家 建筑

























































