

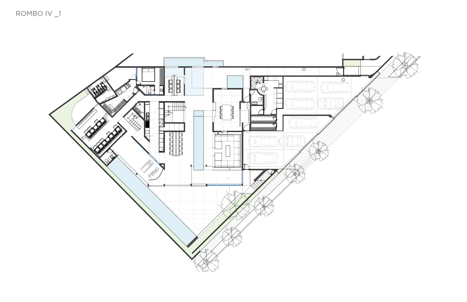
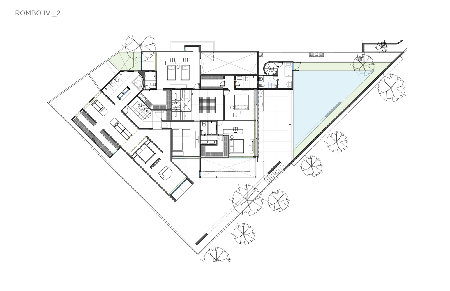
在一个几乎挤满高密度人口的城市中,树木与植被、水面、土地一样是一种珍贵的财富,喷水池和镜面则是反射锐化绿色环境的天然工具

我想要打造一个能确保私密性、只有天空、空气和太阳进入其中的、能使房屋处于幽静之中的室外空间。

图片只能展现出我们在建筑上探索的少部分过程,并没有描绘出花园的芳香或燃香的气味。它除去了材料的触感和表达效果、软硬冷暖的对比、常有风掠过树叶间隙的场所的声响、喷水池的声音、窃窃私语与静谧的氛围,而空间氛围和围蔽只出现在需要暧昧明晦的空间中,将寻求与他人亲密的需求以及我们希望用建筑形式进行重复再现的体验进行空间推导,使用得出的方式将它们最自然地糅合在一起。


























TAG标签关键词:Miguel Angel Aragonés 白屋 住宅 家 建筑











































































