




















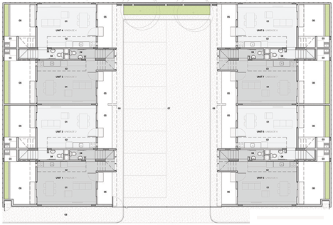
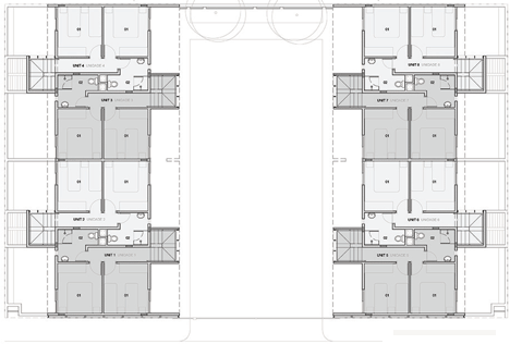
TAG标签关键词:Corsi Hirano Arquitetos 房子 住宅 建筑
13 张 日本白色细长的住宅建筑-住宅位于靠近铃鹿山脉茂密的森林地区,有一条狭长18米宽的玻璃墙走廊,一览无余的两端自然景观,22米长的楼板和屋顶项目在前面形成一个隐蔽的阳台 : 936274
6 张 树林中的小屋,建筑师设计了被划分滑动夹板分区的一个单层房子,有山墙屋顶,创造各种不同高度的房间天花板-日本Yoshiaki Nagasaka建筑师作品 : 920300
10 张 韩国度假胜地的山景别墅-从倾斜的位置向外推出,以确保最佳视野,折叠混凝土形式的清晰线条和倾斜角度与山谷形成鲜明对比,整体建筑采用戏剧性的风景设计,旨在增强建筑物与自然环境之间的联系。 : 955685