
若隐若现在外面看不见里面,但里面却可以享受道外面,同时也丰富的建筑的外观,像是山林中树上的树屋!也是为了让城市中的天际线带有自然及更生活感的建筑表情。
创造接进自然元素的价值,让韵律自然的散落,却又代有人造的逻辑。 我们期待建筑被阅读起来是自然的、放松的;空间的氛围是自在、悠闲的。藉由建筑简约的线条与材料的调性,创造透天住宅室内以外的外部空间(阳台、外墙)能有多样层次,提升对住宅生活空间的想像
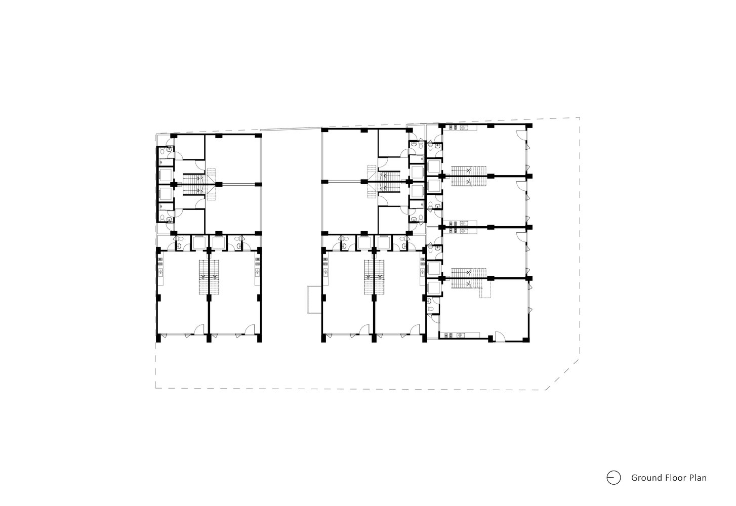
对室内来说,住户们虽然来自八方,但对外观来看,住此地的人像是一家人享有同一栋住家,每栋彼此每有被分开。
建筑的外观不应仅是装饰的课题,更是室内空间的延伸,本案透过"虚"(木格栅)、"实"(绿墙)的元素,处理室内空间与外部环境的对应关系。质朴的绿砖大墙为建筑的主要架构,提供室内私密性的空间;木格栅所围塑的阳台空间则作为室内空间的延伸,提供半私密性的的居住空间;最后,玻璃栏杆所围塑的阳台空间则为建筑空间的跳台。每到夕阳的西下,金黄色的阳光提前带来夜晚的照明,质朴的绿砖墙与木格栅穿透性的光影,架构”家”对于沉稳与自然禅的住宅美学,呈现一个与过往不同的透天厝!
















TAG标签关键词:和筑建筑师事务所 住宅 家 房屋建筑 房子 建筑





























































































