

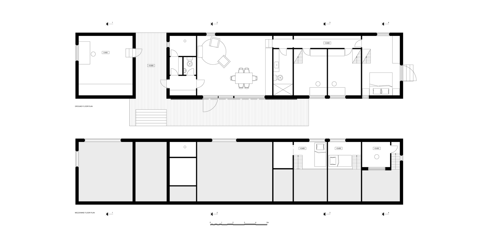
建筑长30米,宽5.5米,由一个工作室和一个由走廊分割的住宅部分组成。住宅区域包括一个入口,一个厨房和起居室,两个孩子和客人的卧室和一个主卧。在小房间里睡觉的地方位于夹层上。在主卧室的上方有一个单独突出的地方,被设置为瑜伽冥想的空间

为了契合地形坡度,工作室到卧室的地面设置了高差,而屋顶的高度是固定不变的。屋顶向南倾斜,以便在卧室和工作室里提供北部的夹层。房子的外表皮则为碳化木板。

















TAG标签关键词:AB CHVOYA 住宅 房屋 建筑 别墅
15 张 黑色染房-位于苏格兰风景如画的内赫布里底群岛海岸线附近,建筑师设计引用一个老黑棚形状和外观。拥有俯瞰海湾的视觉露台,两层楼的卧室,包含的起居和用餐空间。 : 941979
10 张 特拉维夫玻璃和钢组成的现代主义风格家-以色列Pitsou Kedem建筑工作室设计-510平方米,采用悬臂式混凝土箱和玻璃墙创建的上世纪50年代现代主义风格房屋 : 948482
9 张 墨西哥El Mirador酒店别墅设计,坐落于巴耶布拉沃,一个优雅平衡,无可挑剔的例子。使用再生铁路枕木原木做墙壁,没有一个单一的材料或颜色,打破了主题,但是屋内不看感觉主题过度设计 : 941484